Maison à vendre à Éghezée avec 3 chambres
399 500 €
Est-ce faisable pour vous?Description
🏡 Lot 5 – Maison 3 façades neuve à vendre à Éghezée
🏡 Lot 5 – Maison 3 façades neuve à vendre à Éghezée
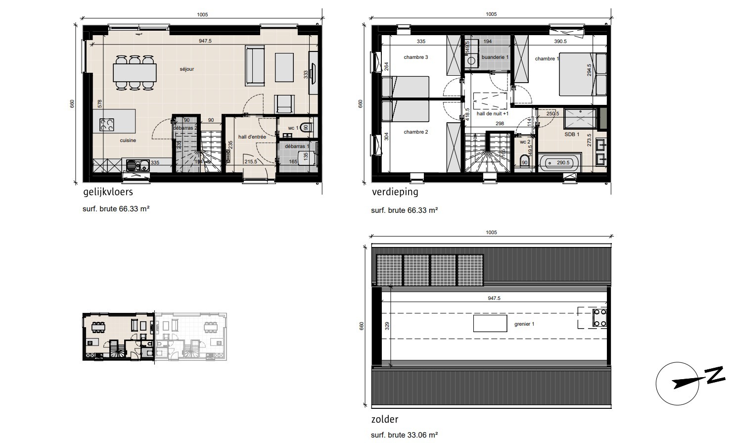
Cette maison 3 façades allie confort, performance énergétique et cadre verdoyant. Idéale pour les familles ou jeunes couples.
🔹 Superficie habitable : 165 m²
🔹 Nombre de chambres : 3
🔹 Salle de bains : 1 ou 2
🔹 Construction basse énergie : pompe à chaleur, panneaux solaires, citerne d’eau de pluie, ventilation double flux
🔹 Normes Q-ZEN : PEB A+
📍 Rue du Corbeau – Quartier calme et bien situé.
📞 Ne tardez pas. Maintenant vous avez le premier choix !
📧 Infos: info@durabrik.be | 📞 010 812 621
Cette maison 3 façades allie confort, performance énergétique et cadre verdoyant. Idéale pour les familles ou jeunes couples.
🔹 Superficie habitable : 165 m²
🔹 Nombre de chambres : 3
🔹 Salle de bains : 1 ou 2
🔹 Construction basse énergie : pompe à chaleur, panneaux solaires, citerne d’eau de pluie, ventilation double flux
🔹 Normes Q-ZEN : PEB A+
📍 Rue du Corbeau – Quartier calme et bien situé.
📞 Ne tardez pas. Maintenant vous avez le premier choix !
📧 Infos: info@durabrik.be | 📞 010 812 621
Finances
Ventes sous régime de TVA
Oui
Bâtiment
Type de propriété
Maison
Sous-type
Maison
Surface
165 m²
Terrain
Surface de la parcelle
546 m²
Affectation urbanistique
Zone résidentielle
Jardin
Oui
Aménagement
Nombre de chambres
3
Nombre de salles de bain
1
Nombre de toilettes
0
Confort
Ascenseur
Non
Raccordement aux égouts
Oui
Énergie
Panneaux solaires
Oui
Chauffage au sol
Oui
Pompe à chaleur
Oui
Urbanisme
Permis de lotissement
Oui
Localité
Rue du Corbeau, 5310 ÉghezéeEst-ce faisable pour vous?
La contribution personnelle minimale
-EUR
Frais mensuels
-EUR/mois
Vous préférez une proposition personnalisée ?
Expliquez-nous votre projet et votre situation personnelle et KBC calculera un taux d'intérêt personnalisé. Vous recevrez immédiatement une réponse à propos de la faisabilité de votre prêt et pourrez finaliser votre demande entièrement en ligne. Même si vous n'êtes pas client chez KBC.








