Maison à vendre à Jabbeke avec 3 chambres
491 000 €
Est-ce faisable pour vous?Description
Malheureusement, la description n'est pas disponible dans la langue sélectionnée.
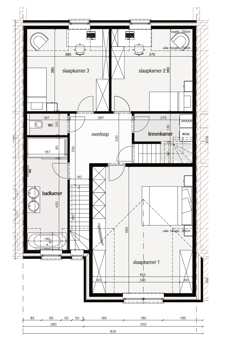
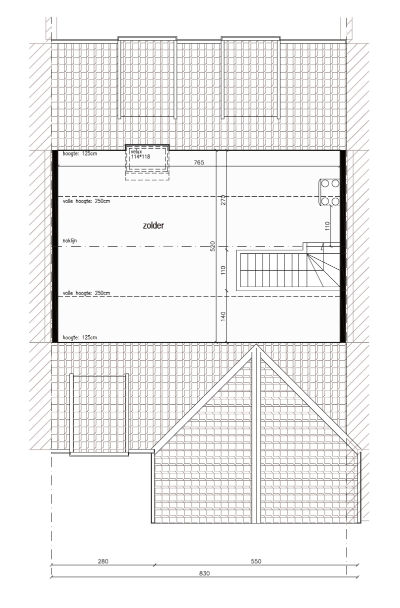
Deze nieuwbouwwoning in landelijke bouwstijl (lot 3) ligt op een perceel van 303 m². Naast de gewone inkomhal kan je ook via de carport rechtstreeks de woning binnen via een 'mudroom', een tussenruimte waar je je vuile schoenen uit kan trekken of de poten van de hond kan afdrogen. Daarna kom je terecht in de open leefruimte met keuken, eiland en een aansluitende berging. Op de 1ste verdieping zijn er 3 ruime slaapkamers, een badkamer met ligbad, inloopdouche en dubbele lavabo. Er zijn 2 afzonderlijke toiletten op elke verdieping. Met een vaste trap kom je op de zolderruimte die ook ingericht kan worden. Op het gelijkvloers, in de badkamer en toilet is een vloertegel voorzien. In de slaapkamers en nachthal ligt laminaat. Op de voor- en achtergevel worden er dakkappellen voorzien die ervoor zorgen dat de kamers achteraan extra ruim zijn. Daarbij geven ze een luxueuze uitstraling. De auto kan terecht in de geïntegreerde carport.
Wat deze woning nog specialer maakt, is de geothermische warmtepomp en vloerverwarming op het gelijkvloers en bovenverdieping die ervoor zorgen dat de woning in de winter verwarmd wordt en in de zomer op een energiezuinige manier passief afkoelt. Dit nieuwbouwproject in Jabbeke komt tot stand op de hoek van de Aartrijksesteenweg en de Hogedijkenstraat. Door zijn uitstekende ligging in een residentiële buurt vind je basisscholen en winkels op wandelafstand. Verder is de natuur hier binnen handbereik, met onder meer de Maskobossen en De Hoge Dijken vlakbij. Of ga op ontdekking in het natuurdomein Vloethemveld.
Deze prijs is exclusief kosten en btw, bekijk de ALL-IN prijzen voor een volledig afgewerkte en instapklare woning, inclusief alle kosten (notariskosten, aansluitkosten, verkooprecht en btw) op onze website: www.dumobil.be/nl/woonprojecten/projecten/jabbeke-aartrijksesteenweg Of vraag vrijblijvend informatie via onze bouwadviseur Sam Borrey: sam@dumobil.be | 0483 210 133.
Wat deze woning nog specialer maakt, is de geothermische warmtepomp en vloerverwarming op het gelijkvloers en bovenverdieping die ervoor zorgen dat de woning in de winter verwarmd wordt en in de zomer op een energiezuinige manier passief afkoelt. Dit nieuwbouwproject in Jabbeke komt tot stand op de hoek van de Aartrijksesteenweg en de Hogedijkenstraat. Door zijn uitstekende ligging in een residentiële buurt vind je basisscholen en winkels op wandelafstand. Verder is de natuur hier binnen handbereik, met onder meer de Maskobossen en De Hoge Dijken vlakbij. Of ga op ontdekking in het natuurdomein Vloethemveld.
Deze prijs is exclusief kosten en btw, bekijk de ALL-IN prijzen voor een volledig afgewerkte en instapklare woning, inclusief alle kosten (notariskosten, aansluitkosten, verkooprecht en btw) op onze website: www.dumobil.be/nl/woonprojecten/projecten/jabbeke-aartrijksesteenweg Of vraag vrijblijvend informatie via onze bouwadviseur Sam Borrey: sam@dumobil.be | 0483 210 133.
Finances
Immobilier d’investissement
Oui
Immeuble de rapport
Oui
Bâtiment
Type de propriété
Maison
Sous-type
Maison
Surface
216 m²
Terrain
Surface de la parcelle
303 m²
Orientation jardin
Est
Aménagement
Nombre de chambres
3
Nombre de salles de bain
1
Nombre de toilettes
2
Confort
Ascenseur
Non
Raccordement électrique
Oui
Raccordement au gaz
Oui
Énergie
Score PEB (kWh/(m² an))
19
Classe énergétique
A
Niveau E
19
Urbanisme
Permis de lotissement
Oui
Localité
Aartrijksesteenweg 41, 8490 JabbekeEst-ce faisable pour vous?
La contribution personnelle minimale
-EUR
Frais mensuels
-EUR/mois
Vous préférez une proposition personnalisée ?
Expliquez-nous votre projet et votre situation personnelle et KBC calculera un taux d'intérêt personnalisé. Vous recevrez immédiatement une réponse à propos de la faisabilité de votre prêt et pourrez finaliser votre demande entièrement en ligne. Même si vous n'êtes pas client chez KBC.














