Maison à vendre à Koksijde avec 8 chambres
550 000 €
Est-ce faisable pour vous?Description
Propriété rénovée à vendre dans le village de Koksijde !
Propriété rénovée à vendre dans le village de Koksijde !
Avec un rendement brut garanti de 6,8 %, c'est un investissement stable à proximité immédiate de l'école hôtelière de Koksijde !
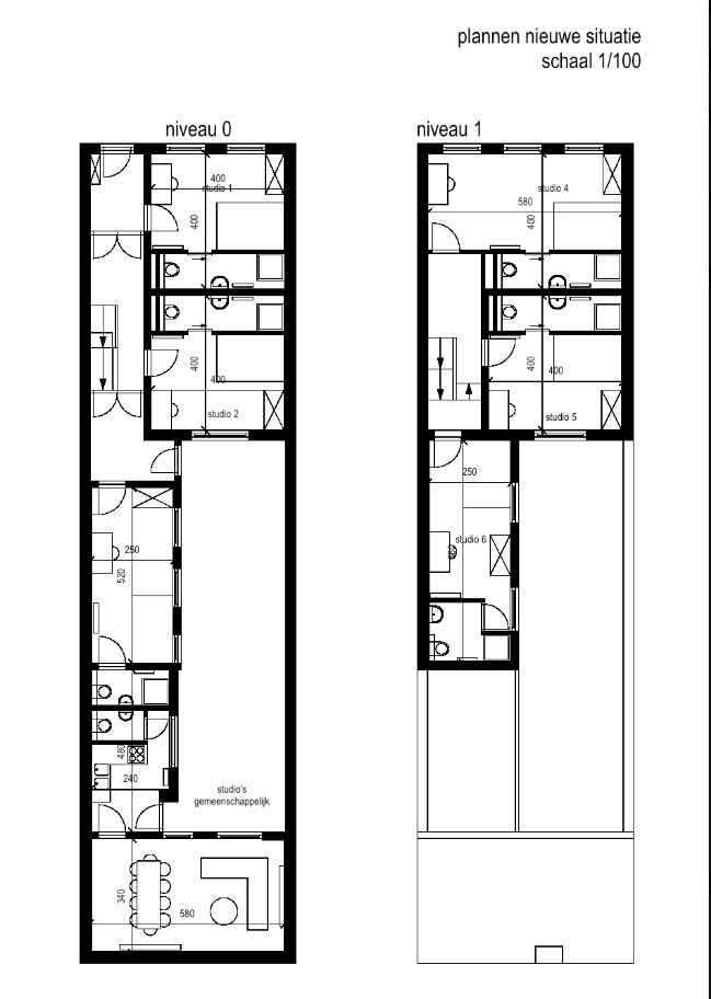
La maison entièrement rénovée est divisée en 8 chambres d'étudiants de haute qualité, déjà louées, et 1 studio répartis sur 3 étages.
Avec un rendement brut garanti de 6,8 %, c'est un investissement stable à proximité immédiate de l'école hôtelière de Koksijde !
La maison entièrement rénovée est divisée en 8 chambres d'étudiants de haute qualité, déjà louées, et 1 studio répartis sur 3 étages.
Finances
Disponibilité
À convenir
Bâtiment
Type de propriété
Maison
Sous-type
Maison
Surface
298 m²
Terrain
Affectation urbanistique
Zone résidentielle
Lieu
Transports en commun à proximité
Oui
Autoroute à proximité
Oui
Ecole à proximité
Oui
Aménagement
Nombre de chambres
8
Nombre de chambres
8
Nombre de salles de bain
8
Confort
Parlophone
Oui
Meublé
Oui
Raccordement électrique
Oui
Énergie
Score PEB (kWh/(m² an))
228
Classe énergétique
C
Numéro du rapport PEB
20240602-223250953-RES-1
Urbanisme
Intimation en justice
Pas de correction juridique ou mesure administrative imposée
Permis de construire
Oui
Droit de préemption
Non
Localité
Zeelaan 43, 8670 Koksijde550.000 EUR
Localité
Zeelaan 43
8670 Koksijde
Est-ce faisable pour vous?
La contribution personnelle minimale
-EUR
Frais mensuels
-EUR/mois
Vous préférez une proposition personnalisée ?
Expliquez-nous votre projet et votre situation personnelle et KBC calculera un taux d'intérêt personnalisé. Vous recevrez immédiatement une réponse à propos de la faisabilité de votre prêt et pourrez finaliser votre demande entièrement en ligne. Même si vous n'êtes pas client chez KBC.














