Terrain à vendre à Koekelare
280 980 €
Est-ce faisable pour vous?Description
Malheureusement, la description n'est pas disponible dans la langue sélectionnée.
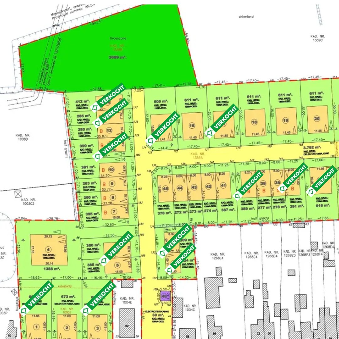
Langs de Hovaerestraat (rechts naast huisnummer 70) in Koekelare realiseren ze deze nieuwe verkaveling waar lot 4 te koop is. Je woont er op een boogscheut van het centrum, op wandelafstand van winkels (supermarkt op 650m, bakkerij op 500m), scholen (basisschool en middelbare school op 1 km) en openbaar vervoer (bushalte op 700m). Even uitwaaien in de natuur? Dat kan in het nabijgelegen Koekelarebos en Arboretum.
Dit villaperceel voor open bebouwing heeft een oppervlakte van 1388 m² (lot 4) groot. De grootte van de percelen en de ruime stedenbouwkundige voorschriften (één of twee bouwlagen, vlak of hellend dak) bieden tal van mogelijkheden. Hier bouwen ze jouw nieuwe, energiezuinige woning volledig op maat, tegen een vaste prijs.
Contacteer ons voor meer info of een afspraak. Of vraag jouw gratis inspiratieboek: 250 pagina's boordevol woonideeën.
Dit villaperceel voor open bebouwing heeft een oppervlakte van 1388 m² (lot 4) groot. De grootte van de percelen en de ruime stedenbouwkundige voorschriften (één of twee bouwlagen, vlak of hellend dak) bieden tal van mogelijkheden. Hier bouwen ze jouw nieuwe, energiezuinige woning volledig op maat, tegen een vaste prijs.
Contacteer ons voor meer info of een afspraak. Of vraag jouw gratis inspiratieboek: 250 pagina's boordevol woonideeën.
Finances
Disponibilité
À l’acte
Bâtiment
Type de propriété
Terrain
Terrain
Surface de la parcelle
1.388 m²
Affectation urbanistique
Zone résidentielle
Lieu
Transports en commun à proximité
Oui
Ecole à proximité
Oui
Commerces à proximité
Oui
Urbanisme
Intimation en justice
Pas de correction juridique ou mesure administrative imposée
Permis de lotissement
Oui
P(arcelle)-score
D (probabilité moyenne d’inondation dans le climat actuel)
Localité
Hovaerestraat 68, 8680 Koekelare280.980 EUR
Localité
Hovaerestraat 68
8680 Koekelare














