Maison à vendre à Waregem avec 3 chambres
Description
Bent u op zoek naar een moderne en energiezuinige nieuwbouwwoning op een rustige locatie?
Deze hedendaagse woning in Ijzerland te Desselgem wordt aangeboden als voorontwerp/concept, waardoor u nog de kans krijgt om de woning mee vorm te geven volgens uw eigen wensen.
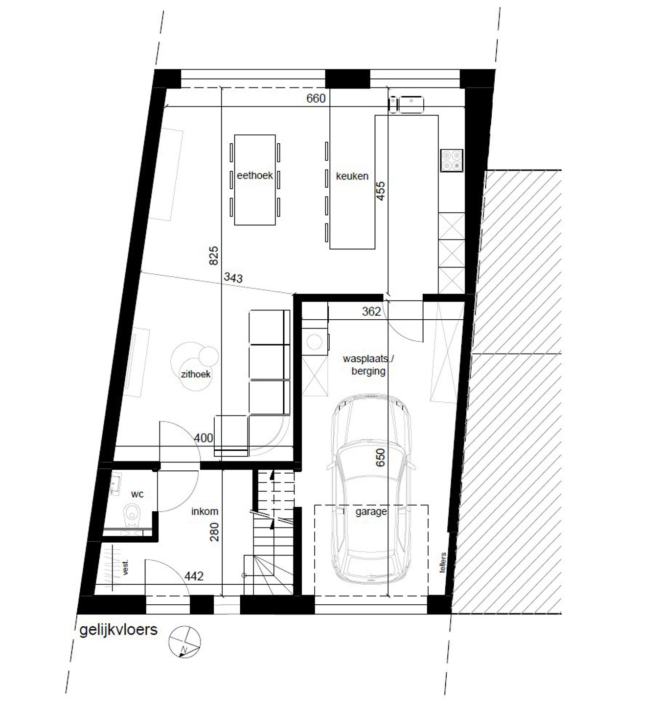
Het ontwerp werd uitgewerkt door W-architecten en combineert een tijdloze architectuur met een doordachte indeling en veel lichtinval. Op het gelijkvloers bevindt zich een ruime open leefruimte met zithoek, eethoek en keuken met eiland. Dankzij de grote raampartijen geniet u van een aangename connectie met de tuin en het terras.
Verder beschikt het gelijkvloers over een inkomhal met gastentoilet, een praktische berging/wasplaats en een inpandige garage.
Op de verdieping vindt u drie volwaardige slaapkamers, een badkamer met ligbad en dubbele wastafel, een aparte douchekamer, een apart toilet en een praktische dressing.
De zolderverdieping kan nog volledig worden ingericht indien gewenst.
Indeling en troeven:
✅ Ruime en lichtrijke leefruimte met zithoek en eethoek
✅ Open keuken met eiland en zicht op de tuin
✅ 3 volwaardige slaapkamers en 2 badkamers
✅ Inpandige garage en praktische berging
✅ Energiezuinige nieuwbouwwoning
✅ Rustige en aangename ligging in Desselgem
✅ Conceptwoning met mogelijkheid tot aanpassingen
De woning wordt aangeboden als voorontwerp, waardoor zowel de indeling als de afwerking nog kunnen worden aangepast aan uw wensen. Het project vertrekt vanuit het lastenboek van bouwcoördinator Your Home, dat nog volledig kan worden bijgestuurd op basis van de keuzes van de koper.
Bent u op zoek naar een nieuwbouwwoning die u nog mee kan vormgeven volgens uw eigen smaak en woonwensen?
Neem dan gerust contact met ons op voor meer informatie, de plannen of een persoonlijk gesprek.
- Vraagprijs exclusief btw en kosten -
Finances
Bâtiment
Terrain
Lieu
Aménagement
Confort
Énergie
Urbanisme
Localité
IJzerland 17, 8792 WaregemEst-ce faisable pour vous?
Vous préférez une proposition personnalisée ?
Expliquez-nous votre projet et votre situation personnelle et KBC calculera un taux d'intérêt personnalisé. Vous recevrez immédiatement une réponse à propos de la faisabilité de votre prêt et pourrez finaliser votre demande entièrement en ligne. Même si vous n'êtes pas client chez KBC.














