Maison à vendre à Termonde avec 2 chambres
325 000 €
Est-ce faisable pour vous?Description
Malheureusement, la description n'est pas disponible dans la langue sélectionnée.
Ben je op zoek naar een woning die je nog verder naar wens kan afwerken en bovendien al energiezuinig (label B) is? GEVONDEN!!
Deze woning is gelegen op wandelafstand van scholen, openbaar vervoer, winkels, horeca,...
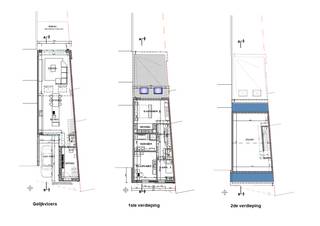
De woning kenmerkt op de benedenverdieping de inkomhal, de lichtrijke woonkamer, de berging en de volledig vernieuwde keuken met 1,5 spoelbak, keramische kookplaat, vaatwasser en koelkast. Ook is hier de mogelijkheid voor het plaatsen van een tweede toilet.
Op de eerste verdieping zijn er 2 ruime slaapkamers en de badkamer met douche en toilet aanwezig.
Ruimte te kort? Er is nog een kelder + ruime geïsoleerde zolder (toegankelijk via een vaste trap) aanwezig, die naar wens kan afgewerkt worden.
Genieten van de zon kan in de West georiënteerde tuin. Hier is ook een praktische bergruimte aanwezig voor de tuinmeubels. Parkeren kan eenvoudig in de straat en de woning is langs de achterkant van het perceel bereikbaar.
TROEVEN IN EEN NOTENDOP:
- Uitmuntende locatie!
- Vloerverwarming benedenverdieping!
- Energiezuinig met zonnepanelen!
- Verder af te werken naar wens!
- Extra mogelijkheden met de zolder!
- Uitweg langs achter!
- Voldoende parkeermogelijkheden!
Meer informatie/een bezoek? Contacteer Jonas op 0468 19 11 62 of via jonas@woonvast.be
Deze woning is gelegen op wandelafstand van scholen, openbaar vervoer, winkels, horeca,...
De woning kenmerkt op de benedenverdieping de inkomhal, de lichtrijke woonkamer, de berging en de volledig vernieuwde keuken met 1,5 spoelbak, keramische kookplaat, vaatwasser en koelkast. Ook is hier de mogelijkheid voor het plaatsen van een tweede toilet.
Op de eerste verdieping zijn er 2 ruime slaapkamers en de badkamer met douche en toilet aanwezig.
Ruimte te kort? Er is nog een kelder + ruime geïsoleerde zolder (toegankelijk via een vaste trap) aanwezig, die naar wens kan afgewerkt worden.
Genieten van de zon kan in de West georiënteerde tuin. Hier is ook een praktische bergruimte aanwezig voor de tuinmeubels. Parkeren kan eenvoudig in de straat en de woning is langs de achterkant van het perceel bereikbaar.
TROEVEN IN EEN NOTENDOP:
- Uitmuntende locatie!
- Vloerverwarming benedenverdieping!
- Energiezuinig met zonnepanelen!
- Verder af te werken naar wens!
- Extra mogelijkheden met de zolder!
- Uitweg langs achter!
- Voldoende parkeermogelijkheden!
Meer informatie/een bezoek? Contacteer Jonas op 0468 19 11 62 of via jonas@woonvast.be
Finances
Disponibilité
À l’acte
Bâtiment
Type de propriété
Maison
Sous-type
Maison
Surface
154 m²
Terrain
Surface de la parcelle
130 m²
Affectation urbanistique
Zone résidentielle
Jardin
Oui
Aménagement
Nombre de chambres
2
Nombre de salles de bain
1
Cuisine
Oui
Confort
Raccordement électrique
Oui
Raccordement au gaz
Oui
Raccordement aux égouts
Oui
Énergie
Score PEB (kWh/(m² an))
111
Classe énergétique
B
Numéro du rapport PEB
20251215-0003756650-RES-1
Urbanisme
Intimation en justice
Pas de correction juridique ou mesure administrative imposée
Permis de construire
Oui
Permis de lotissement
Non
Localité
Donckstraat 123, 9200 Termonde325.000 EUR
Localité
Donckstraat 123
9200 Termonde
Est-ce faisable pour vous?
La contribution personnelle minimale
-EUR
Frais mensuels
-EUR/mois
Vous préférez une proposition personnalisée ?
Expliquez-nous votre projet et votre situation personnelle et KBC calculera un taux d'intérêt personnalisé. Vous recevrez immédiatement une réponse à propos de la faisabilité de votre prêt et pourrez finaliser votre demande entièrement en ligne. Même si vous n'êtes pas client chez KBC.
















