Maison à vendre à Hamme avec 3 chambres
Description
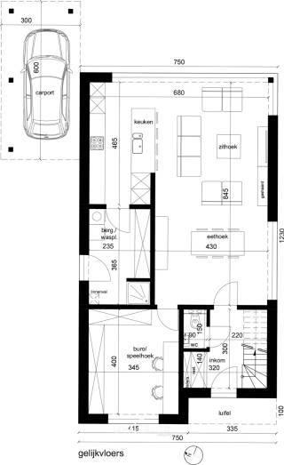
Gelijkvloers
- Indrukwekkende inkomhal met dubbele hoogte van ca. 5,7 m en grote raampartij
- Massieve eiken trap
- Sas met gastentoilet en technische ruimte/berging
- Toegang tot de geïntegreerde garage
- Lichtrijke woonkamer van ca. 30 m² met veel raampartijen
- Schuifraam met toegang tot het achterliggende terras
- Patio aan de zijkant waar genoten kan worden van de avondzon
- Open keuken met eetplaats van ca. 24 m² en eveneens een schuifraam naar het terras
- Plafondhoogte van ca. 2,8 m op het volledige gelijkvloers, met ramen uitgewerkt tot dezelfde hoogte voor extra ruimte- en lichtgevoel
1e verdieping
- Nachthal
- 3 ruime slaapkamers (24, 20 en 18 m²)
- Masterbedroom met eigen inloopdouche
- Centrale badkamer afgewerkt met natuursteen, voorzien van inloopdouche, vrijstaand bad en dubbele lavabo
- Apart toilet
Tuin en buitenruimte
- Terras aansluitend aan de leefruimte en keuken
- Ommuurde patio tuin die zorgt voor extra privacy
Troeven
- Kwalitatieve materialen: aluminium buitenschrijnwerk, natuursteen en massieve eik
- Vloerverwarming in combinatie met warmtepomp
- Zonnepanelen
- Terrassen, tuinafsluiting en grondwerken reeds uitgevoerd
- Zeer energiezuinige woning
- Mogelijkheid tot aankoop aan 6% btw
- Keuken nog vrij te kiezen en te plaatsen naar eigen smaak
Een stijlvolle en energiezuinige nieuwbouwwoning waar ruimte, licht en comfort centraal staan. Contacteer ons voor meer informatie of een bezichtiging.
Finances
Bâtiment
Terrain
Lieu
Aménagement
Confort
Énergie
Urbanisme
Localité
Sint-Annastraat 189, 9220 HammeEst-ce faisable pour vous?
Vous préférez une proposition personnalisée ?
Expliquez-nous votre projet et votre situation personnelle et KBC calculera un taux d'intérêt personnalisé. Vous recevrez immédiatement une réponse à propos de la faisabilité de votre prêt et pourrez finaliser votre demande entièrement en ligne. Même si vous n'êtes pas client chez KBC.















