Maison à vendre à Alost avec 9 chambres
Description
Dit uitzonderlijke en polyvalente pand is uiterst strategisch en commercieel gelegen op de Hopmarkt te Aalst. Dit bestaat uit een handelshuis enerzijds (huisnummer 30), en een aanpalend woonhuis anderzijds (huisnummer 28).
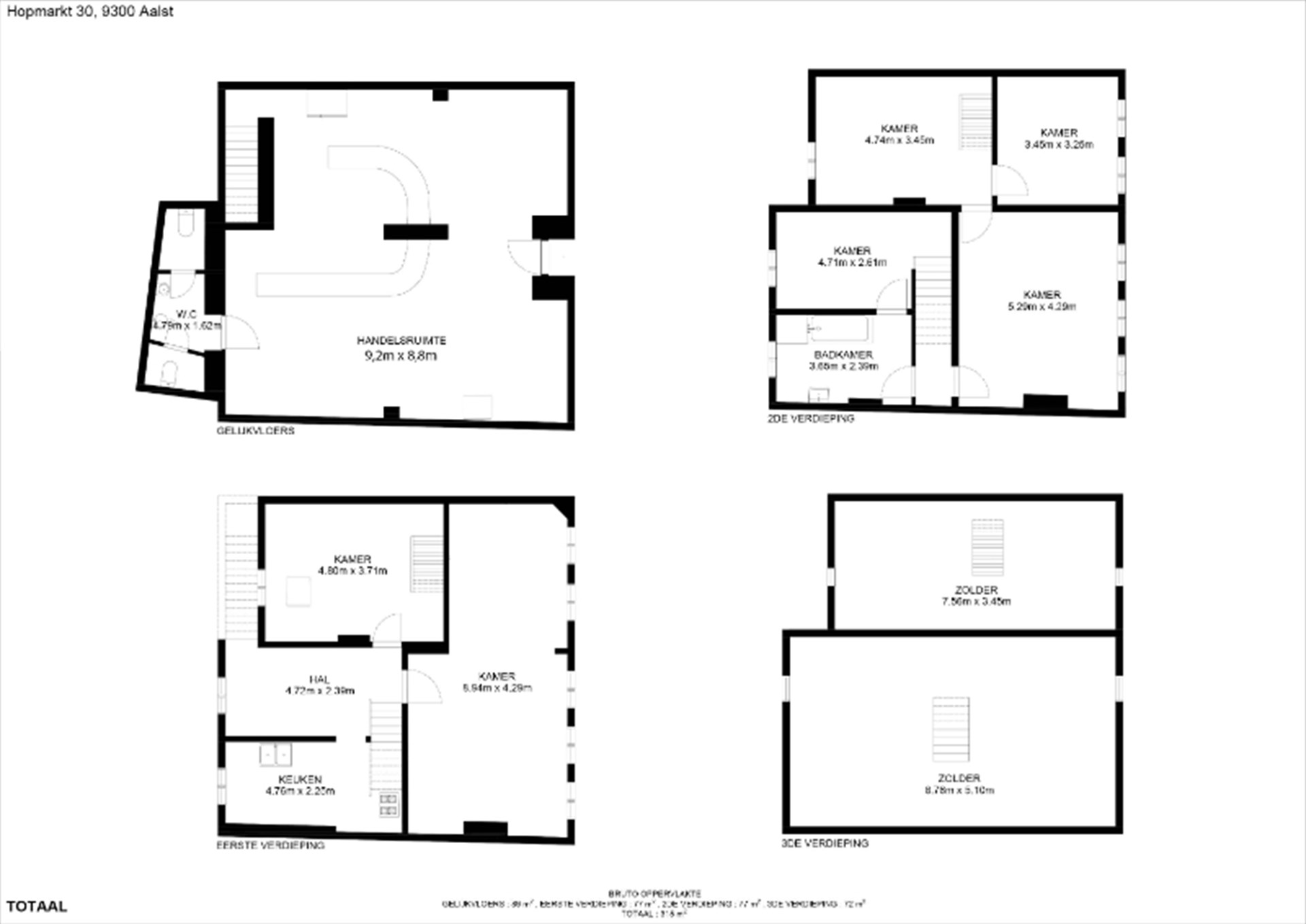
Het handelshuis bestaat op het gelijkvloers uit een handelszaak (momenteel restaurant met toog en sanitaire voorziening) van 89m². Op de eerste verdieping geeft de overloop toegang tot een ruime woonkamer, een keuken en 1 ruime slaapkamer. Op de tweede verdieping bevinden zich 4 slaapkamers en een badkamer. De zolderverdieping is onderverdeeld in 2 ruimtes en heeft een oppervlakte van 72m². De totale benutbare oppervlakten van dit handelshuis bedraagt 315m².
Het aanpalende woonhuis bestaat op het gelijkvloers uit een woonkamer en salon, op de eerste verdieping bevindt zich een keuken en een eerste slaapkamer. Op de tweede verdieping bevinden zich een tweede slaapkamer en een badkamer. De zolder kan aangewend worden voor het inrichten van een ruime slaapkamer. Momenteel wordt dit woonhuis gebruikt als opslagruimte. De woning heeft een totale benutbare oppervlakte van 118m². Gecombineerd met het handelshuis is er voor beide panden dus een benutbare oppervlakte van liefst 433m².
De totale grondoppervlakte bedraagt 1a40ca, de breedte aan de straat bedraagt 14 meter. Het pand is vastgesteld bouwkundig erfgoed (Burgerhuis).
Pand met vele mogelijkheden, beide entiteiten hebben renovatiewerken nodig. EPC’s 544 kWh/m² (handelspand) en 401 kWh/m² (woonhuis). Plannen zijn beschikbaar.
Voor meer informatie en/of een bezoek, contacteert u Didier van Immo Zone op het nummer 0476/ 73. 17. 99.
Finances
Bâtiment
Terrain
Aménagement
Confort
Énergie
Urbanisme
Localité
Hopmarkt 30, 9300 Alost800.000 EUR
Localité
Hopmarkt 30
9300 Alost















