Scoop: Maison à vendre à Denderleeuw avec 3 chambres
438 510 €
Est-ce faisable pour vous?Description
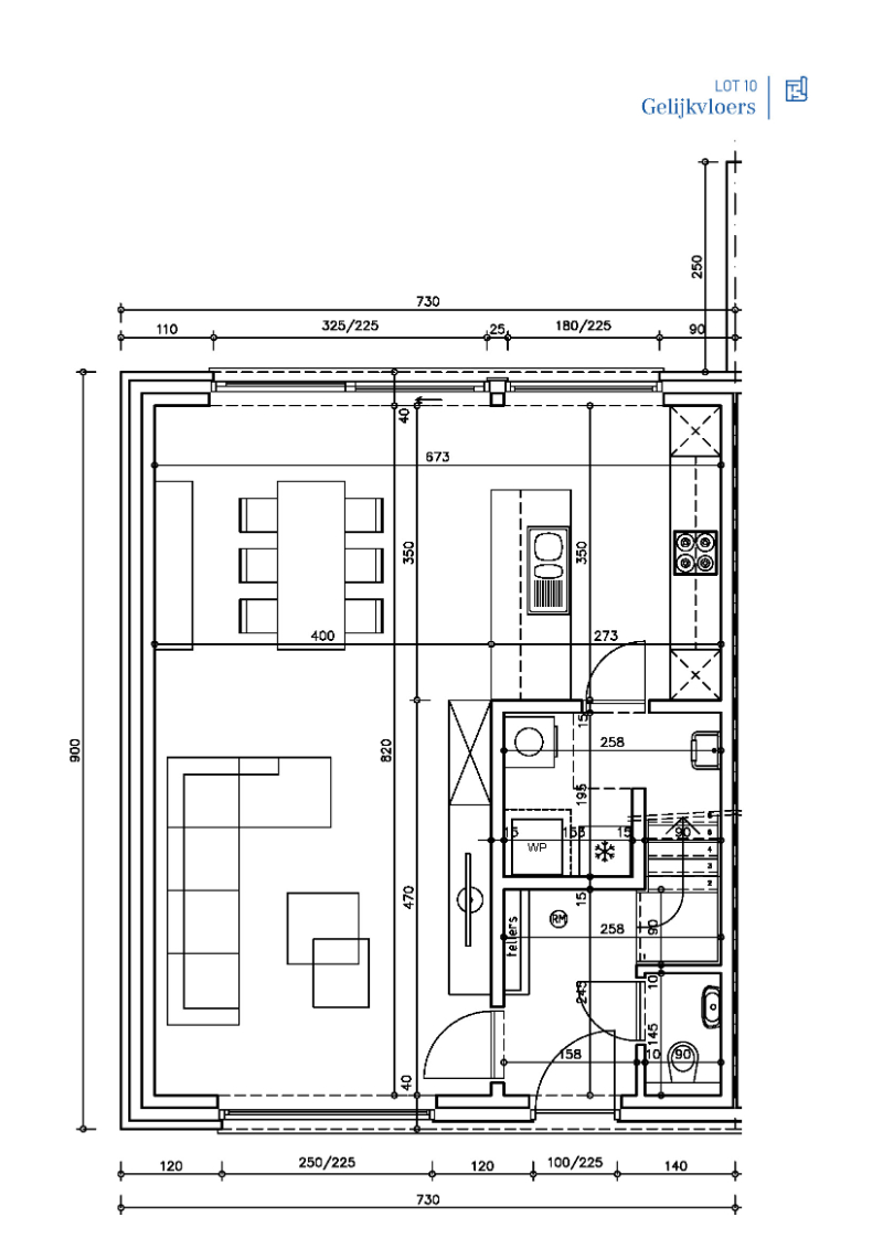
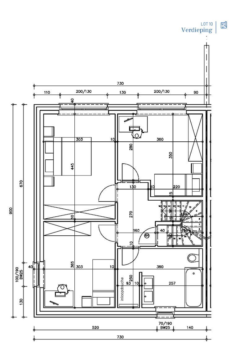
Denderleeuw, Anjelierenlaan - Steenweg - Fase 2 (Anjelierenlaan) - woningen: Lot 10
Ruime en energiezuinige nieuwbouwwoning op een zuidelijk georiënteerd perceel van 254m2. Op het gelijkvloers is een inkom met gastentoilet, een wasplaats/berging, en een open leefruimte. Op de eerste verdieping bevinden zich 3 slaapkamers en een badkamer met bad + inloopdouche + toilet. De zolder is toegankelijk met een vaste trap waardoor hier ook nog een vierde slaapkamer kan gemaakt worden. De vermelde prijs is inclusief ALL-IN afwerking. De interieurafwerking is 100% op maat! De keuken, vloeren, badkamer,.... het kan allemaal vrij gekozen worden. Standaard is de woning sowieso voorzien van alle moderne technieken zoals een warmtepomp en vloerverwarming op het gelijkvloers +1e verdieping. De woning wordt gebouwd in een nieuwe residentiële verkaveling met 11 woningen en 2 meergezinswoningen. Het residentiële project vormt een architecturaal geheel met optimaal ingedeelde wooneenheden en verschillende groen- en speelzones. Kom jij hier binnenkort thuis? Contacteer onze bouwadviseur Ewout voor meer informatie: 0497 588 888 - contact@huysmanbouw.be
Finances
Ventes sous régime de TVA
Oui
Valeur construction
29.230 €
Valeur du terrain
74.269 €
Bâtiment
Type de propriété
Maison
Sous-type
Maison
Nouveau bâtiment
Oui
Terrain
Surface de la parcelle
254 m²
Affectation urbanistique
Zone résidentielle
Orientation jardin
Sud
Aménagement
Nombre de chambres
3
Nombre de salles de bain
1
Nombre de toilettes
2
Confort
Ascenseur
Non
Raccordement électrique
Oui
Raccordement aux égouts
Oui
Énergie
Classe énergétique
A
Niveau E
0
Certificat d’inspection de l’électricité
Oui, conforme
Urbanisme
Permis de lotissement
Oui
Droit de préemption
Non
G(bâtiment)-score
A (pas d’inondation modélisée)
Localité
Anjelierenlaan, 9470 Denderleeuw438.510 EUR
Localité
Anjelierenlaan
9470 Denderleeuw
Est-ce faisable pour vous?
La contribution personnelle minimale
-EUR
Frais mensuels
-EUR/mois
Vous préférez une proposition personnalisée ?
Expliquez-nous votre projet et votre situation personnelle et KBC calculera un taux d'intérêt personnalisé. Vous recevrez immédiatement une réponse à propos de la faisabilité de votre prêt et pourrez finaliser votre demande entièrement en ligne. Même si vous n'êtes pas client chez KBC.














