Maison à vendre à Denderleeuw avec 3 chambres
Description
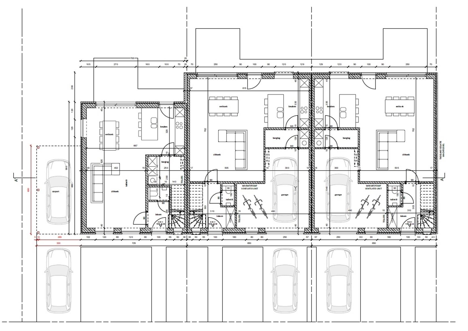
DENDERLEEUW - LOT 5
Op zoek naar een nieuwe en tijdloze halfopen nieuwbouwwoning in Denderleeuw?
Wij realiseren uw droomwoning helemaal naar jouw smaak. Bij ons bepaal jij de indeling, alle materiaal- en kleurkeuzes zodat jouw woning volledig aansluit bij jouw wensen en levensstijl.
Bovendien zetten we sterk in op duurzaamheid en energiezuinigheid, zodat jouw woning niet alleen klaar is voor vandaag, maar ook voor de toekomst.
Specificaties :
- PVC-ramen met driedubbel glas; zonwerend glas op zuid- en westgevels
- Lucht-water warmtepomp met buitenunit en warmtepompboiler
- Vloerverwarming en koeling op alle verdiepingen voor optimaal comfort
- Zonnepanelen voor duurzame energie en energiebesparing
- Badkamer volledig betegeld en voorzien van handdoek radiator
- Moderne architectuur en strak design
We begeleiden je graag van A tot Z bij het zorgeloos realiseren van jouw droomwoning.
Het nieuwbouwproject is gelegen in een rustige wijk op slechts 1,9 km van het station van Denderleeuw, ideaal voor wie graag vlot toegang wil tot openbaar vervoer. Ook winkels, scholen en de belangrijkste invalswegen bevinden zich vlakbij.
Samen zetten we de eerste stap richting jouw droomhuis!
Neem gerust contact met ons op voor een vrijblijvend kennismakingsgesprek via christelle@immosafe.be of bel vrijblijvend op het nummer 0473 878 879.
Bâtiment
Terrain
Aménagement
Énergie
Urbanisme
Localité
Keistraat, 9470 Denderleeuw456.851 EUR
Localité
Keistraat
9470 Denderleeuw
Est-ce faisable pour vous?
Vous préférez une proposition personnalisée ?
Expliquez-nous votre projet et votre situation personnelle et KBC calculera un taux d'intérêt personnalisé. Vous recevrez immédiatement une réponse à propos de la faisabilité de votre prêt et pourrez finaliser votre demande entièrement en ligne. Même si vous n'êtes pas client chez KBC.















