Maison à vendre à Horebeke avec 3 chambres
581 393 €
Est-ce faisable pour vous?Description
Malheureusement, la description n'est pas disponible dans la langue sélectionnée.
TE KOOP in HOREBEKE aan de Fonteinstraat 5 (lot 7)
Mooi gelegen perceel bouwgrond voor het bouwen van open bebouwing.
Lot 7 Opp.: 759 m² Prijs grond: € 195.000
FORMULE WATER- EN WINDDICHT:
- Ruwbouwwerken
- Timmerwerken
- PVC ramen met beglazing kw 1.0
- Dak- & zinkwerken
_________________
= € 386.393 excl. btw
OPTIE AFWERKING:
- Elektriciteit en ventilatie
- Chape -en vloerisolatie
- Pleisterwerken
- Sanitaire werken ( HW toestellen = € 4.000 excl. btw )
- Warmtepomp lucht/water ( Viessmann )
- Bevloering ( HW vloer : 35€/m² HW plinten : 12.50€/lm HW wandtegels : 25€/m² )
- Keukeninstallatie ( HW = € 8.000 excl. btw)
- Binnen schrijnwerk
- Voegwerken
- Blowerdoortest
- Zonnepanelen 8st. ( 435 Wp )
_________________
= € 139.312 excl.btw
WIJ BOUWEN OOK A LA CARTE
Opties zijn mogelijk tot net voor " Normale Bewoonbaarheid" (volgens aannemingsovereenkomst)
Informeer naar onze interessante HUISRUIL-FORMULE
zie ook : WWW.SPEYBROECK.BE
Bel 0473 300 700 of GRATIS 0800 15 700
Mooi gelegen perceel bouwgrond voor het bouwen van open bebouwing.
Lot 7 Opp.: 759 m² Prijs grond: € 195.000
FORMULE WATER- EN WINDDICHT:
- Ruwbouwwerken
- Timmerwerken
- PVC ramen met beglazing kw 1.0
- Dak- & zinkwerken
_________________
= € 386.393 excl. btw
OPTIE AFWERKING:
- Elektriciteit en ventilatie
- Chape -en vloerisolatie
- Pleisterwerken
- Sanitaire werken ( HW toestellen = € 4.000 excl. btw )
- Warmtepomp lucht/water ( Viessmann )
- Bevloering ( HW vloer : 35€/m² HW plinten : 12.50€/lm HW wandtegels : 25€/m² )
- Keukeninstallatie ( HW = € 8.000 excl. btw)
- Binnen schrijnwerk
- Voegwerken
- Blowerdoortest
- Zonnepanelen 8st. ( 435 Wp )
_________________
= € 139.312 excl.btw
WIJ BOUWEN OOK A LA CARTE
Opties zijn mogelijk tot net voor " Normale Bewoonbaarheid" (volgens aannemingsovereenkomst)
Informeer naar onze interessante HUISRUIL-FORMULE
zie ook : WWW.SPEYBROECK.BE
Bel 0473 300 700 of GRATIS 0800 15 700
Finances
Ventes sous régime de TVA
Oui
Valeur du terrain
195.000 €
Bâtiment
Type de propriété
Maison
Sous-type
Maison
Nouveau bâtiment
Oui
Terrain
Surface de la parcelle
729 m²
Aménagement
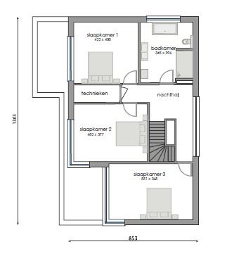
Nombre de chambres
3
Nombre de salles de bain
1
Type de cuisine
Cuisine finie
Confort
Ascenseur
Non
Énergie
Niveau E
15
Panneaux solaires
Oui
Type de vitrage
Double vitrage
Localité
Fonteinstraat 5, 9667 HorebekeEst-ce faisable pour vous?
La contribution personnelle minimale
-EUR
Frais mensuels
-EUR/mois
Vous préférez une proposition personnalisée ?
Expliquez-nous votre projet et votre situation personnelle et KBC calculera un taux d'intérêt personnalisé. Vous recevrez immédiatement une réponse à propos de la faisabilité de votre prêt et pourrez finaliser votre demande entièrement en ligne. Même si vous n'êtes pas client chez KBC.













