Terrain à vendre à Merelbeke
420 000 €
Est-ce faisable pour vous?Description
Te koop, ruim perceel bouwgrond voor open bebouwing met veel privacy op een heel gunstige ligging te Merelbeke
Te koop, ruim perceel bouwgrond voor open bebouwing met veel privacy op een heel rustige ligging te Merelbeke!
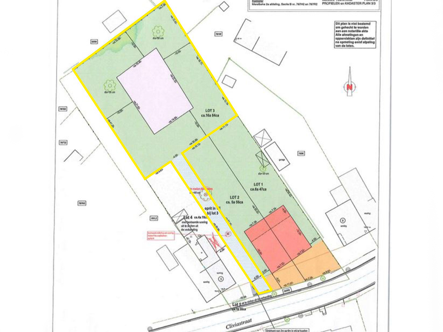
Op een ZEER RUSTIGE LOCATIE bevindt zich dit KNAP PERCEEL bouwgrond voor het bouwen van een OPEN BEBOUWING.
Gelegen nabij een kleuter en basisschool, openbaar vervoer en op 2km van centrum Merelbeke.
De grond is te bereiken via een PRIVATIEVE OPRIJLAAN die uitreikt tot achter de bestaande omliggende woningen waardoor u geniet van VEEL PRIVACY.
Het perceel beschikt over een TOTALE OPPERVLAKTE VAN 1686 M² en is geschikt voor ÉÉN GELIJKVLOERSE BOUWLAAG ONDER EEN PLAT OF HELLEND DAK.
Extra informatie: perceelbreedte van 35 meter, perceeldiepte van 93 meter en een maximum kroonlijsthoogte van 4 meter.
Bent u benieuwd naar dit perceel bouwgrond? Bel ons dan snel voor meer informatie!
Adres: Cliviastraat 5A te Merelbeke
Wg, Vv, Gvkr. P-score: A.
Op een ZEER RUSTIGE LOCATIE bevindt zich dit KNAP PERCEEL bouwgrond voor het bouwen van een OPEN BEBOUWING.
Gelegen nabij een kleuter en basisschool, openbaar vervoer en op 2km van centrum Merelbeke.
De grond is te bereiken via een PRIVATIEVE OPRIJLAAN die uitreikt tot achter de bestaande omliggende woningen waardoor u geniet van VEEL PRIVACY.
Het perceel beschikt over een TOTALE OPPERVLAKTE VAN 1686 M² en is geschikt voor ÉÉN GELIJKVLOERSE BOUWLAAG ONDER EEN PLAT OF HELLEND DAK.
Extra informatie: perceelbreedte van 35 meter, perceeldiepte van 93 meter en een maximum kroonlijsthoogte van 4 meter.
Bent u benieuwd naar dit perceel bouwgrond? Bel ons dan snel voor meer informatie!
Adres: Cliviastraat 5A te Merelbeke
Wg, Vv, Gvkr. P-score: A.
Bâtiment
Type de propriété
Terrain
Sous-type
Terrain à bâtir
Nouveau bâtiment
Oui
Terrain
Surface de la parcelle
1.686 m²
Affectation urbanistique
Zone résidentielle
Orientation jardin
Nord-ouest
Aménagement
Nombre de chambres
0
Nombre de salles de bain
0
Nombre de toilettes
0
Confort
Ascenseur
Non
Énergie
Niveau E
0
Certificat d’inspection de l’électricité
Non
Urbanisme
Permis de lotissement
Oui
Droit de préemption
Non
G(bâtiment)-score
A (pas d’inondation modélisée)
Localité
Cliviastraat 5 A, 9820 MerelbekeEst-ce faisable pour vous?
La contribution personnelle minimale
-EUR
Frais mensuels
-EUR/mois
Vous préférez une proposition personnalisée ?
Expliquez-nous votre projet et votre situation personnelle et KBC calculera un taux d'intérêt personnalisé. Vous recevrez immédiatement une réponse à propos de la faisabilité de votre prêt et pourrez finaliser votre demande entièrement en ligne. Même si vous n'êtes pas client chez KBC.












