Land for sale in Sint-Gillis-Waas with 4 bedrooms
€575,000
Is this affordable for you?Description
renovatieproject, opbrengsteigendom
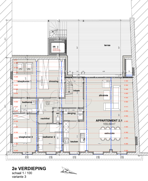
renovatieproject met 5 appartementen... Geef deze grote herenwoning met prachtige gevel een grondige renovatie/opknapbeurt en u hebt een ongelofelijk uniek pand in handen op een toplocatie! Authentieke elementen, marmeren schouwmantels, visgraat parketvloeren, mouluren, hoge plafonds, glas in lood, franse deuren zijn in overvloed aanwezig. Met 3 verdiepingen, om te bouwen tot 5 volwaardige appartementen en met 5 mooi afgewerkte parkeerplaatsen. Schitterende inkomhal met oorspronkelijke mozaïeke tegels. Van hieruit heeft men toegang tot alle appartementen.
Buiten: terras met tuin aanwezig. 5 parkeerplaatsen inbegrepen in deze verkoopprijs.
PRACHTIGE HERENWONING MET VEEL RUIMTE EN VOLOP MOGELIJKHEDEN OM ER JE EIGEN STEMPEL OP TE DRUKKEN!
bekijk de ontwerpen op de fotos, de bouwvergunning voor deze renovatie werd aangevraagd.
Het gebouw wordt verkocht in de huidige toestand !
Buiten: terras met tuin aanwezig. 5 parkeerplaatsen inbegrepen in deze verkoopprijs.
PRACHTIGE HERENWONING MET VEEL RUIMTE EN VOLOP MOGELIJKHEDEN OM ER JE EIGEN STEMPEL OP TE DRUKKEN!
bekijk de ontwerpen op de fotos, de bouwvergunning voor deze renovatie werd aangevraagd.
Het gebouw wordt verkocht in de huidige toestand !
Financial
Investment property
Yes
Building
Type of property
Plot
Subtype
Plot
Surface
200 m²
Terrain
Plot size
375 m²
Most recent urban destination
Residential area
Garden
Yes
Layout
Number of bedrooms
4
Number of bathrooms
1
Number of toilets
0
Comfort
Lift
No
Electricity connection
Yes
Gas connection
Yes
Energy
E-level
0
Type of glazing
Single glazing
Electricity inspection certificate
Yes, not compliant
Urban planning
Subdivision permit
No
Pre-emption right
No
Protected heritage
Yes
Location
Kronenhoekstraat 6, 9170 Sint-Gillis-Waas575.000 EUR
Location
Kronenhoekstraat 6
9170 Sint-Gillis-Waas
Is this affordable for you?
Minimal personal contribution
-EUR
Monthly payments
-EUR/month
Prefer a tailor-made proposal?
Tell us more about your project and your personal situation and KBC will calculate your personal interest rate. You will receive immediate feedback on whether your loan is feasible and you can complete your application completely digitally. Even if you are not a KBC customer.













