House for sale in Oudenaarde with 2 bedrooms
€437,896
Is this affordable for you?Description
Unfortunately, the description is not available in the selected language.
Deze moderne woning maakt deel uit van het nieuwbouwproject Ernest in Oudenaarde – een eigentijdse en duurzame woonontwikkeling op een gunstige locatie.
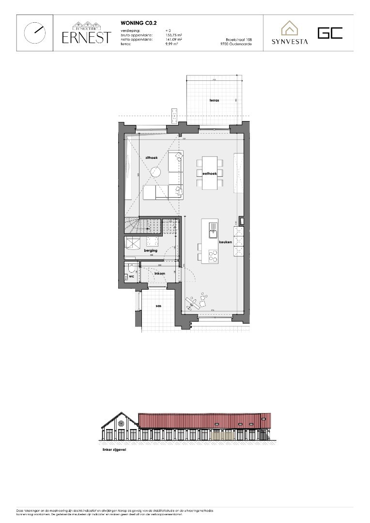
Op het gelijkvloers komt u binnen via de inkomhal met een apart toilet en ruime berging. Van daaruit stapt u binnen in de lichtrijke leefruimte met open keuken – het kloppend hart van de woning. Grote raampartijen zorgen voor een directe verbinding met het aangename terras, ideaal voor een ontspannen moment of een diner in de buitenlucht.
De eerste verdieping omvat een nachthal, een apart toilet en een moderne badkamer met ligbad en dubbele wastafel. Daarnaast zijn er twee volwaardige slaapkamers, een open vide en een extra ruimte die perfect dienst kan doen als speel- of leeshoek – een veelzijdige aanvulling op het wooncomfort.
Een bijkomende troef is de aangename groenzone, die rust en privacy biedt en het buitengevoel versterkt.
Deze woning combineert hedendaagse architectuur met functioneel wooncomfort – perfect voor wie modern en flexibel wil wonen.
Alle oppervlaktes zijn BVO. EPC en KI zijn nog niet gekend.
De foto’s zijn louter illustratief.
Op het gelijkvloers komt u binnen via de inkomhal met een apart toilet en ruime berging. Van daaruit stapt u binnen in de lichtrijke leefruimte met open keuken – het kloppend hart van de woning. Grote raampartijen zorgen voor een directe verbinding met het aangename terras, ideaal voor een ontspannen moment of een diner in de buitenlucht.
De eerste verdieping omvat een nachthal, een apart toilet en een moderne badkamer met ligbad en dubbele wastafel. Daarnaast zijn er twee volwaardige slaapkamers, een open vide en een extra ruimte die perfect dienst kan doen als speel- of leeshoek – een veelzijdige aanvulling op het wooncomfort.
Een bijkomende troef is de aangename groenzone, die rust en privacy biedt en het buitengevoel versterkt.
Deze woning combineert hedendaagse architectuur met functioneel wooncomfort – perfect voor wie modern en flexibel wil wonen.
Alle oppervlaktes zijn BVO. EPC en KI zijn nog niet gekend.
De foto’s zijn louter illustratief.
Building
Type of property
House
Subtype
House
Surface
153,75 m²
Terrain
Most recent urban destination
Residential area
Garden
Yes
Layout
Number of bedrooms
2
Surface bedrooms
15,18 m²; 10,87 m²
Number of bathrooms
1
Comfort
Parlophone
Yes
Energy
EPC label
A
Solar panels
Yes
Type of glazing
Triple glazing
Urban planning
Summons
No judicial remedial or administrative measure imposed
Building permit
Yes
Pre-emption right
No
Location
Broekstraat 108, 9700 Oudenaarde437.896 EUR
Location
Broekstraat 108
9700 Oudenaarde















