Maison à vendre à Begijnendijk avec 3 chambres
Description
Développement semi-détaché avec vue sur la verdure !
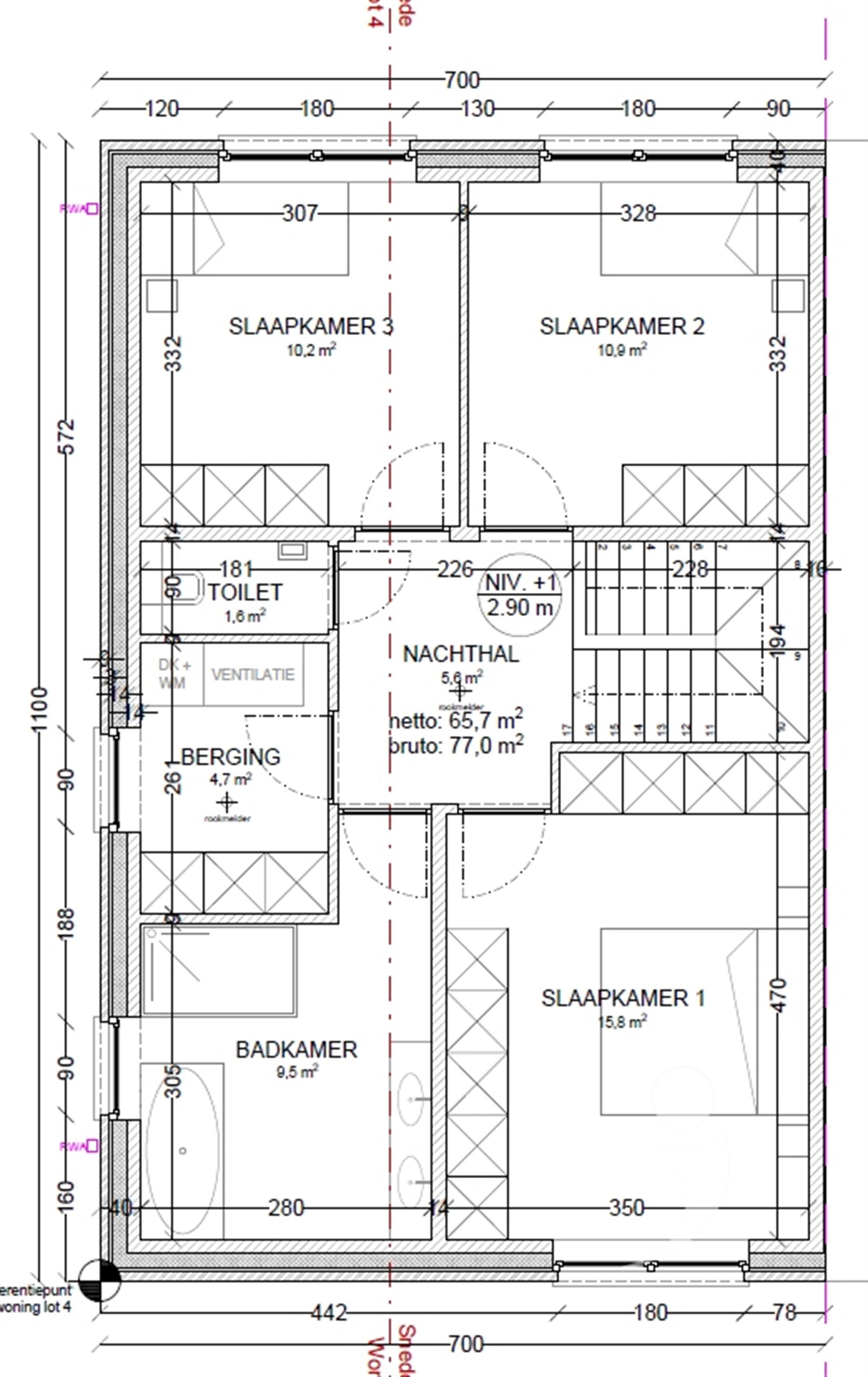
#Le rez-de-chaussée se compose d'un hall d'entrée avec toilettes, d'un garage et d'un espace de vie ouvert avec salon, salle à manger et cuisine. Au premier étage, vous trouverez un hall de nuit, des toilettes séparées, trois chambres spacieuses, un débarras avec des connexions pour la machine à laver et le sèche-linge, et une salle de bains avec baignoire, douche et double lavabo.
#Cette maison économe en énergie est équipée de panneaux solaires (4500 Wp), d'une pompe à chaleur avec chauffage par le sol, d'un système de ventilation et d'un système de récupération des eaux de pluie. La finition de la cuisine, de la salle de bain et des sols peut encore être choisie selon l'avancement des travaux de construction.
Ce bien vous intéresse ? Contactez-nous au 016 15 31 15 ou info@immolivit.be
Finances
Bâtiment
Terrain
Lieu
Aménagement
Énergie
Urbanisme
Localité
Veldstraat 22 C, 3130 BegijnendijkEst-ce faisable pour vous?
Vous préférez une proposition personnalisée ?
Expliquez-nous votre projet et votre situation personnelle et KBC calculera un taux d'intérêt personnalisé. Vous recevrez immédiatement une réponse à propos de la faisabilité de votre prêt et pourrez finaliser votre demande entièrement en ligne. Même si vous n'êtes pas client chez KBC.














