Maison à vendre à Begijnendijk avec 3 chambres
Description
Découvrez ce bâtiment jumelé économe en énergie du projet Veldzicht, situé dans un endroit calme et verdoyant à proximité du centre de Begijnendijk.
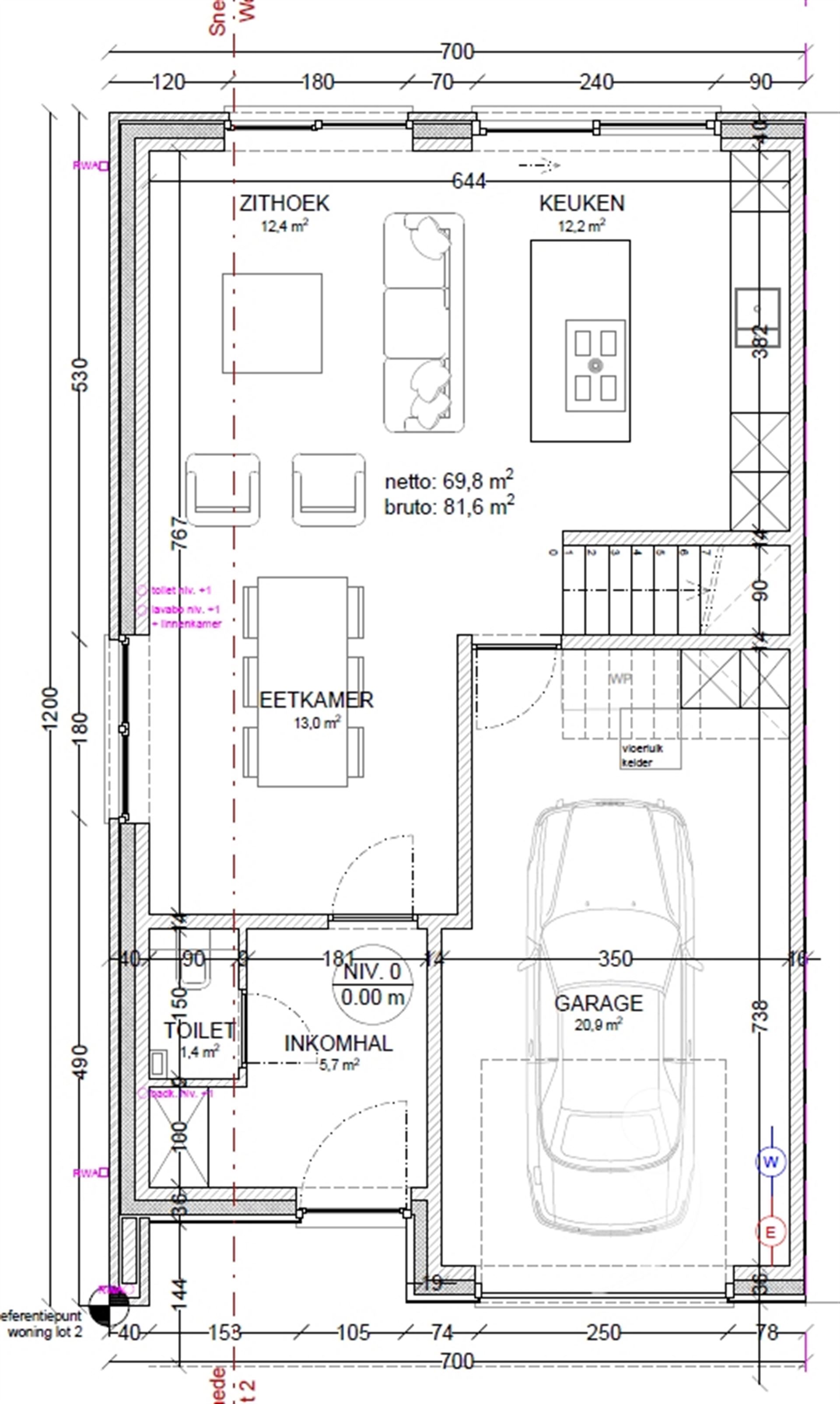
En entrant, un hall d'entrée avec des toilettes pour invités vous accueille, suivi d'un garage pratique. L'espace de vie ouvert avec le coin salon, la salle à manger et la cuisine offre une vue sur le jardin et la prairie verte derrière.
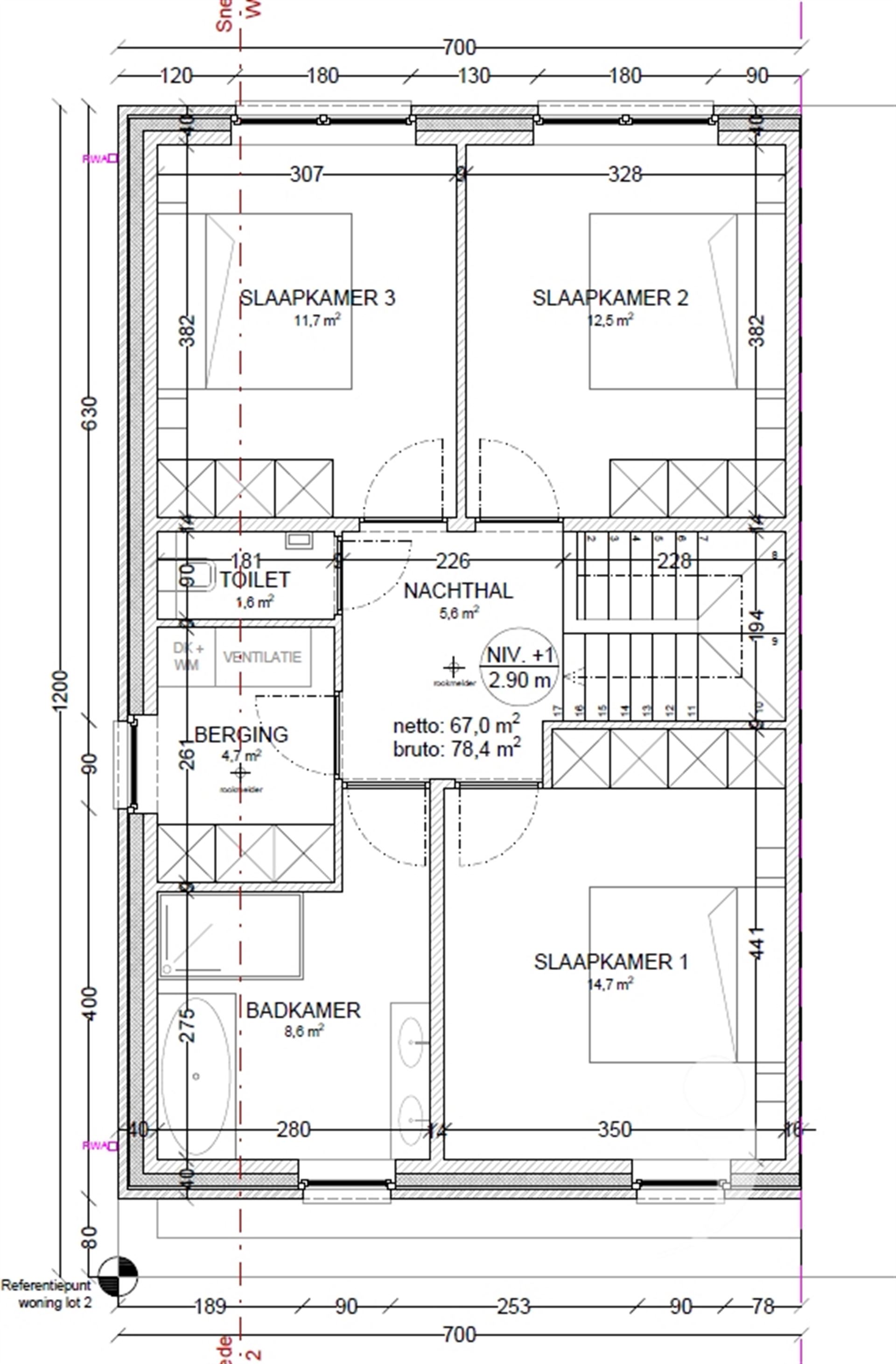
Au premier étage, vous trouverez un hall de nuit, des toilettes séparées, trois chambres spacieuses, un débarras pratique avec des connexions pour la machine à laver et le sèche-linge, et une salle de bain moderne avec une baignoire, une douche et un double lavabo.
#Cette maison est équipée de panneaux solaires (4500 Wp), d'une pompe à chaleur couplée à un chauffage par le sol, d'un système de ventilation de type D et d'un système de récupération des eaux de pluie. La cuisine, la salle de bain et les sols peuvent encore être choisis en fonction de l'avancement du projet.
Ce bien vous intéresse ? Contactez-nous au 016 15 31 15 ou info@immolivit.be
Finances
Bâtiment
Terrain
Lieu
Aménagement
Énergie
Urbanisme
Localité
Veldstraat 22 A, 3130 BegijnendijkEst-ce faisable pour vous?
Vous préférez une proposition personnalisée ?
Expliquez-nous votre projet et votre situation personnelle et KBC calculera un taux d'intérêt personnalisé. Vous recevrez immédiatement une réponse à propos de la faisabilité de votre prêt et pourrez finaliser votre demande entièrement en ligne. Même si vous n'êtes pas client chez KBC.














