Maison à vendre à Ooigem avec 3 chambres
Description
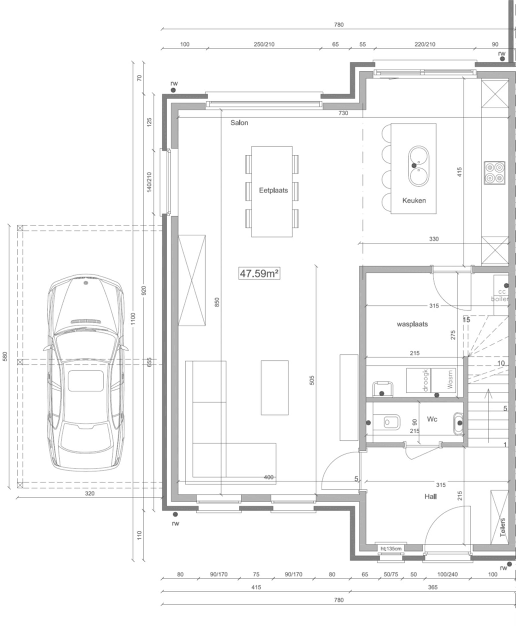
Maison
Cette belle maison de construction récente est idéale pour les jeunes familles. L'entrée se fait par le hall d'entrée avec les toilettes pour invités. L'espace de vie spacieux avec cuisine ouverte offre de nombreuses possibilités et une belle vue sur le jardin. La maison dispose d'une buanderie spacieuse avec beaucoup d'espace de rangement. A l'étage, nous trouvons 3 chambres spacieuses, un dressing et une salle de bain. La salle de bains est équipée d'une douche à l'italienne et d'une baignoire. Le grenier est accessible par un escalier descendant. La propriété dispose d'un grand jardin qui peut être aménagé à volonté. La maison sera équipée d'un abri de voiture.
La maison est actuellement en cours d'étanchéité au vent et à l'eau. Vous pouvez donc encore participer au choix de l'intérieur et du design de la maison. Vous choisirez ainsi une maison entièrement adaptée à vos goûts. Les budgets complets sont déjà inclus dans le prix.
Pour vous donner une bonne idée de notre travail, une maison a déjà été préparée comme maison témoin. De cette manière, vous pouvez vous faire une idée réaliste de la finition et de la qualité futures.
Si vous êtes intéressé par cette propriété et que vous souhaitez visiter la maison témoin, veuillez contacter Vincent au 056 29 30 30.
Il reste encore quelques maisons à vendre dans ce projet. N'hésitez pas à nous contacter pour plus d'informations.
Bâtiment
Terrain
Aménagement
Confort
Énergie
Urbanisme
Localité
Fabiolalaan 2 A, 8710 OoigemEst-ce faisable pour vous?
Vous préférez une proposition personnalisée ?
Expliquez-nous votre projet et votre situation personnelle et KBC calculera un taux d'intérêt personnalisé. Vous recevrez immédiatement une réponse à propos de la faisabilité de votre prêt et pourrez finaliser votre demande entièrement en ligne. Même si vous n'êtes pas client chez KBC.












