Maison à vendre à Ooigem avec 3 chambres
Description
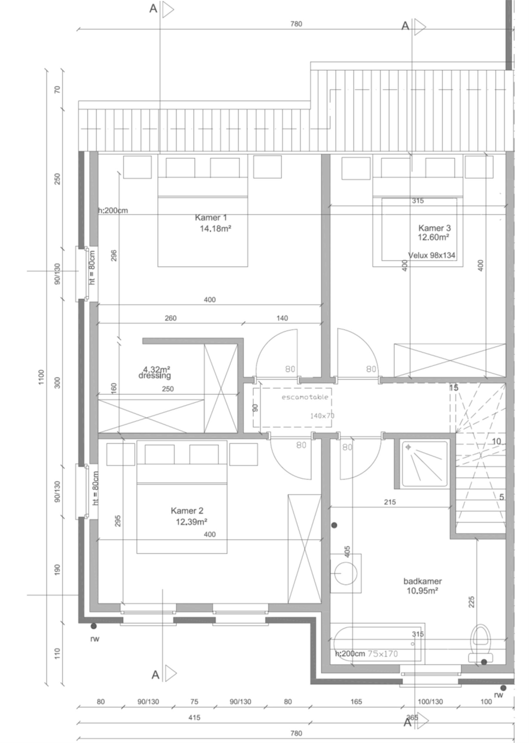
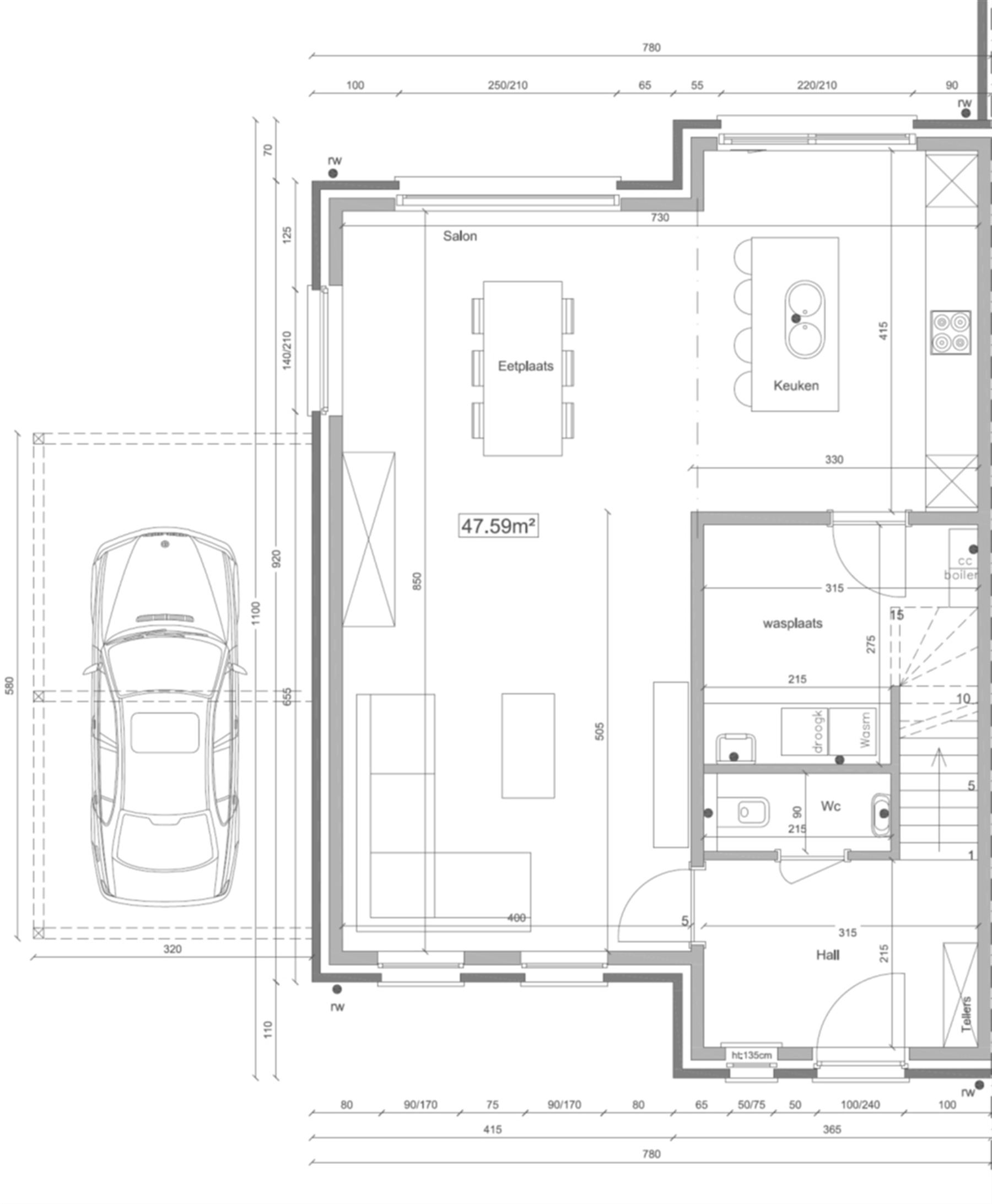
Deze prachtige nieuwbouwwoning is de ideale thuis voor jonge gezinnen. We komen binnen via de inkom met gastentoilet. De ruime leefruimte met open keuken biedt veel mogelijkheden en een mooi zicht op de tuin. De woning is voorzien van een ruime wasplaats met veel bergruimte. Op de verdieping vinden we 3 ruime slaapkamers, een dressing en een badkamer. In de badkamer wordt een wastafel, inloopdouche en een ligbad voorzien. De zolder is te bereiken via een uitvaltrap. De woning biedt een ruime tuin, die naar keuze aan te leggen is. De woning wordt voorzien van een carport.
De woning wordt op dit moment wind-en waterdicht gezet. U kan dus zelf nog mee kiezen in het interieur en design van de woning. Zo kiest u voor een woning die volledig op uw eigen smaak afgesteld is. Hiervoor zijn reeds volwaardige budgetten in de prijs inbegrepen.
Om u een goed beeld te kunnen geven van onze afwerking, werd reeds een woning als kijkwoning opgemaakt. Op die manier heeft u meteen een realistisch beeld van de toekomstige afwerking en kwaliteit.
Heeft u interesse in deze woning en wenst u de kijkwoning te bezoeken: neem dan contact op met Lore: lore@immovanparijs.be of 056 29 30 30.
Bâtiment
Terrain
Aménagement
Énergie
Urbanisme
Est-ce faisable pour vous?
Vous préférez une proposition personnalisée ?
Expliquez-nous votre projet et votre situation personnelle et KBC calculera un taux d'intérêt personnalisé. Vous recevrez immédiatement une réponse à propos de la faisabilité de votre prêt et pourrez finaliser votre demande entièrement en ligne. Même si vous n'êtes pas client chez KBC.












