Maison à vendre à Ooigem avec 3 chambres
Description
Maison
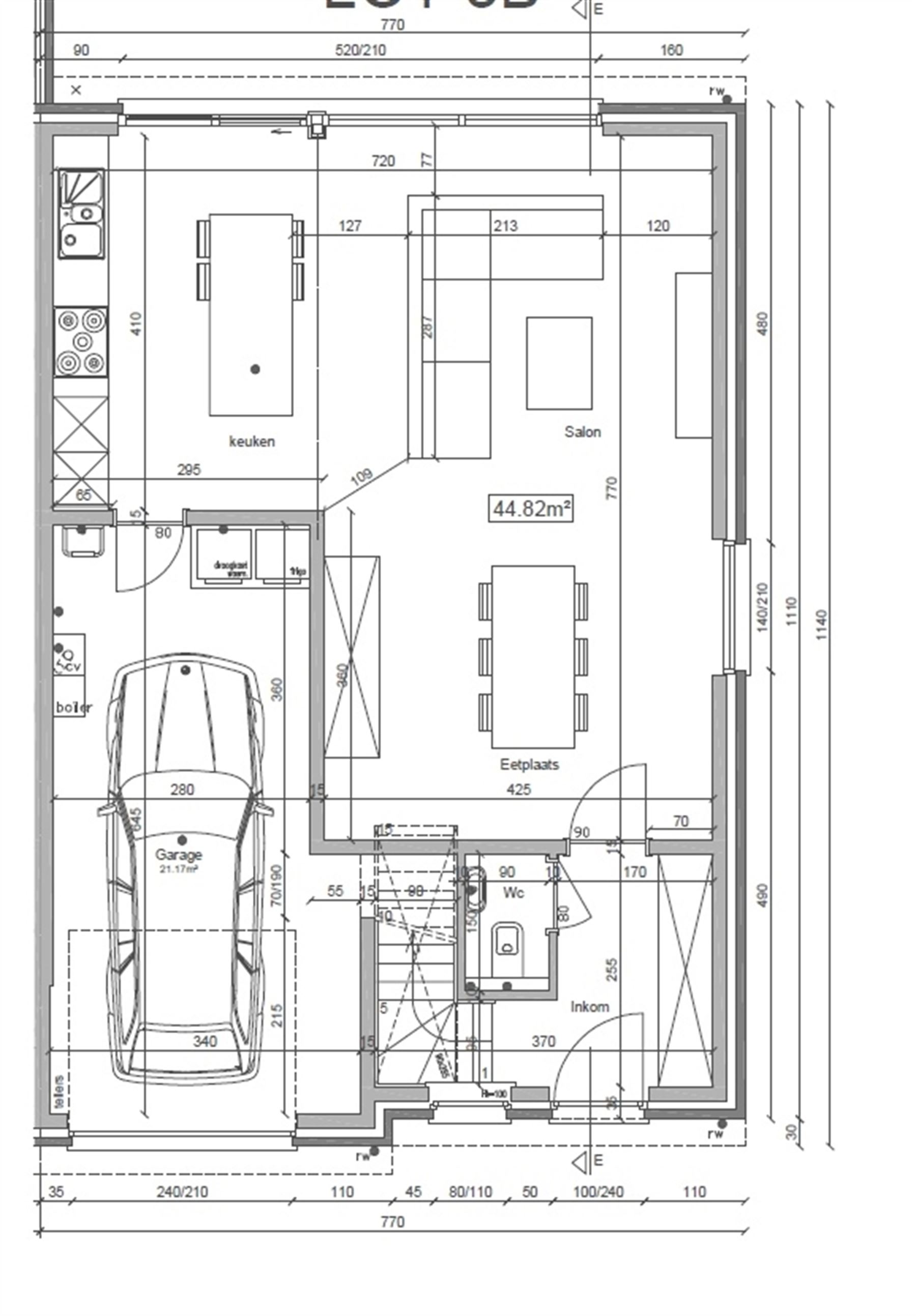
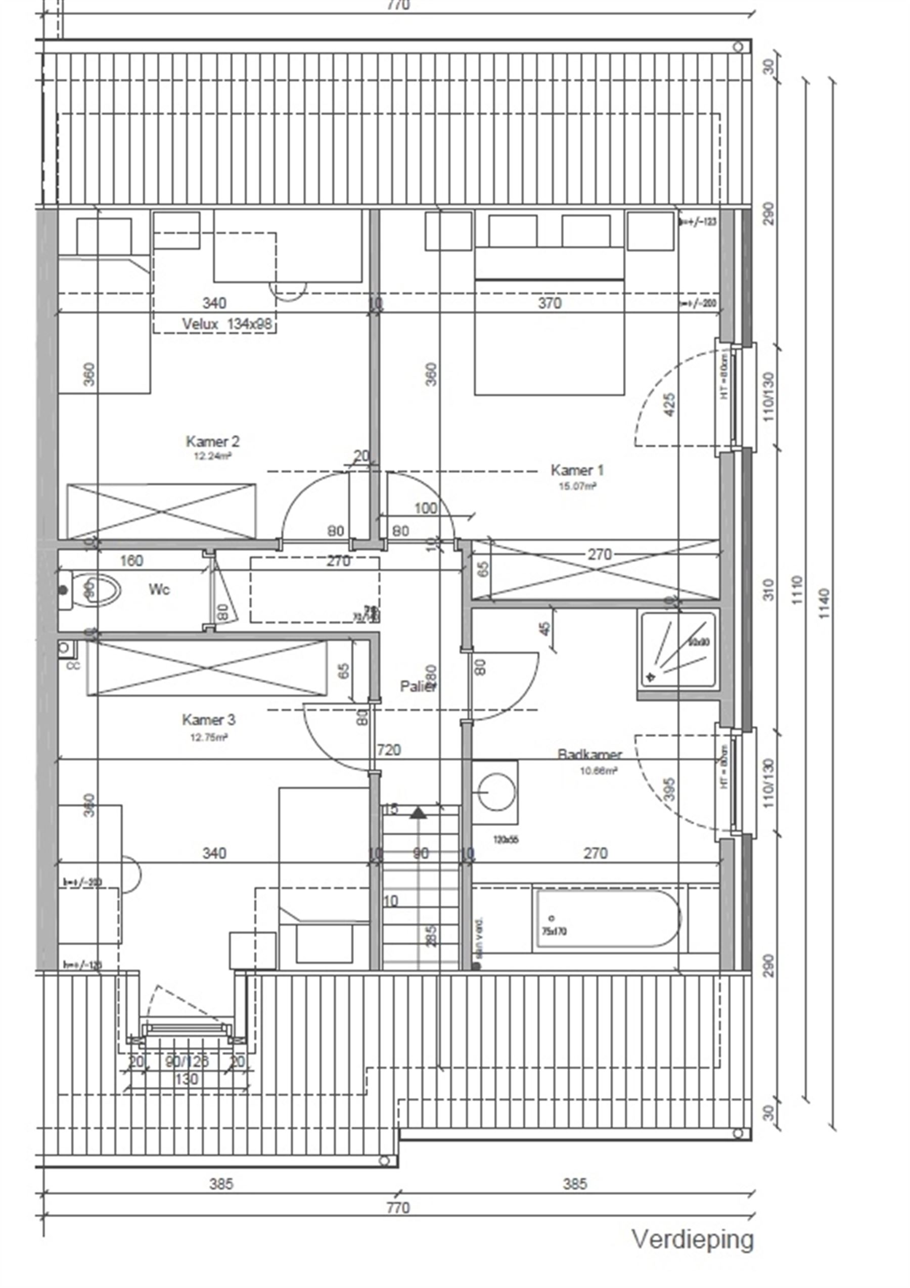
Cette belle maison de construction récente est idéale pour les jeunes familles. L'entrée se fait par le hall d'entrée avec les toilettes pour invités. L'espace de vie spacieux avec cuisine ouverte offre de nombreuses possibilités et une belle vue sur le jardin. Le garage intérieur dispose d'un espace pour la machine à laver et le sèche-linge. A l'étage se trouvent 3 chambres spacieuses, des toilettes séparées et une salle de bains. La salle de bains est équipée d'un lavabo, d'une douche à l'italienne et d'une baignoire. Le grenier est accessible par un escalier descendant. La propriété dispose d'un jardin spacieux, qui peut être aménagé à volonté.
La maison est en train d'être rendue étanche au vent et à l'eau. Vous pouvez donc encore participer au choix de l'intérieur et de l'aménagement de la maison. Vous choisissez ainsi une maison entièrement adaptée à vos goûts. Les budgets complets sont déjà inclus dans le prix.
Pour vous donner une bonne idée de notre travail, une maison a déjà été préparée comme maison témoin. De cette manière, vous pouvez vous faire une idée réaliste de la finition et de la qualité futures.
Si vous êtes intéressé par cette propriété et que vous souhaitez visiter la maison témoin, veuillez contacter Vincent au 056 29 30 30.
Il reste encore quelques maisons à vendre dans ce projet. N'hésitez pas à nous contacter pour plus d'informations.
Bâtiment
Terrain
Aménagement
Énergie
Urbanisme
Localité
Fabiolalaan, 8710 OoigemEst-ce faisable pour vous?
Vous préférez une proposition personnalisée ?
Expliquez-nous votre projet et votre situation personnelle et KBC calculera un taux d'intérêt personnalisé. Vous recevrez immédiatement une réponse à propos de la faisabilité de votre prêt et pourrez finaliser votre demande entièrement en ligne. Même si vous n'êtes pas client chez KBC.












