Commercieel te huur in Watermaal-Bosvoorde
Neem contact op
Omschrijving
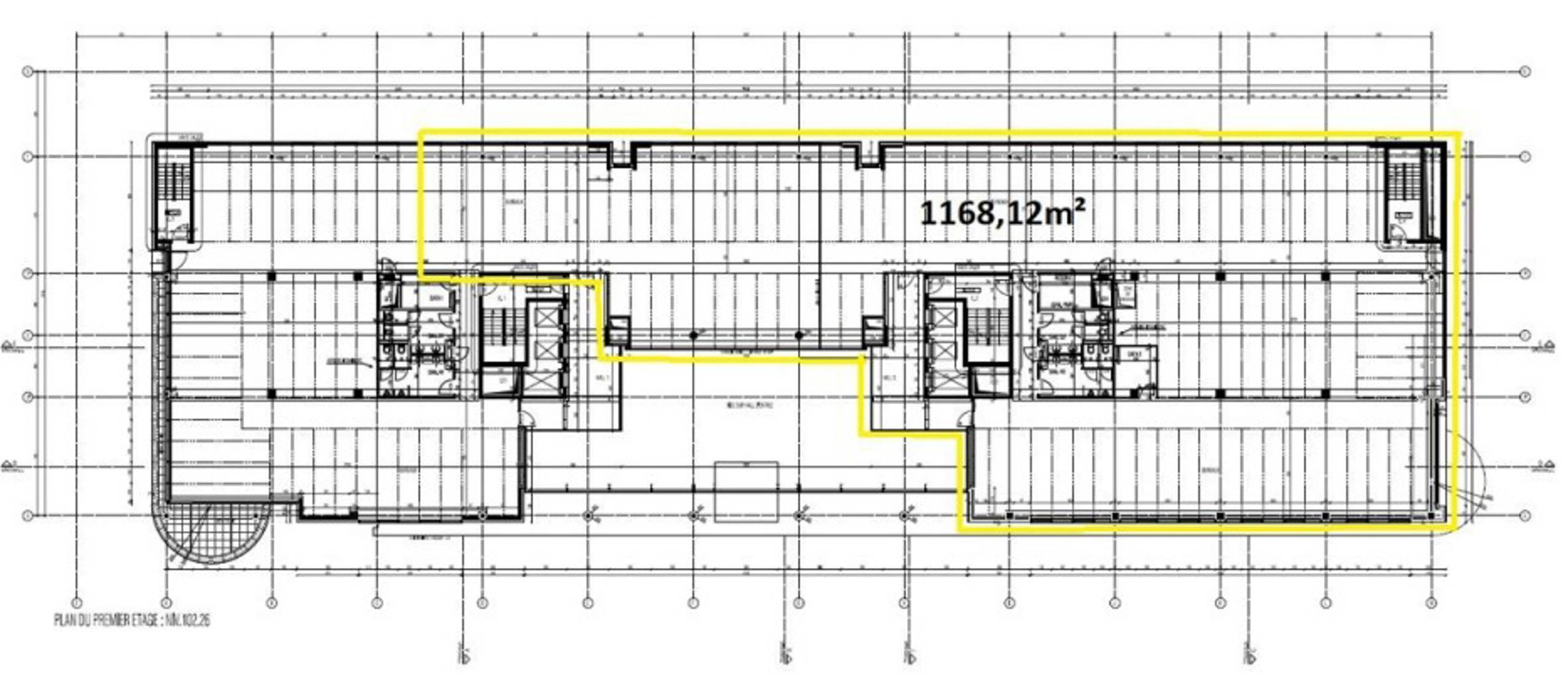
Prachtige kantoren te huur vanaf 244 m² tot 1.120 m²
Moderne kantoren te huur bij de ingang van het Terkamerenbos en de Franklin Rooseveltlaan. Het gebouw ligt naast het Hippodrome, vlakbij het station van Boisfort en is gemakkelijk bereikbaar via de ringweg en de snelweg E411.
Archief: 90 €/m²/jaar (exclusief lasten en belastingen 34 €/m²/jaar)
Binnenparking: 1.800 €/plaats/jaar (exclusief kosten en belastingen 484 €/plaats/jaar)
Archief: 90 €/m²/jaar (exclusief lasten en belastingen 34 €/m²/jaar)
Binnenparking: 1.800 €/plaats/jaar (exclusief kosten en belastingen 484 €/plaats/jaar)
Financieel
Prijs per m²
185 €
Gebouw
Type pand
Commercieel
Subtype
Kantoor
Bewoonbare oppervlakte
912 m²
Ligging
Openbaar vervoer nabij
Ja
Comfort
Type airconditioning
Klimaatplafond
Energie
Dubbele beglazing
Ja
Type verwarming
Gas













