Omschrijving
Exclusief Handelsgelijkvloers/Kantoor met Mezzanine – Hoekligging Montignystraat / Amerikalei
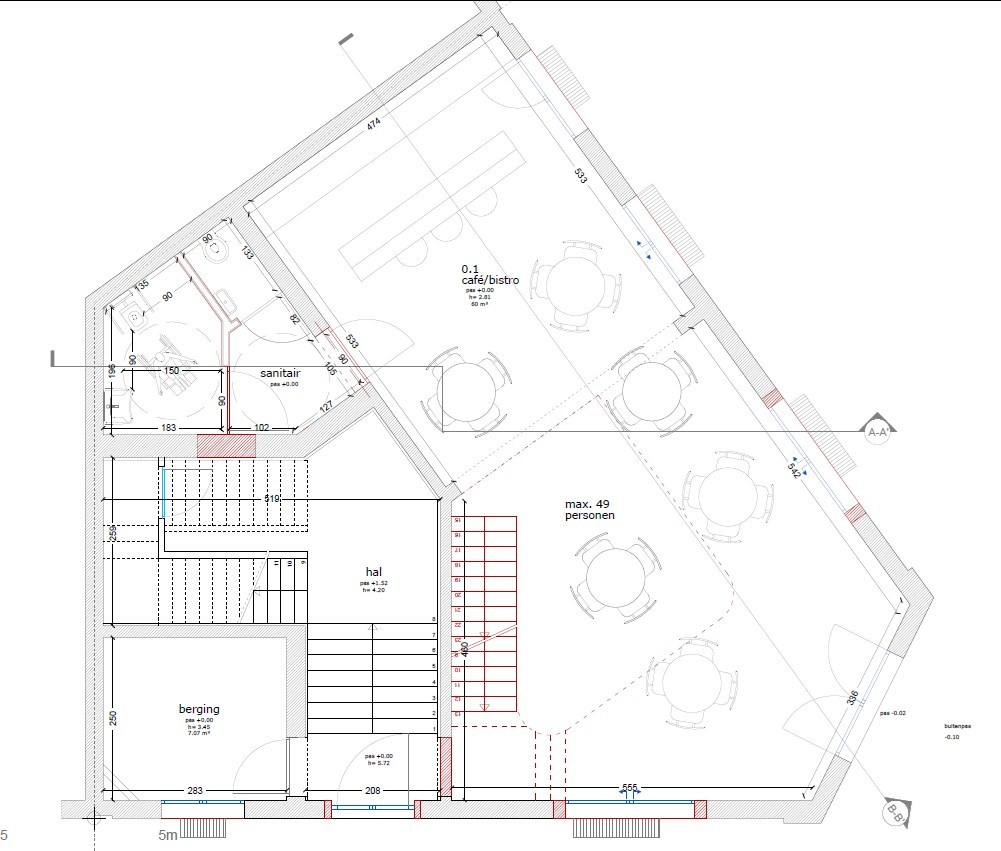
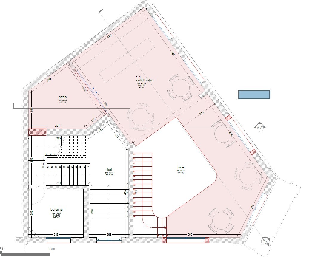
Op een strategische hoeklocatie, met uitstekende zichtbaarheid dankzij de splitsing op de Amerikalei, bieden wij dit casco handelsgelijkvloers aan. Het pand combineert een gelijkvloers met een functionele mezzanine, waardoor het geschikt is voor een winkel, kantoor, showroom of horecaconcept. Verder is er via de mezzanine toegang tot de patio.
Dankzij de hoekligging geniet u van een optimale lichtinval en maximale zichtbaarheid, terwijl de mogelijkheid om een groot terras te plaatsen een extra commerciële troef vormen. De centrale ligging verzekert bovendien een vlotte bereikbaarheid voor zowel voetgangers als verkeer.
Troeven:
- Strategische hoekligging met maximale zichtbaarheid
- In te richten volgens eigen concept
- Gelijkvloers + mezzanine voor multifunctioneel gebruik
- Uitstekend terraspotentieel
- Centrale ligging
Een unieke kans voor ondernemers die willen investeren in een toplocatie met veelzijdige commerciële mogelijkheden.
EPC: E
Van zodra de renovatiewerken zijn afgerond, zal de EPC-score verbeteren.
Dankzij de hoekligging geniet u van een optimale lichtinval en maximale zichtbaarheid, terwijl de mogelijkheid om een groot terras te plaatsen een extra commerciële troef vormen. De centrale ligging verzekert bovendien een vlotte bereikbaarheid voor zowel voetgangers als verkeer.
Troeven:
- Strategische hoekligging met maximale zichtbaarheid
- In te richten volgens eigen concept
- Gelijkvloers + mezzanine voor multifunctioneel gebruik
- Uitstekend terraspotentieel
- Centrale ligging
Een unieke kans voor ondernemers die willen investeren in een toplocatie met veelzijdige commerciële mogelijkheden.
EPC: E
Van zodra de renovatiewerken zijn afgerond, zal de EPC-score verbeteren.
Financieel
Beschikbaarheid
Bij oplevering
Gebouw
Type pand
Kantoor
Subtype
Kantoor
Bebouwde oppervlakte
140 m²
Energie
EPC-score (kWh/(m² jaar))
468
EPC-label
E
















