Omschrijving
KMO - unit van 312 m².
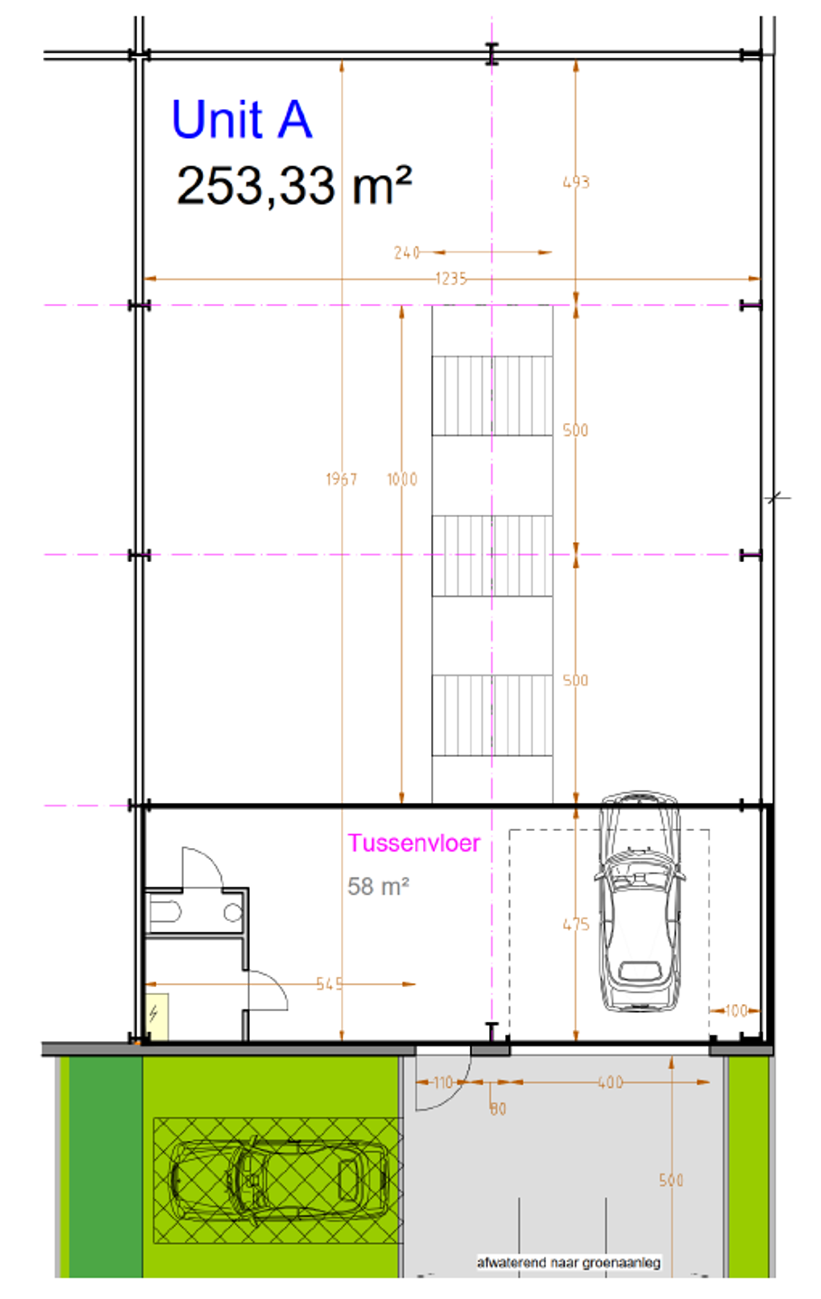
KMO - unit van 253 m² gelegen in de Middelmolenlaan 50 bestaat uit een opslagplaats van 253 m² en een mezzanine van 59 m².
De unit ligt in een modern bedrijvenpark in Deurne, vlak bij de Bisschoppenhoflaan en het Albertkanaal.
De site biedt een uitstekende bereikbaarheid dankzij de nabijheid van de Antwerpse Ring, de E313 en de E34.
Er zijn meerdere bushaltes op wandelafstand aanwezig.
Gebouw
Type pand
Commercieel
Subtype
KMO-terrein
Bewoonbare oppervlakte
312 m²















