Omschrijving
Kantoorruimte 745.5M² TE OVERIJSE
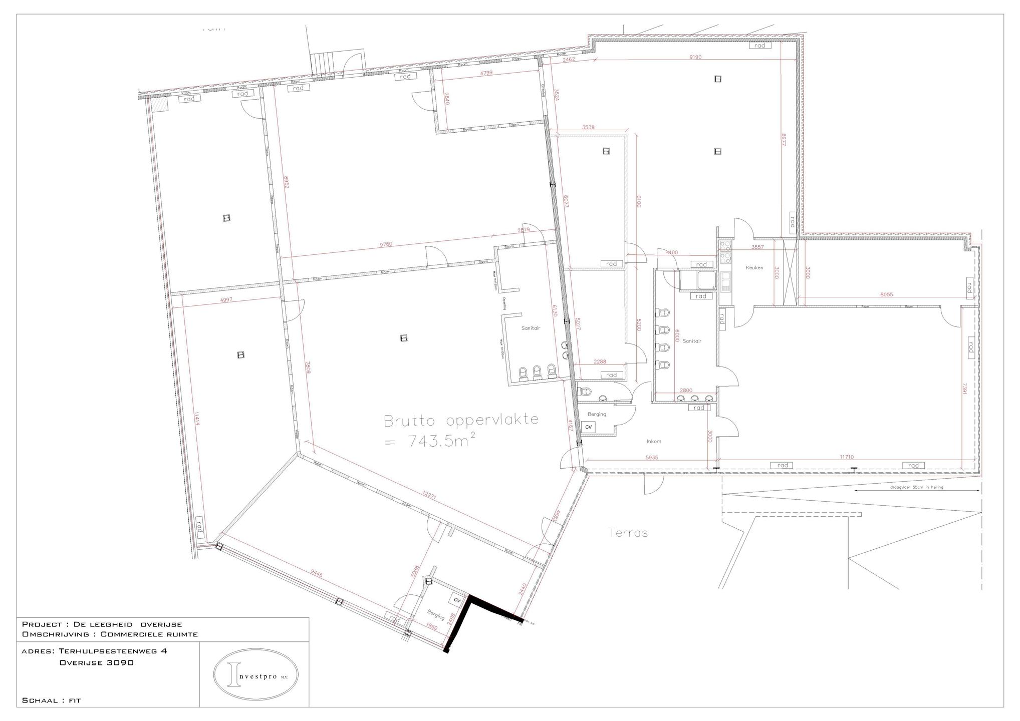
Zeer mooie Kantoorruimte van 745.5 m² voorheen als kinderdagverblijf. Verschillende grote ruimtes met veel lichtinval door grote raampartijen aan de voorzijde en ramen aan de achterzijde, ideaal als kantoorruimte gelegen aan een zeer rustige zijweg aan de IJse en vlak bij het belangrijkste kruispunt van Overijse. Zeer goede verbinding, in de buurt van de snelweg en op wandelafstand van het centrum en station. Er is een buitenruimte voorzien van 51m² aan de voorzijde en een tuintje grenzend aan een mooie binnentuin. In de ondergrondse keldergarage is er 1 autostaanplaats. De ruimte is onmiddellijk beschikbaar. Eventuele aanpassing aan indeling zijn bespreekbaar.
Gemeenschappelijke kosten 650,00 euro/maand.
Gemeenschappelijke kosten 650,00 euro/maand.
Financieel
Verkoop onder btw-stelsel
Ja
Gebouw
Type pand
Commercieel
Subtype
Kantoor
Bewoonbare oppervlakte
743 m²
Terrein
Oriëntatie tuin
Zuidwest
Ligging
Openbaar vervoer nabij
Ja
Afstand tot openbaar vervoer
50 m
Autosnelweg nabij
Ja
Indeling
Toilet
Ja
Oppervlakte terras
52 m²
Oriëntatie terras
Noordoost
Comfort
Aansluiting gas
Ja
Aansluiting riolering
Ja
Aansluiting water
Ja
Energie
Dubbele beglazing
Ja
Verwarmingstype
Individueel
Type verwarming
Gas
Ruimtelijke ordening
Bestemming gebouw
Burelen
Dagvaarding
Nee
Vonnissen
Nee














