Omschrijving
BEDRIJFSGEBOUW VAN 120M²
Bedrijfsunit gelegen op de Walenstraat , vlakbij Hasselt en de op- en afritten van zowel E313 (Antwerpen - Luik) als E314 (Brussel - Aken - Köln).
KENMERKEN UNIT:
- oppervlakte: 120m²
- vrije hoogte: 5m
- betonvloer
- 1 elektrische sectionaalpoort
- voldoende parkeerplaatsen
Igb – Vg – Gmo – Gvkr – Gvv
Info: 011/39.90.50 of info@jansenrealestate.be
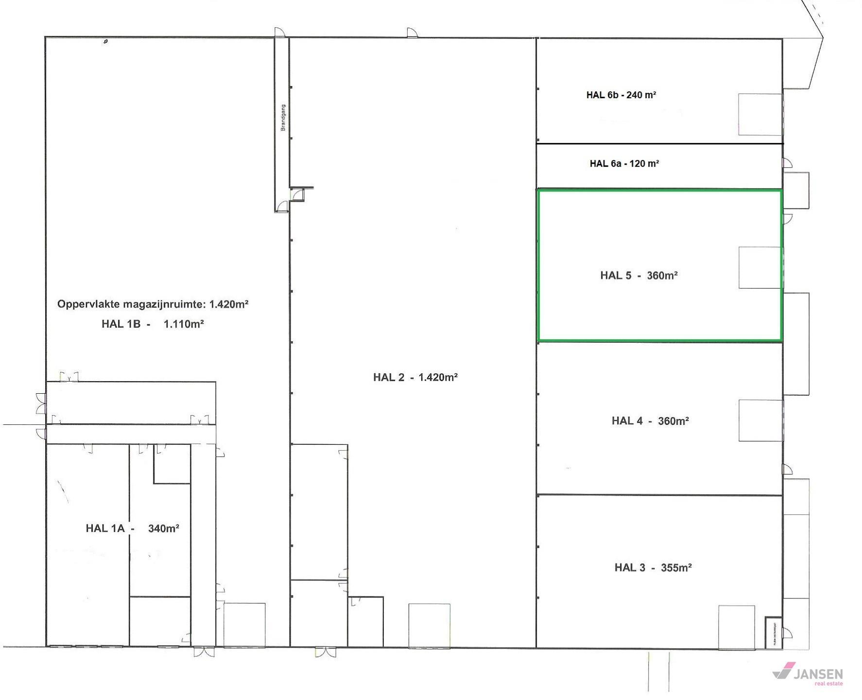
Deze bedrijfshal maakt deel uit van een complex van 6 bedrijfsruimtes, gelegen aan de achterzijde van de Corda Campus.
KENMERKEN UNIT:
- oppervlakte: 120m²
- vrije hoogte: 5m
- betonvloer
- 1 elektrische sectionaalpoort
- voldoende parkeerplaatsen
Igb – Vg – Gmo – Gvkr – Gvv
Info: 011/39.90.50 of info@jansenrealestate.be
Gebouw
Type pand
Commercieel
Subtype
Industrieel gebouw
Bewoonbare oppervlakte
120 m²
Ruimtelijke ordening
Bouwvergunning
Ja














