Commercieel te huur in Zutendaal
€ 29.167
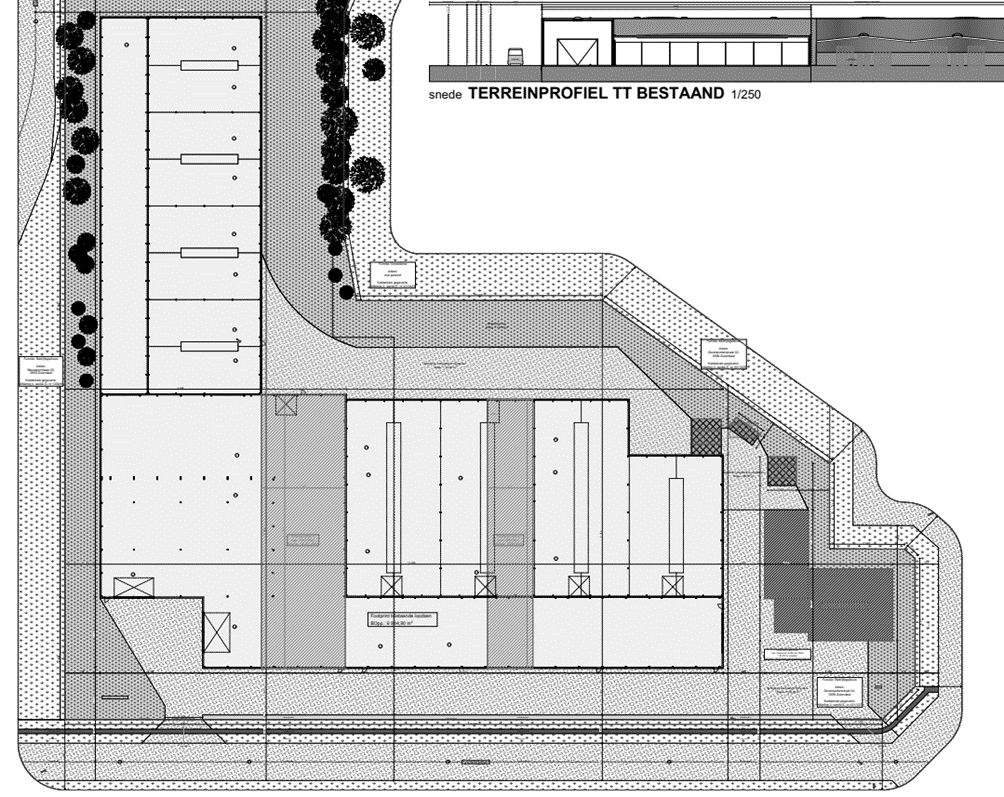
Omschrijving
KMO-unit van 10.000 m² te huur in Zutendaal
KMO-unit van 10.000 m² te huur, binnen een site met een totale beschikbare oppervlakte van 10.000 m², opsplitsbaar vanaf 300 m². De units kunnen volledig op maat ingericht worden!
Gelegen in Zutendaal, centraal in Limburg, biedt de locatie directe aansluiting naar Genk, Bilzen, Diepenbeek en de E314. Een rustige, groene omgeving wordt hier perfect gecombineerd met een uitzonderlijke bereikbaarheid voor zowel personeel als transport.”
Via de sectionaalpoort (4,2 m hoog x 4 m breed) én een aparte ingang is de unit vlot toegankelijk. De industriële betonvloer biedt een hoge draagkracht en is ideaal voor diverse activiteiten. Daarnaast bestaat de mogelijkheid om een comfortabele kantoorruimte te creëren, volledig naar eigen wens.
De site beschikt over een ruime manoeuvreerruimte en voldoende parking, volledig toegankelijk voor vrachtverkeer, uitgerust met camerabewaking en nachtverlichting.
Uitgerust met 220V en 380V krachtstroom, internetvoorzieningen aanwezig, sanitair, centrale verwarming aan te sluiten. Het afgesloten terrein biedt veiligheid en een droge, beschermde opslagruimte. De units zijn bovendien kwalitatief geïsoleerd met sandwichpanelen.
Contacteer PANORAMA B2B voor bijkomende inlichtingen, plannen of een vrijblijvend plaatsbezoek 011 220 500.
Gelegen in Zutendaal, centraal in Limburg, biedt de locatie directe aansluiting naar Genk, Bilzen, Diepenbeek en de E314. Een rustige, groene omgeving wordt hier perfect gecombineerd met een uitzonderlijke bereikbaarheid voor zowel personeel als transport.”
Via de sectionaalpoort (4,2 m hoog x 4 m breed) én een aparte ingang is de unit vlot toegankelijk. De industriële betonvloer biedt een hoge draagkracht en is ideaal voor diverse activiteiten. Daarnaast bestaat de mogelijkheid om een comfortabele kantoorruimte te creëren, volledig naar eigen wens.
De site beschikt over een ruime manoeuvreerruimte en voldoende parking, volledig toegankelijk voor vrachtverkeer, uitgerust met camerabewaking en nachtverlichting.
Uitgerust met 220V en 380V krachtstroom, internetvoorzieningen aanwezig, sanitair, centrale verwarming aan te sluiten. Het afgesloten terrein biedt veiligheid en een droge, beschermde opslagruimte. De units zijn bovendien kwalitatief geïsoleerd met sandwichpanelen.
Contacteer PANORAMA B2B voor bijkomende inlichtingen, plannen of een vrijblijvend plaatsbezoek 011 220 500.
Gebouw
Type pand
Commercieel
Subtype
Industrieel gebouw
Bewoonbare oppervlakte
10.000 m²
Terrein
Perceeloppervlakte
10.000 m²
Meest recente bestemming terrein
Industriegebied
Indeling
Aantal slaapkamers
0
Aantal badkamers
0
Aantal toiletten
0
Comfort
Lift
Nee
Alarm
Ja
Aansluiting elektriciteit
Ja
Energie
E-peil
0
Ruimtelijke ordening
G(ebouw)-score
A (geen overstroming gemodelleerd)
P(erceel)-score
A (geen overstroming gemodelleerd)














