Omschrijving
KMO-unit van 220 m² gelegen te Avelgem, deelgemeente Kerkhove.
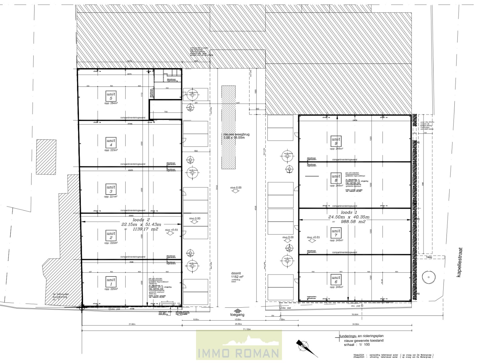
In Avelgem, deelgemeente Kerkhove bevindt deze gloednieuwe KMO-unit van 220 m² zich. De loods heeft een breedte van 10 meter en diepte van 22 meter. Voorzien van een sectionale poort, elektriciteit en water aanwezig.
Vooraan de KMO-unit wordt er een luifel voorzien en er zijn 2 parkeerplaatsen voor de unit inbegrepen.
Maandelijkse provisie voor verbruik elektriciteit en water.
Verhuur onder btw-stelsel
Vrij vanaf 01/04/2026.
Bent u opzoek naar meer ruimte? Er zijn meerdere units beschikbaar op deze locatie.
Interesse? Contacteer Immo Roman: 0485 53 17 16
Vooraan de KMO-unit wordt er een luifel voorzien en er zijn 2 parkeerplaatsen voor de unit inbegrepen.
Maandelijkse provisie voor verbruik elektriciteit en water.
Verhuur onder btw-stelsel
Vrij vanaf 01/04/2026.
Bent u opzoek naar meer ruimte? Er zijn meerdere units beschikbaar op deze locatie.
Interesse? Contacteer Immo Roman: 0485 53 17 16
Financieel
Beschikbaar vanaf
01-04-2026
Gebouw
Type pand
Commercieel
Subtype
Industrieel gebouw
Bewoonbare oppervlakte
220 m²
Terrein
Perceeloppervlakte
220 m²
Meest recente bestemming terrein
Industriegebied
Indeling
Aantal slaapkamers
0
Aantal badkamers
0
Aantal toiletten
0
Comfort
Lift
Nee
Aansluiting elektriciteit
Ja
Aansluiting riolering
Ja
Energie
E-peil
0
Type beglazing
Dubbel glas
Keuringsattest elektriciteit
Ja, niet conform
Ruimtelijke ordening
Verkavelingsvergunning
Nee
Voorkooprecht
Ja
G(ebouw)-score
A (geen overstroming gemodelleerd)















