Appartement te huur in Beveren-Kruibeke-Zwijndrecht met 2 slaapkamers
€ 1.195
Omschrijving
Nieuwbouwappartement op de derde verdieping met terras en twee slaapkamers
Ontdek dit moderne appartement op de derde verdieping, waar comfort, licht en energiezuinig wonen perfect samenkomen.
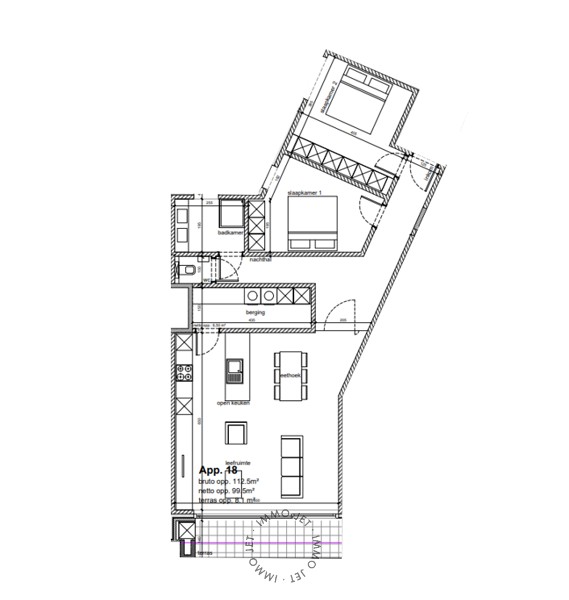
Indeling: inkom, 2 comfortabele slaapkamers, badkamer met inloopdouche, lavabomeubel en handdoekradiator, apart toilet, ruime woonkamer met open keuken en berging.
Buiten: privatief terras.
Parkeren & berging: ondergrondse autostaanplaats en privatieve berging met elektriciteit inbegrepen in de huurprijs.
Afwerking: volledig geschilderd opgeleverd, voorzien van armaturen, gordijnrails en lichte deuren.
Duurzaam & energiezuinig: verwarming via geothermie en zonnepanelen per appartement, E-peil = 20.
Algemene onkosten: 60 euro / maand
Benieuwd naar dit project? Neem contact met ons op voor meer informatie of een rondleiding:
03/775.44.10
info@immo-jet.be
Indeling: inkom, 2 comfortabele slaapkamers, badkamer met inloopdouche, lavabomeubel en handdoekradiator, apart toilet, ruime woonkamer met open keuken en berging.
Buiten: privatief terras.
Parkeren & berging: ondergrondse autostaanplaats en privatieve berging met elektriciteit inbegrepen in de huurprijs.
Afwerking: volledig geschilderd opgeleverd, voorzien van armaturen, gordijnrails en lichte deuren.
Duurzaam & energiezuinig: verwarming via geothermie en zonnepanelen per appartement, E-peil = 20.
Algemene onkosten: 60 euro / maand
Benieuwd naar dit project? Neem contact met ons op voor meer informatie of een rondleiding:
03/775.44.10
info@immo-jet.be
Gebouw
Type pand
Appartement
Subtype
Flat
Bewoonbare oppervlakte
99 m²
Terrein
Perceeloppervlakte
112 m²
Ligging
Openbaar vervoer nabij
Ja
School nabij
Ja
Winkels nabij
Ja
Indeling
Aantal slaapkamers
2
Aantal badkamers
1
Keuken
Ja
Comfort
Lift
Ja
Aansluiting op netwerk
Ja
Energie
Zonnepanelen
Ja
Type beglazing
Dubbel glas













