Huis te koop in Pajottegem met 3 slaapkamers
€ 430.000
Is dit haalbaar voor jou?Omschrijving
Energiezuinige nieuwbouw mogelijkheid tot 2% registratie
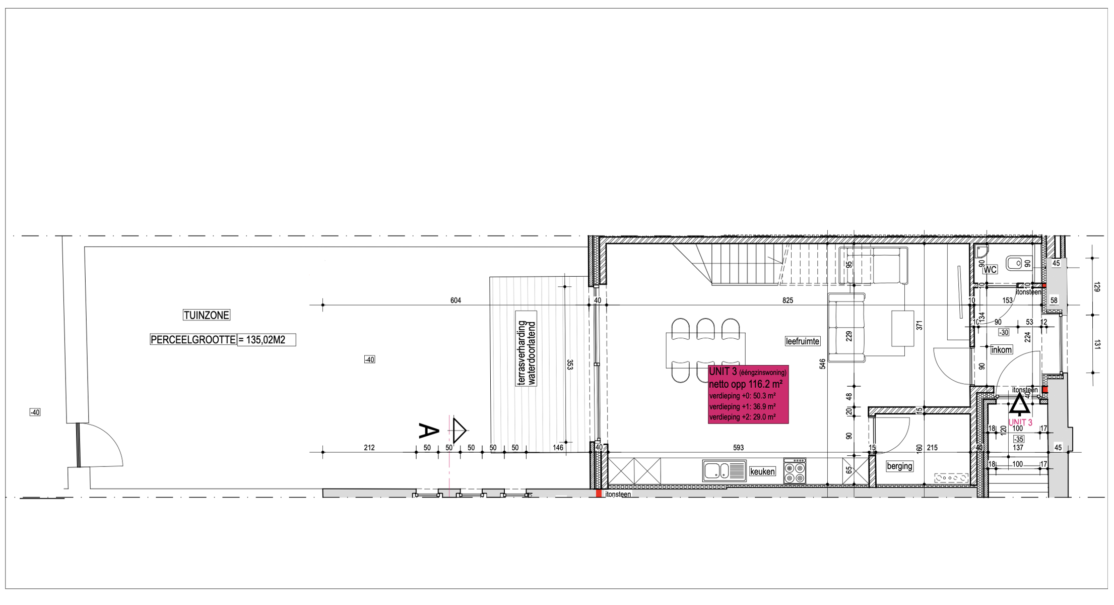
In het hart van het rustige en landelijke Sint-Pieters-Kapelle bevindt zich deze charmante, 2-gevelwoning, ondergebracht in een volledig gerenoveerd schoolgebouw. Deze bijzondere woning combineert het karakter van het verleden met het comfort van nieuwbouw en biedt een oase van rust, ideaal voor gezinnen of wie op zoek is naar ruimte en stilte.
Bij het betreden van de woning komt u binnen in een lichtrijke inkomhal met gastentoilet. De open leefruimte vormt het hart van het huis en baadt in het licht dankzij de grote raampartijen die uitgeven op de privatieve tuin. De stijlvolle, volledig uitgeruste keuken vormt een harmonieus geheel met de leefruimte en is perfect voor gezellige avonden of het ontvangen van gasten.
Op de eerste verdieping bevinden zich twee volwaardige slaapkamers en een moderne badkamer met hoogwaardige afwerking. De ruime zolderverdieping biedt tal van mogelijkheden: perfect voor een master suite, thuiskantoor of twee extra slaapkamers.
Deze energiezuinige woning beschikt over een gunstig EPC, zonnepanelen en vloerverwarming, wat zorgt voor een aangenaam binnenklimaat én lage energiekosten. Daarnaast zijn er privéstaanplaatsen voorzien, evenals een gemeenschappelijke fietsenberging.
Troeven van deze woning:
Volledig gerenoveerd in een uniek schoolgebouw
Ultieme rustige ligging in een groene omgeving
Ruime woning met tot 4 slaapkamers
Nieuwbouwcomfort met vloerverwarming en zonnepanelen
Mogelijkheid tot aankoop onder het stelsel van registratierechten!!
Eigen tuin, parkeerplaatsen en fietsenberging
Een zeldzame kans voor wie op zoek is naar ruimte, charme én energiezuinig wonen in een uitzonderlijk kader. Contacteer ons voor een bezoek en ontdek zelf dit unieke woonproject!
Gebouw
Type pand
Huis
Subtype
Huis
Bewoonbare oppervlakte
116 m²
Terrein
Perceeloppervlakte
135 m²
Meest recente bestemming terrein
Woongebied met landelijk karakter
Tuin
Ja
Ligging
Omgeving / buurt
Centraal; Rustig
Indeling
Aantal slaapkamers
3
Oppervlakte slaapkamers
10 m²; 11 m²; 35 m²
Aantal badkamers
1
Comfort
Aansluiting gas
Ja
Aansluiting riolering
Ja
Aansluiting water
Ja
Energie
Zonnepanelen
Ja
Type beglazing
Dubbel glas
Keuringsattest elektriciteit
Ja, conform
Ruimtelijke ordening
Bestemming gebouw
Privé - woning
Dagvaarding
Nee
Vonnissen
Nee
Locatie
Driekapellenstraat 1, 1541 Pajottegem430.000 EUR
Locatie
Driekapellenstraat 1
1541 Pajottegem













