Omschrijving
KMO UNITS DROGENBOS
Locatie: Strategisch gelegen aan de zuidrand van Brussel, naast afrit 18 (Ruisbroek) van de E19.
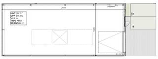
Gebouwen: Twee moderne bedrijfsverzamelgebouwen met in totaal 38 KMO-units (150 m² tot 395 m²).
Bereikbaarheid: Nabijheid van belangrijke snelwegen zoals de E40, E19 en A12 voor uitstekende verbindingen.
Flexibiliteit: Ruimte voor diverse zakelijke behoeften, van productie tot kantoren.
Ideaal voor bedrijven die op zoek zijn naar een strategische en goed bereikbare vestigingsplaats.
Financieel
Onder constructie
Ja
Gebouw
Type pand
Commercieel
Subtype
KMO-terrein
Bewoonbare oppervlakte
245 m²













