Commercieel te koop in Antwerpen met 4 slaapkamers
€ 750.000
Omschrijving
Handel + woonst toplocatie nabij Troonplaats op het Zuid
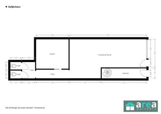
Een eigen zaak + woonst? Of investeren in een prachtig opbrengstpand? Ontdek dan Montignystraat 22: de Antwerpse bakker Rudy gaat met pensioen en zoekt een koper voor zijn centraal gelegen pand op het Zuid, tussen Troonplaats en Museumbuurt. Het gelijkvloers bestaat uit een winkelruimte en groot atelier achteraan met bijkomende 'zolder'. De bovenverdiepingen zijn ingericht als moderne gezinswoning met ruime leefruimte nieuwe keuken en zonnig dakterras, verder ontdekken we een nieuwe badkamer en 4 slaapkamers. Extra troeven: dakisolatie, zonnepanelen, droge kelder...
Interesse? Contacteer ons voor een bezoek!
Gebouw
Subtype
Assistentiewoning
Bewoonbare oppervlakte
362 m²
Staat pand
Gerenoveerd
Terrein
Perceeloppervlakte
180 m²
Meest recente bestemming terrein
Woongebied
Ligging
Omgeving / buurt
Handelsligging; Residentiële wijk; Nabij station; Nabij station
Indeling
Aantal slaapkamers
4
Aantal badkamers
1
Keuken
Ja
Energie
Keuringsattest elektriciteit
Ja, conform
Verwarmingsbron
Gas
Details warm water
Doorstroomsysteem op CV
Ruimtelijke ordening
G(ebouw)-score
C (kleine overstromingskans onder huidig klimaat)
P(erceel)-score
C (kleine overstromingskans onder huidig klimaat)
Overstromingsgevoelig gebied
Niet gelegen in een overstromingsgevoelig gebied














