Appartement te koop in Deurne met 2 slaapkamers
Omschrijving
DUPLEX Appartement met 2 slpk
Dit ruime duplexappartement is gelegen in het gegeerde Deurne-Zuid, meer bepaald in de wijk Muggenberg-Arena.
In de directe omgeving zijn er tal van winkels, scholen, bakkers, apothekers en het AZ Monica ziekenhuis. U kan tevens genieten van verschillende groene zones (Rivierenhof, Boekenbergpark, Te Boelaerpark en Fort 2). Omwille van de centrale ligging is er een makkelijke verbinding naar verschillende invalswegen (Ring en E313). Met het openbaar vervoer ben je zo in het centrum van Antwerpen.
Grootste troeven:
- Conforme elektrische keuring!
- Gunstig EPC (B)
- 2 volwaardige slaapkamers
- Instapklaar
- Grote kelderberging
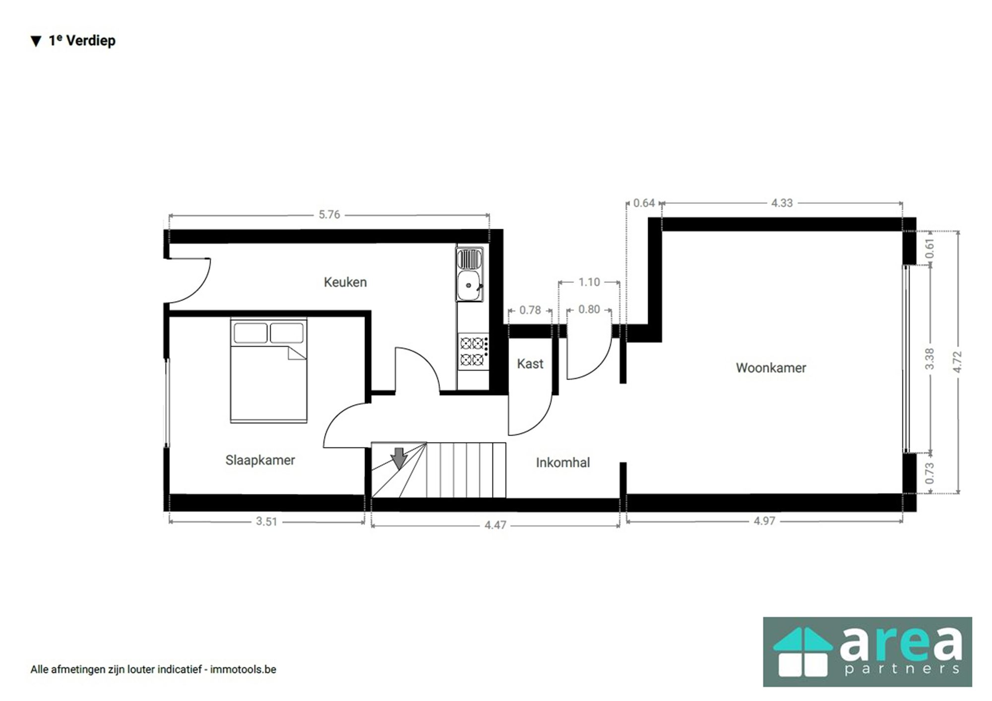
Indeling:
-1: Kelderberging
V1: Ruime inkomhal (9m²) met toegang tot de living aan voorzijde (24m²). Aan achterzijde bevindt zich de deels geïnstalleerde keuken (12m²) en de eerste slaapkamer (14m²).
V2: Tweede slaapkamer (21m²), alsook de badkamer (5m²) met douche, toilet en lavabo.
Voor meer informatie kan u terecht bij Area Partners. INFO@area.be of 03/ 284.60.60
Financieel
Gebouw
Terrein
Indeling
Comfort
Energie
Ruimtelijke ordening
Locatie
Herentalsebaan 282 101, 2100 Deurne199.000 EUR
Locatie
Herentalsebaan 282 101
2100 Deurne














