Commercieel te koop in Heist-Op-Den-Berg
€ 895.000
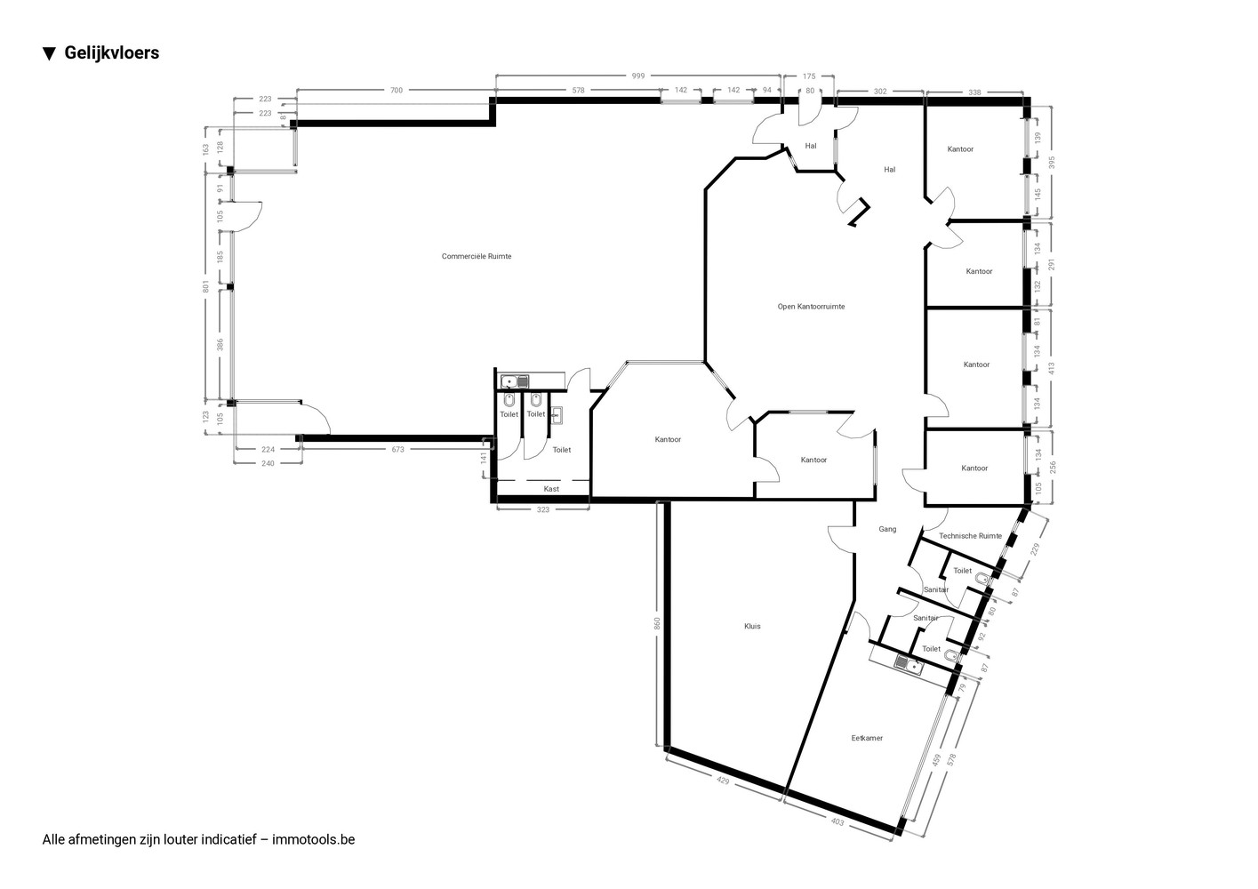
Omschrijving
HANDELSGELIJKVLOERS MET PARKING
Deze handelsgelijkvloers is gelegen op een absolute A-locatie!
Met een mooie oppervlakte van maar liefst +/- 475 m² en 12 privéparkings, zijn hier heel wat mogelijkheden.
Het pand is voorzien van zowel een ingang voor- als achteraan. Hierdoor is een opsplitsing eenvoudig te realiseren.
Beide delen beschikken zowel over een kitchenette als over sanitair.
Oppervlaktes:
Commerciële ruimte: 136,95 m²
Commerciële ruimte: 82,5 m²
Toilet 1: 10,98 m²
Kantoorruimte: 13,35 m²
Kantoorruimte: 9,84 m²
Kantoorruimte: 13,96 m²
Kantoorruimte: 8,65 m²
Technische berging: 5 m²
Toilet 2: 8,75 m²
Toilet 3: 8,75 m²
Kantoorruimte: 23,37 m²
Kantoorruimte: 44,72 m²
Kantoorruimte: 19,2 m²
Kantoorruimte: 11,76 m²
Inkomhal: 11 m²
Inkomhal: 18 m²
Overige info:
- voorgevel: +/- 8,3 meter;
- Energielabel: D (EPC referentie: No. 20230731-0002955137-KNR-1);
- Airco.
Meer info of een bezoek? Bel 0473/33 33 33 | philip@wijns.be
Met een mooie oppervlakte van maar liefst +/- 475 m² en 12 privéparkings, zijn hier heel wat mogelijkheden.
Het pand is voorzien van zowel een ingang voor- als achteraan. Hierdoor is een opsplitsing eenvoudig te realiseren.
Beide delen beschikken zowel over een kitchenette als over sanitair.
Oppervlaktes:
Commerciële ruimte: 136,95 m²
Commerciële ruimte: 82,5 m²
Toilet 1: 10,98 m²
Kantoorruimte: 13,35 m²
Kantoorruimte: 9,84 m²
Kantoorruimte: 13,96 m²
Kantoorruimte: 8,65 m²
Technische berging: 5 m²
Toilet 2: 8,75 m²
Toilet 3: 8,75 m²
Kantoorruimte: 23,37 m²
Kantoorruimte: 44,72 m²
Kantoorruimte: 19,2 m²
Kantoorruimte: 11,76 m²
Inkomhal: 11 m²
Inkomhal: 18 m²
Overige info:
- voorgevel: +/- 8,3 meter;
- Energielabel: D (EPC referentie: No. 20230731-0002955137-KNR-1);
- Airco.
Meer info of een bezoek? Bel 0473/33 33 33 | philip@wijns.be
Gebouw
Type pand
Commercieel
Subtype
Commercieel
Nieuw gebouw
Nee
Terrein
Meest recente bestemming terrein
Woongebied
Indeling
Aantal slaapkamers
0
Aantal badkamers
0
Aantal toiletten
0
Comfort
Lift
Nee
Energie
EPC-label
D
Unieke code EPC
20230731-0002955137-KNR-1
E-peil
0
Ruimtelijke ordening
Verkavelingsvergunning
Nee
Voorkooprecht
Nee
G(ebouw)-score
A (geen overstroming gemodelleerd)















