Omschrijving
Garage met werkplaats of opslagplaats.
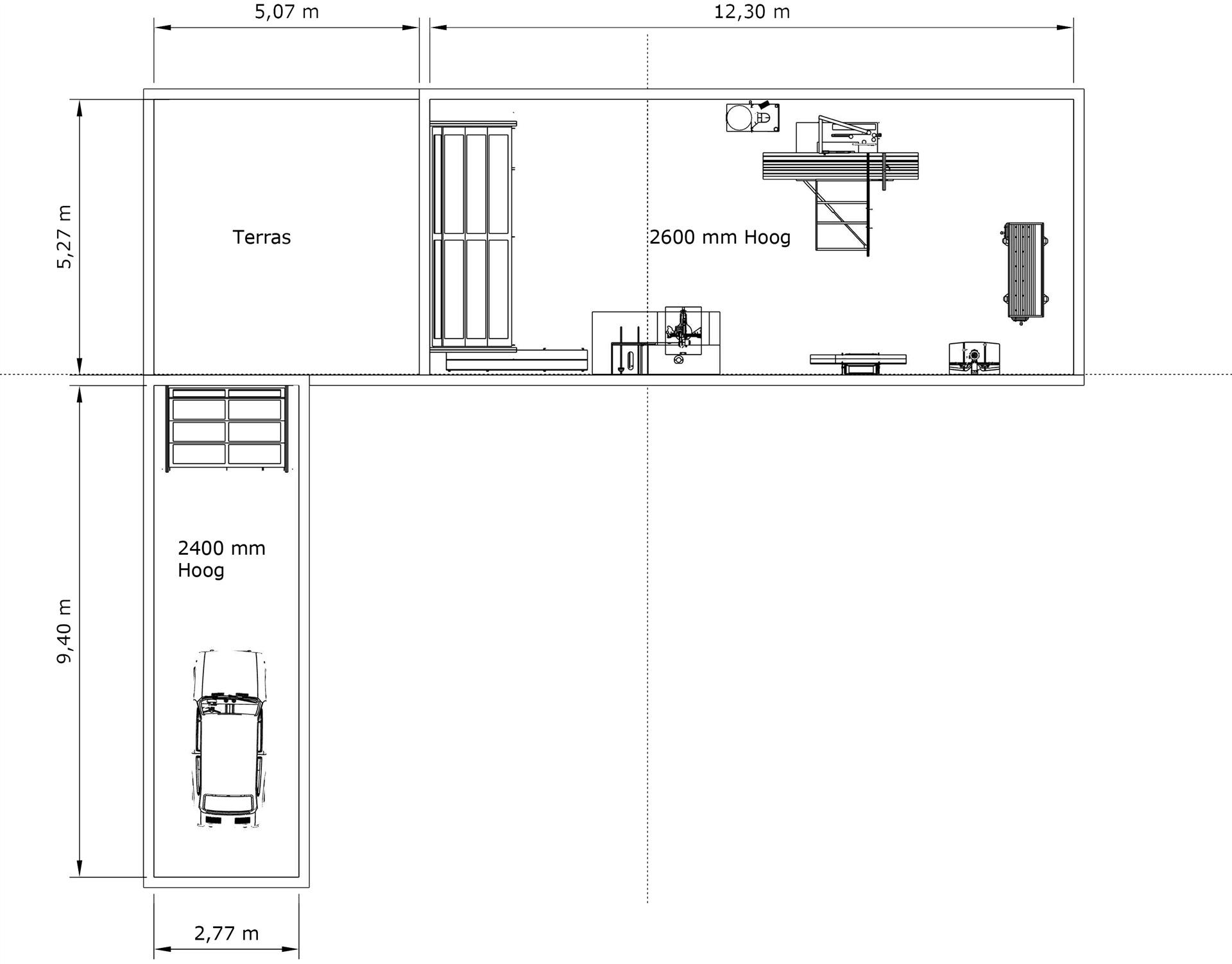
Garage met werkplaats of opslagplaats.Goed gelegen is deze garage welke plaats biedt voor twee wagens na elkaar, een zeer goede investering.Aansluitend is er een leuke terras, vrij te gebruiken (privaat) die op zijn beurt toegang biedt tot een werkplaats van ongeveer 68m², overdekt en voorzien van een aparte toegangspoort.Elektriciteit is uiteraard apart. Dit geheel is te gebruiken als opslagplaats of als kleine werkplaats voor iemand die extra ruimte zoekt voor een kleine prijs.Aarzel niet ons te contacteren voor verdere vragen en/of een bezichtiging ter plaatse!Wij verzorgen ook de schatting van uw woning! Bel voor meer info.Contacteer Nele voor een bezoek ter plaatse:0494 03 02 86nele@correctvastgoed.be
Financieel
Kadastrale info
1517/00W002
Gebouw
Type pand
Commercieel
Bewoonbare oppervlakte
100 m²
Type dak
Plat dak
Terrein
Meest recente bestemming terrein
Woongebied
Indeling
Terras
Ja
Energie
Keuringsattest elektriciteit
Nee
Ruimtelijke ordening
Kadastraal plan
Ja
Verkavelingsvergunning
In aanvraag
Voorkooprecht
Nee












