Omschrijving
Kortrijkstaat - Leersnijderspark
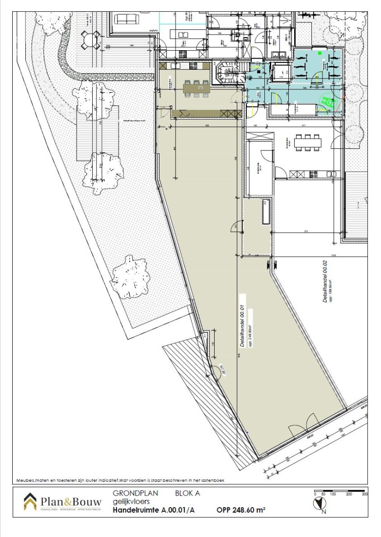
Hedendaags project met unieke handelsruimtes – Leersnijderspark, Tielt
Ontdek Residentie Ter Linde, een spraakmakend onderdeel van het nieuwe Leersnijderspark-project op de hoek van de Kortrijkstraat te Tielt. Dit project biedt een ruime handelsruimte met een oppervlakte van 248,60 m², ideaal voor ambitieuze ondernemers.
Gelegen in het hart van Tielt, geniet u van een centrale ligging met alles op wandelafstand: winkels, restaurants en scholen. Deze moderne ruimtes, deel van twee exclusieve residenties, bieden eindeloze mogelijkheden voor personalisatie en afwerking. Perfect voor wie een dynamische en toegankelijke plek zoekt om te investeren of te starten.
Neem vandaag nog contact op voor meer info of een bezoek ter plaatse!
Ontdek Residentie Ter Linde, een spraakmakend onderdeel van het nieuwe Leersnijderspark-project op de hoek van de Kortrijkstraat te Tielt. Dit project biedt een ruime handelsruimte met een oppervlakte van 248,60 m², ideaal voor ambitieuze ondernemers.
Gelegen in het hart van Tielt, geniet u van een centrale ligging met alles op wandelafstand: winkels, restaurants en scholen. Deze moderne ruimtes, deel van twee exclusieve residenties, bieden eindeloze mogelijkheden voor personalisatie en afwerking. Perfect voor wie een dynamische en toegankelijke plek zoekt om te investeren of te starten.
Neem vandaag nog contact op voor meer info of een bezoek ter plaatse!
Gebouw
Type pand
Commercieel
Subtype
Commercieel
Nieuw gebouw
Nee
Indeling
Aantal slaapkamers
0
Aantal badkamers
0
Aantal toiletten
0
Comfort
Lift
Nee
Energie
E-peil
0
Keuringsattest elektriciteit
Ja, niet conform














