Scoop: Grond te koop in Oostrozebeke
€ 460.000
Is dit haalbaar voor jou?Omschrijving
Bouwgrond te koop!
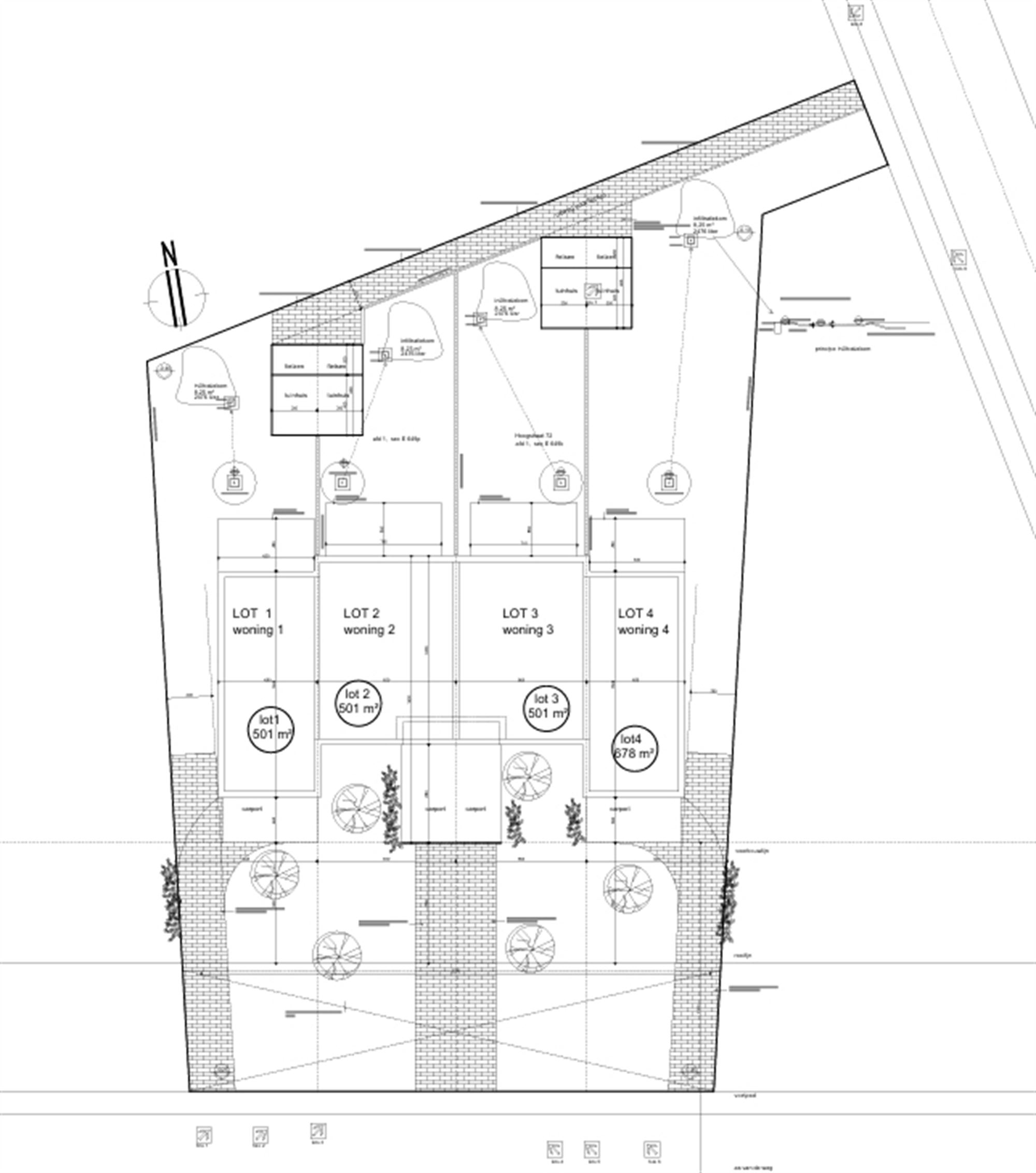
Bouwgrond te koop! Reeds een bouwvergunning toegediend voor twee halfopen en twee gesloten woningen. Het terrein bevindt zich op een stuk grond van 2.197m². Contacteer ons nu om een afspraak in te plannen voor alle nodige informatie.
Financieel
Kadastrale info
0649/00K000
Beschikbaarheid
Vanaf akte
Gebouw
Type pand
Grond
Subtype
Grond
Terrein
Perceeloppervlakte
2.197 m²
Energie
Keuringsattest elektriciteit
Nee
Ruimtelijke ordening
Kadastraal plan
Ja
Dagvaarding
In aanvraag
Bouwvergunning
Ja
Locatie
Hoogstraat 72, 8780 Oostrozebeke460.000 EUR
Locatie
Hoogstraat 72
8780 Oostrozebeke









