Commercieel te koop in Assenede met 2 slaapkamers
Omschrijving
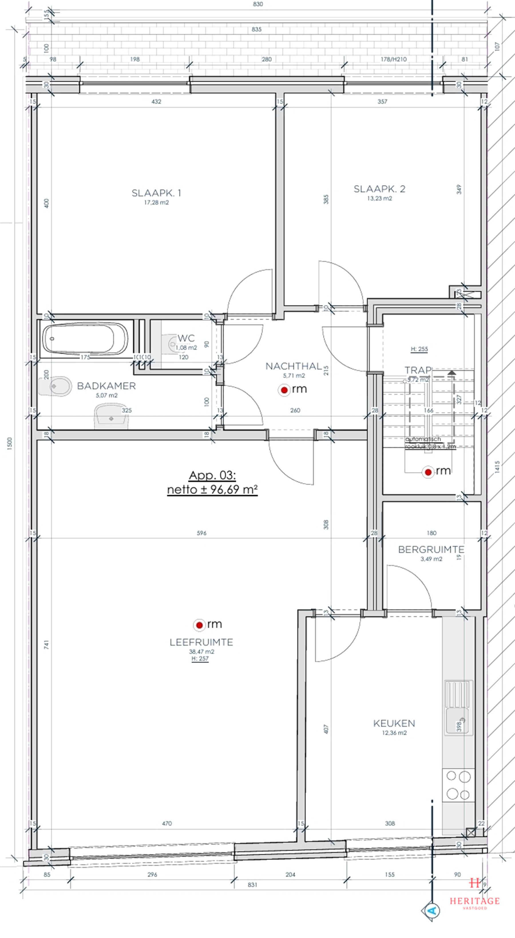
Appartementsblok in Assenede
Ontdek dit volledig gerenoveerde opbrengsteigendom in de Hoogstraat 39 te Assenede, bestaande uit drie gelijkaardige en instapklare appartementen. De woonoppervlaktes variëren tussen 107 m² en 114 m². Elk appartement combineert ruimte, comfort en een hedendaagse afwerking.
Dankzij de totaalrenovatie sinds 2025 en de conforme energieprestaties (EPC-label B) biedt dit gebouw niet alleen wooncomfort, maar ook een interessante investeringsopportuniteit. Bij volledige verhuur realiseert u een bruto rendement van circa 3,85%, wat het pand geschikt maakt als stabiele langetermijninvestering.
Via de inkomhal betreedt u telkens de lichtrijke living. De aparte, praktisch ingerichte keuken sluit mooi aan op het geheel. Verder beschikt elk appartement over twee volwaardige slaapkamers, een moderne badkamer, een apart toilet en een praktische bergruimte.
Het volledige gebouw werd gerenoveerd met aandacht voor kwaliteit, duurzaamheid en energiezuinigheid, ideaal voor eigen bewoning of investering.
Indeling per appartement:
- Inkomhal
- Living
- Keuken
- Bergruimte
- Nachthal
- Badkamer
- Apart toilet
- Twee slaapkamers
Troeven:
- Drie gelijkaardige appartementen
- Volledig gerenoveerd sinds 2025
- EPC-label B
Informatie:
- Prijs: €905.000
- Stedenbouwkundige informatie: in aanvraag
- De bewoonbare oppervlaktes betreffen de bruto oppervlakten zoals opgenomen in het EPC-attest
Contact:
Voor meer informatie of een bezoek contacteer Bart 0470 80 51 08 of bart@heritagevastgoed.be











