Scoop: Commercieel te huur in Malle
€ 1.500
Omschrijving
Gerenoveerde handelspand met zonnige tuin + parkeerplaatsen
In het hart van Malle bevindt zich dit volledig gerenoveerde handelspand.
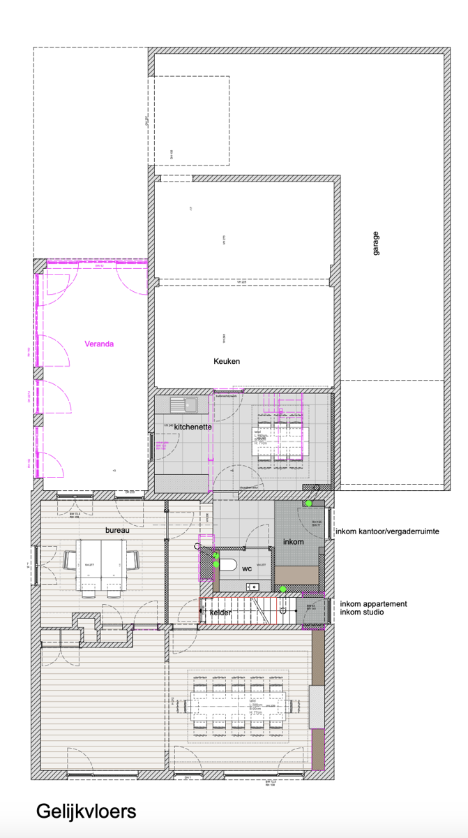
Indeling:
Gelijkvloers handelsruimte met aparte inkom:
Vergaderruimte
Afzonderlijk kantoor
Keuken
Polyvalente ruimte
Toilet
Grote zonnige tuin.
Zeer centrale ligging dichtbij hartje Malle.
Technische pluspunten:
Nieuw dak - 18 zonnepanelen - Geïsoleerde muren (met crepi) & vloeren - - Alle leidingen vernieuwd - Oplaadpunt voor elektrisch rijden
EPC: B - Asbestvrij - Centrale verwarming op gas - Elektriciteit conform AREI
Meer info of interesse in een bezoek? Contacteer ons via laila@immodor.be of bel +32 477 30 85 59
Gebouw
Type pand
Commercieel
Subtype
Kantoor
Bewoonbare oppervlakte
210 m²
Terrein
Perceeloppervlakte
988 m²
Oriëntatie tuin
West
Ligging
Openbaar vervoer nabij
Ja
Autosnelweg nabij
Ja
Indeling
Keuken
Ja
Aantal toiletten
1
Bureau
Ja
Comfort
Aansluiting gas
Ja
Aansluiting riolering
Ja
Aansluiting water
Ja
Energie
EPC-score (kWh/(m² jaar))
151
EPC-label
A
Dubbele beglazing
Ja
Ruimtelijke ordening
Vonnissen
Nee
Bouwvergunning
Ja
Voorkooprecht
Nee















