Commercieel te koop in Etterbeek
€ 395.000
Omschrijving
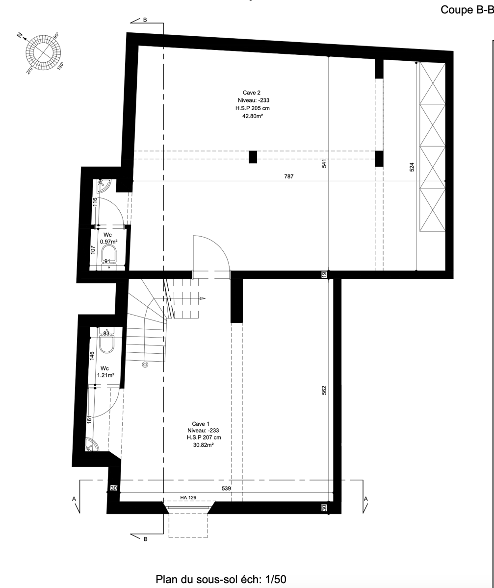
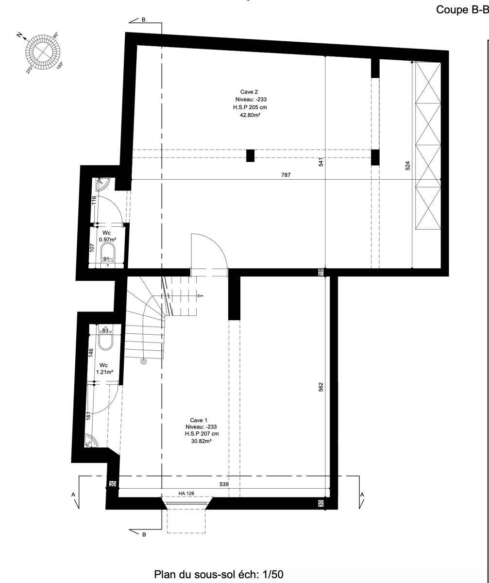
HOEKGELEGEN ENTITEIT MET COMMERCIEEL KARAKTER BESTAANDE UIT 5 RUIMTES MET 2 TOEGANGEN EN KELDER, . Deze voormalige dokterspraktijk met hoekligging en dus optimale visibiliteit vind je op de gelijkvloerse verdieping in de residentie "Les Hirondelles" in de charmante straten van Etterbeek, ook gekend als "Le Petit Paris". Imposante voorgevel van maar liefst 23m en totaal 8 ramen met dubbele beglazing en voordeur. Momenteel vergund als een dokterspraktijk MET 3 BRUIKBARE EN INGERICHTE CABINETTEN maar technisch geschikt voor heel wat vrije beroepen die nood hebben aan kantoorruimte en atelier (!bestemmingswijziging aan te raden). Pluspunt is de aanwezigheid van een eigen appartementje met zicht op een terras en aangrenzend een sanitaire cel en kitchenette. Ook bvb. bruikbaar als fitnessruimte of eetzaaltje. De toegang is apart mogelijk via de hoofdingang van het appartementsgebouw. De dokterspraktijk bereik je via een aparte deur in de Charles Degrouxstraat. Op de gelijkvloerse verdieping vind je 3 ingerichte dokterskabinetten, aparte wachtzaal met WC (4 toiletten in totaal aanwezig) en dan verder de ingerichte studio. De kelderverdieping (volledig onderkelderd) deed dienst als archiefruimte en praktijk. Deze ingerichte ruimte bevat stromend water, toiletten en alle nutsvoorzieningen tot muziekdistributie toe. Verwarming via collectieve stookolieketel in de residentie(verbruik via syndic obv. kaloriemeters). Een must voor beroepsuitoefening met allure én prima bereikbaarheid in één van de betere wijken van het Brussels gewest. Bel 054412500 voor een individueel geleid bezoek met vastgoedmakelaar Cedric
Financieel
Verkoop onder btw-stelsel
Nee
Kadastraal inkomen
1.631 €
Gebouw
Type pand
Commercieel
Subtype
Kantoor
Bewoonbare oppervlakte
180 m²
Terrein
Perceeloppervlakte
180 m²
Meest recente bestemming terrein
Woongebied
Ligging
Omgeving / buurt
Residentiële wijk; Stadskern
Openbaar vervoer nabij
Ja
Indeling
Keuken
Ja
Toilet
Ja
Aantal toiletten
4
Comfort
Lift
Ja
Alarm
Ja
Aansluiting riolering
Ja
Energie
EPC-score (kWh/(m² jaar))
167
EPC-label
D
Unieke code EPC
639.184
Ruimtelijke ordening
Bestemming gebouw
Vrij beroep
Dagvaarding
Nee
Vonnissen
Nee














