Grond te koop in Jette
Omschrijving
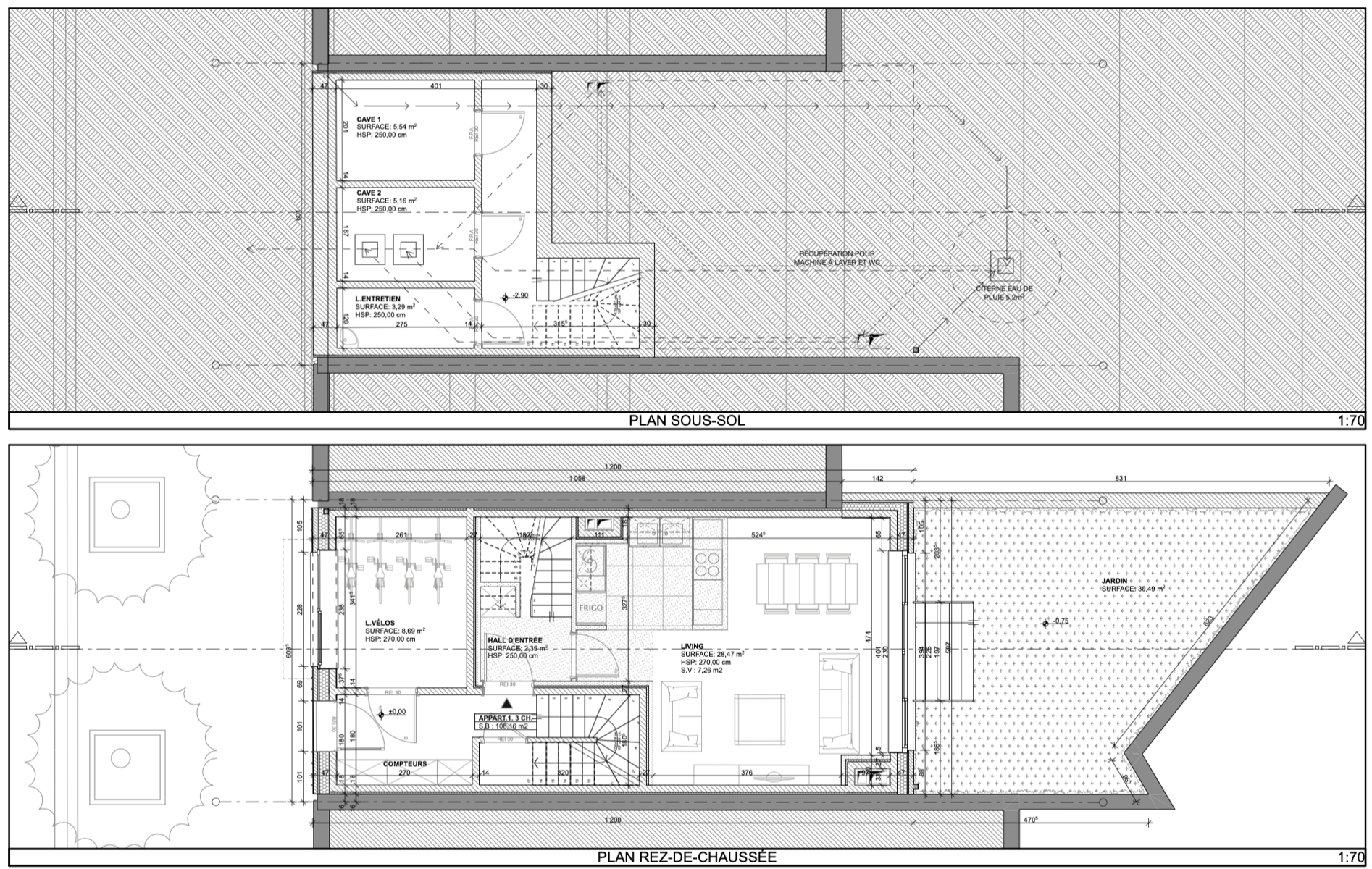
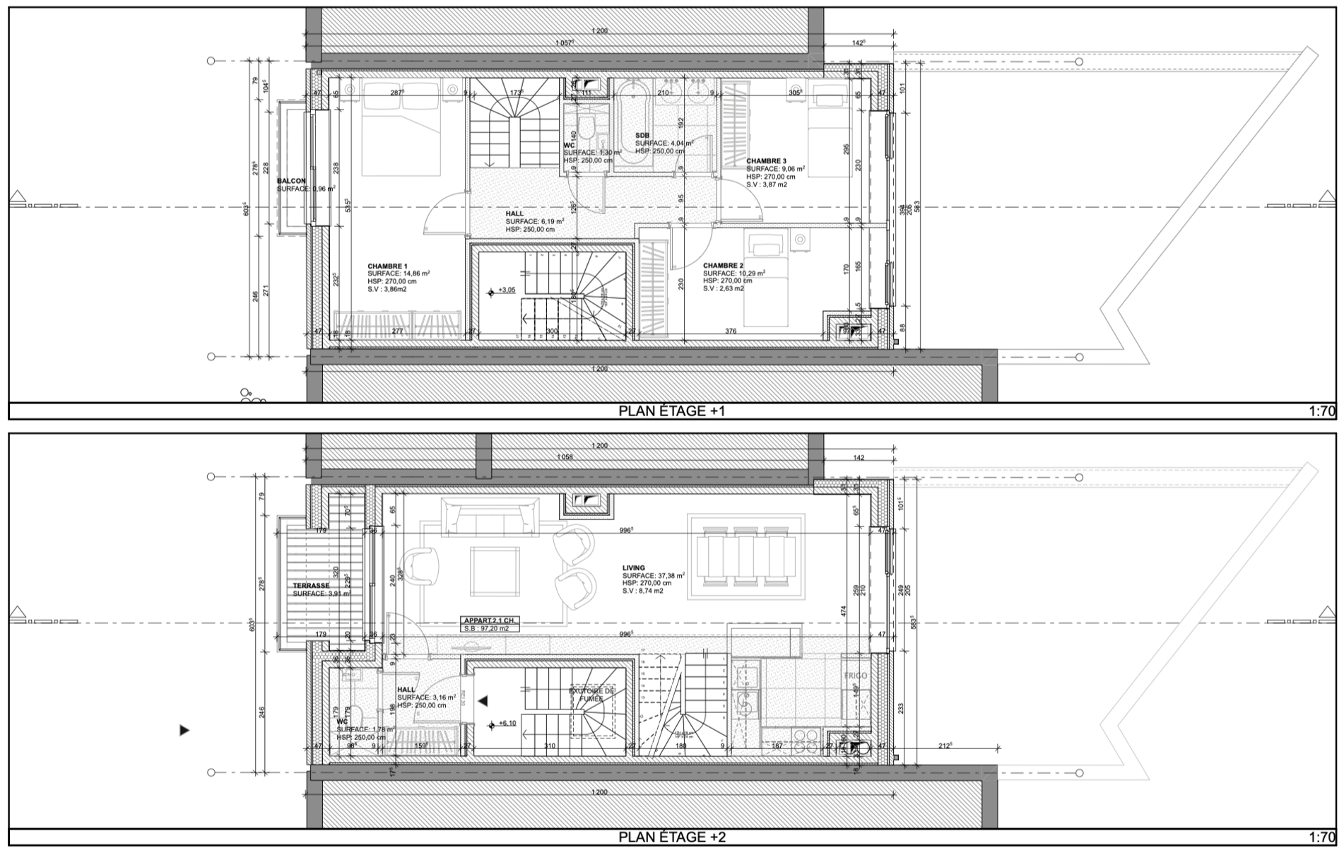
Bouwgrond - appartementengebouw met twee units
Ideaal gelegen in Jette, dichtbij het Elisabethpark en het Miroirplein, bieden we dit bouwterrein van 110 m². Er wordt een stedenbouwkundige vergunning toegekend voor de bouw van een appartementengebouw met twee units. Het huis zal bestaan uit een duplex van 109 m² met drie slaapkamers en een tuin, en een tweede duplex van 98 m² met één slaapkamer en een terras. Perfect voor particuliere eigenaren of investeerders. U zult deze woning waarderen om zijn locatie en grote potentieel. Een bezoek is een must!
Financieel
Gebouw
Terrein
Ligging
Comfort
Ruimtelijke ordening
Locatie
Avenue Giele 33, 1090 JetteIs dit haalbaar voor jou?
Liever een voorstel op maat?
Vertel meer over je project en je persoonlijke situatie en KBC berekent je persoonlijke rentevoet. Je ontvangt onmiddellijk feedback of je lening haalbaar is en je kunt je aanvraag volledig digitaal afronden. Zelfs als je geen KBC-klant bent.







