Appartement te koop in Haren met 3 slaapkamers
Omschrijving
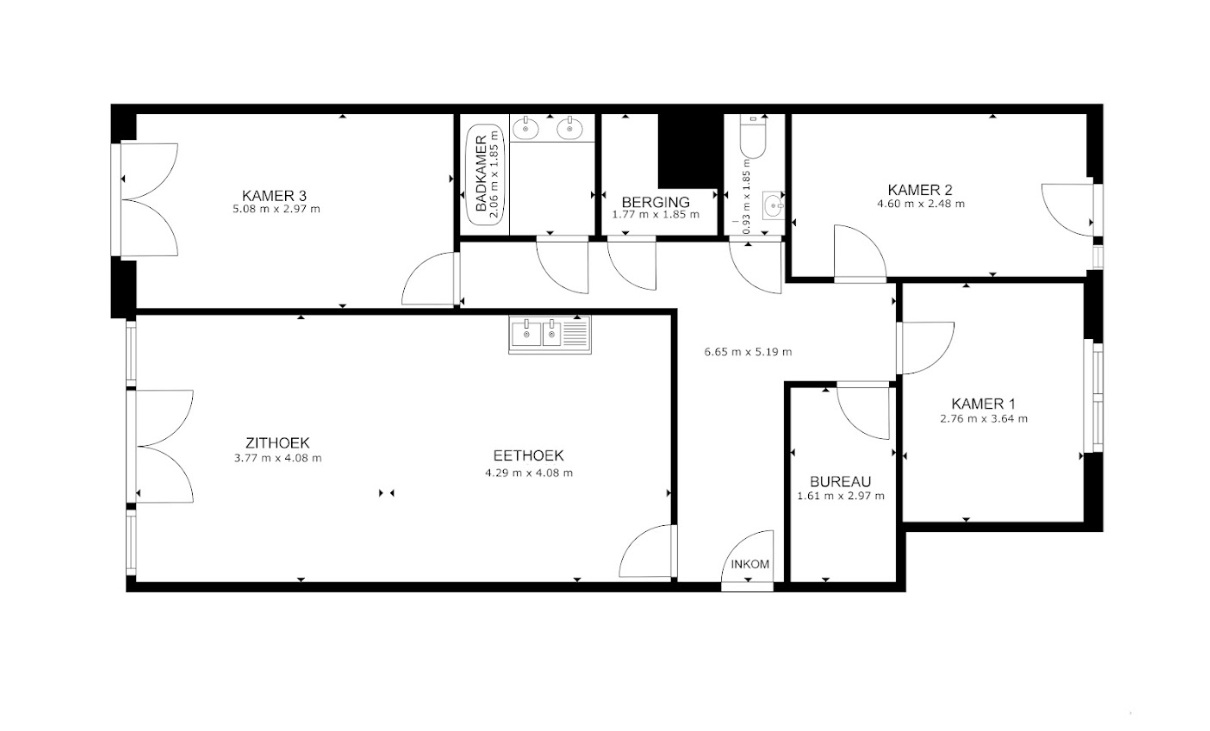
Ruim en lichtrijk 3-slaapkamer appartement in Haren
Ontdek dit ruim en lichtrijk appartement van ca. 108 m², gelegen op de 2de verdieping in de gegeerde residentie Harenheyde te Haren (Sporthalstraat 2B).
De leefruimte van meer dan 30 m² vormt het hart van het appartement en geniet van een aangename lichtinval. Aansluitend bevindt zich de eetruimte en open keuken, wat zorgt voor een praktisch en open geheel.
Het appartement beschikt over drie slaapkamers met een oppervlakte van ca. 15 m², 11 m² en 10 m², ideaal voor gezinnen, thuiswerk of extra hobbyruimte. Daarnaast is er een extra polyvalente ruimte die perfect kan dienen als bureau, dressing of berging.
De badkamer is uitgerust met een ligbad en douche en biedt alle comfort. Verder is er een afzonderlijk toilet en een praktische berging aanwezig.
Technisch scoort dit appartement sterk met een gunstig EPC-label B+ en een conforme elektrische installatie .
Gelegen in een rustige en aangename woonwijk, met alle voorzieningen binnen handbereik, is dit een interessante opportuniteit voor wie ruimte, licht en comfort zoekt.
Interesse?
Financieel
Gebouw
Terrein
Indeling
Energie
Ruimtelijke ordening
Media & downloads
Locatie
Sporthalstraat 2 B 2.5, 1130 HarenIs dit haalbaar voor jou?
Liever een voorstel op maat?
Vertel meer over je project en je persoonlijke situatie en KBC berekent je persoonlijke rentevoet. Je ontvangt onmiddellijk feedback of je lening haalbaar is en je kunt je aanvraag volledig digitaal afronden. Zelfs als je geen KBC-klant bent.












