Grond te koop in Asse
€ 225.000
Is dit haalbaar voor jou?Omschrijving
Bouwgrond voor 2 woningen
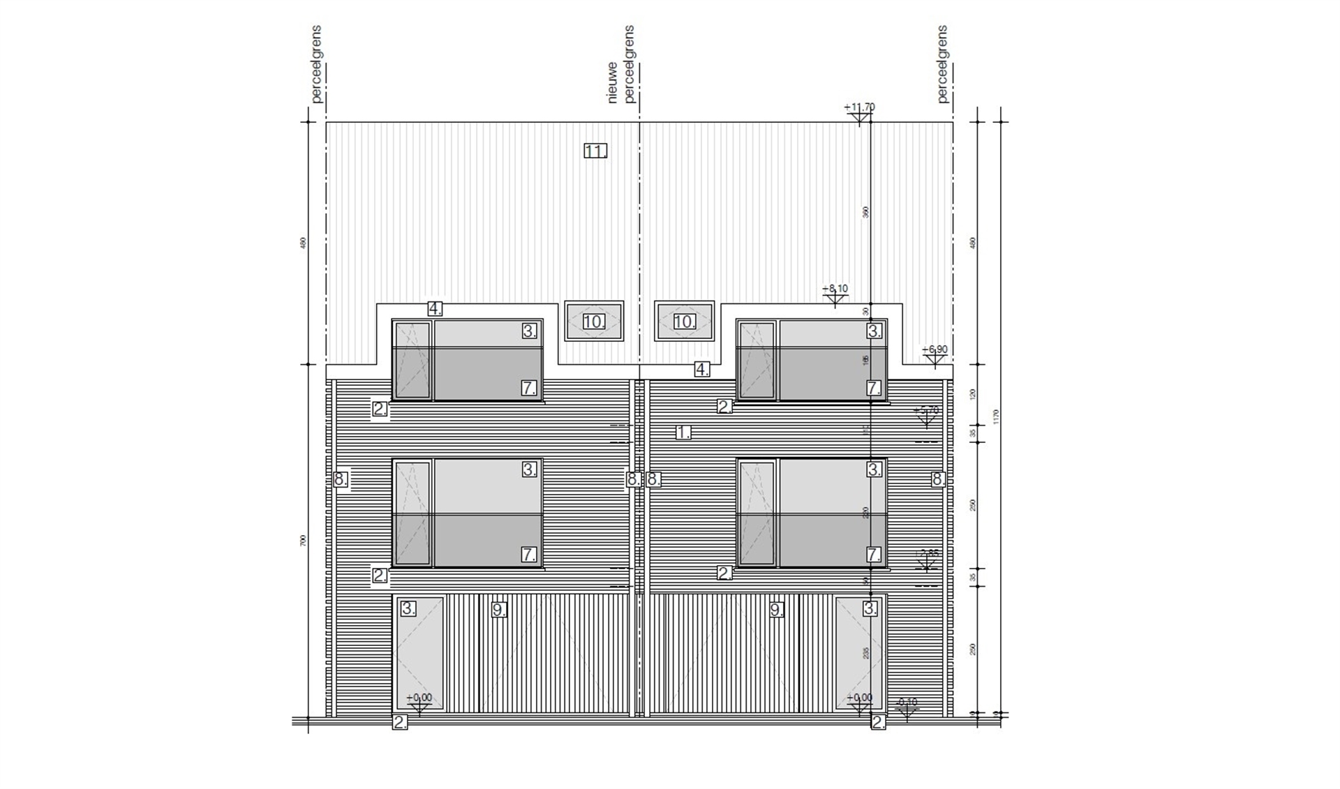
Bouwgrond voor twee eengezinswoningen.Op zoek naar een investeringsproject of woonopportuniteit? Deze bouwgrond biedt de mogelijkheid tot het oprichten van twee gesloten eengezinswoningen, elk met een inpandige garage en een private tuin. De voorziene woningen hebben een voorgevelbreedte van 6,20 meter. De maximale bouwdiepte bedraagt 12,50 meter op het gelijkvloers en 10 meter op de eerste verdieping. De totale perceeloppervlakte is verdeeld in twee delen van 174,70 m² en 185,20 m². Elke tuin is voorzien van een terras van 19 m², met een diepte van respectievelijk 11,33 meter en 17,06 meter. De bouwvolumes voorzien een kroonlijsthoogte van 6,90 meter en een nokhoogte van 11,70 meter per woning. Maatregelen opgenomen in het Maatregelenregister: nee. Interesse of wenst u een bod uit te brengen? Contacteer Structura via 02/460.80.46 of info@structura.be.
Financieel
Kadastraal inkomen
3 €
Kadastrale info
15A2
Beschikbaarheid
Vanaf akte
Gebouw
Type pand
Grond
Subtype
Grond
Type bebouwing
Gesloten
Terrein
Perceeloppervlakte
358 m²
Meest recente bestemming terrein
Woongebied
Oppervlakte tuin
134,2 m²
Ligging
Afstand tot openbaar vervoer
382 m
Afstand tot school
251 m
Indeling
Terras
Ja
Oppervlakte terras
38 m²
Energie
Keuringsattest elektriciteit
Nee
Ruimtelijke ordening
Kadastraal plan
Ja
Dagvaarding
Geen rechterlijke herstelmaatregel of bestuurlijke maatregel opgelegd
Bouwvergunning
Ja
Locatie
Gentsesteenweg 213, 1730 AsseIs dit haalbaar voor jou?
Minimale eigen inbreng
-EUR
Maandlast
-EUR/maand
Liever een voorstel op maat?
Vertel meer over je project en je persoonlijke situatie en KBC berekent je persoonlijke rentevoet. Je ontvangt onmiddellijk feedback of je lening haalbaar is en je kunt je aanvraag volledig digitaal afronden. Zelfs als je geen KBC-klant bent.















