Huis te koop in Vilvoorde met 3 slaapkamers
€ 594.000
Is dit haalbaar voor jou?Omschrijving
Zeer energiezuinige halfopen woning op topligging
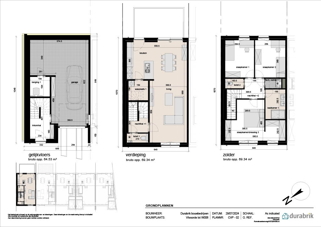
Deze halfopen bebouwing is uitstekend gelegen op een knooppunt van invalswegen en fietsautostrades naar onze hoofdstad. De woning heeft een modern uitzicht: een beige genuanceerde gevelsteen met donkergrijs buitenschrijnwerk en een plat dak vol zonnepanelen. Het perceel meet 187 m², de woonopp. bedraagt 203 m². Kelderverdieping met inkomhal en zeer grote garage met extra ruimte voor het plaatsen van meerdere fietsen. Er is ook een technische ruimte voorzien. Erboven op het gelijkvloers zien we de leefruimte met open keuken, de hal met trap en de wasplaats. De verdieping telt 3 slpks, een badkamer incl. douche en meubel met dubbele lavabo. Apart toilet.
Alle ruimtes boven de kelderverdieping zijn voorzien van vloerverwarming. Deze wordt aangedreven door een ecologische warmtepomp en zonnepanelen waardoor we een negatief E-peil bereiken van maar liefst -10. Naast de woning is er een buitentrap die de tuin en de achterkant van de woning gemakkelijk bereikbaar maakt.
De afwerking van de woning kan je bepalen onder professionele begeleiding van onze interieurvormgevers. De woning wordt instapklaar opgeleverd. De zuidoost gerichte tuin wordt afgeboord met draadafsluiting en een tuinpoort. Bij Durabrik ben je zeker van een vaste prijs. Contacteer onze bouwadviseur via 09 280 60 60 of mail naar info@durabrik.be.
Wist je dat het btw-tarief van 6% permanent verlengd werd? Vraag ons naar de voorwaarden!
* Beelden en oppervlaktes zijn indicatief.
Alle ruimtes boven de kelderverdieping zijn voorzien van vloerverwarming. Deze wordt aangedreven door een ecologische warmtepomp en zonnepanelen waardoor we een negatief E-peil bereiken van maar liefst -10. Naast de woning is er een buitentrap die de tuin en de achterkant van de woning gemakkelijk bereikbaar maakt.
De afwerking van de woning kan je bepalen onder professionele begeleiding van onze interieurvormgevers. De woning wordt instapklaar opgeleverd. De zuidoost gerichte tuin wordt afgeboord met draadafsluiting en een tuinpoort. Bij Durabrik ben je zeker van een vaste prijs. Contacteer onze bouwadviseur via 09 280 60 60 of mail naar info@durabrik.be.
Wist je dat het btw-tarief van 6% permanent verlengd werd? Vraag ons naar de voorwaarden!
* Beelden en oppervlaktes zijn indicatief.
Financieel
Verkoop onder btw-stelsel
Ja
Gebouw
Type pand
Huis
Subtype
Huis
Bewoonbare oppervlakte
202 m²
Terrein
Perceeloppervlakte
179 m²
Meest recente bestemming terrein
Woongebied
Tuin
Ja
Indeling
Aantal slaapkamers
3
Aantal badkamers
1
Aantal toiletten
0
Comfort
Lift
Nee
Aansluiting elektriciteit
Ja
Aansluiting riolering
Ja
Energie
Zonnepanelen
Ja
Keuringsattest elektriciteit
Ja, niet conform
Vloerverwarming
Ja
Ruimtelijke ordening
Verkavelingsvergunning
Ja
G(ebouw)-score
A (geen overstroming gemodelleerd)
P(erceel)-score
C (kleine overstromingskans onder huidig klimaat)
Locatie
Romeinsesteenweg, 1800 Vilvoorde594.000 EUR
Locatie
Romeinsesteenweg
1800 Vilvoorde















