Scoop: Huis te koop in Antwerpen
Omschrijving
Projectgebouw ca.485m² op TOP locatie!
Informatie project
Op zoek naar uw volgende project? Dit is wat je zoekt! Klapdorp 80 is een af te breken handelshuis met een perceeloppervlakte van 94m², bestaande uit 5 bouwlagen. Klapdorp 84, 84A en 84C bestaat uit 3 historische huisjes op een perceeloppervlakte van ca. 75m², bestaande uit 2 bouwlagen, die na een grondige renovatie direct verkocht of verhuurd kunnen worden. Het project heeft een fantastisch potentieel voor studentenkamers of appartementen, gecombineerd met studio's.
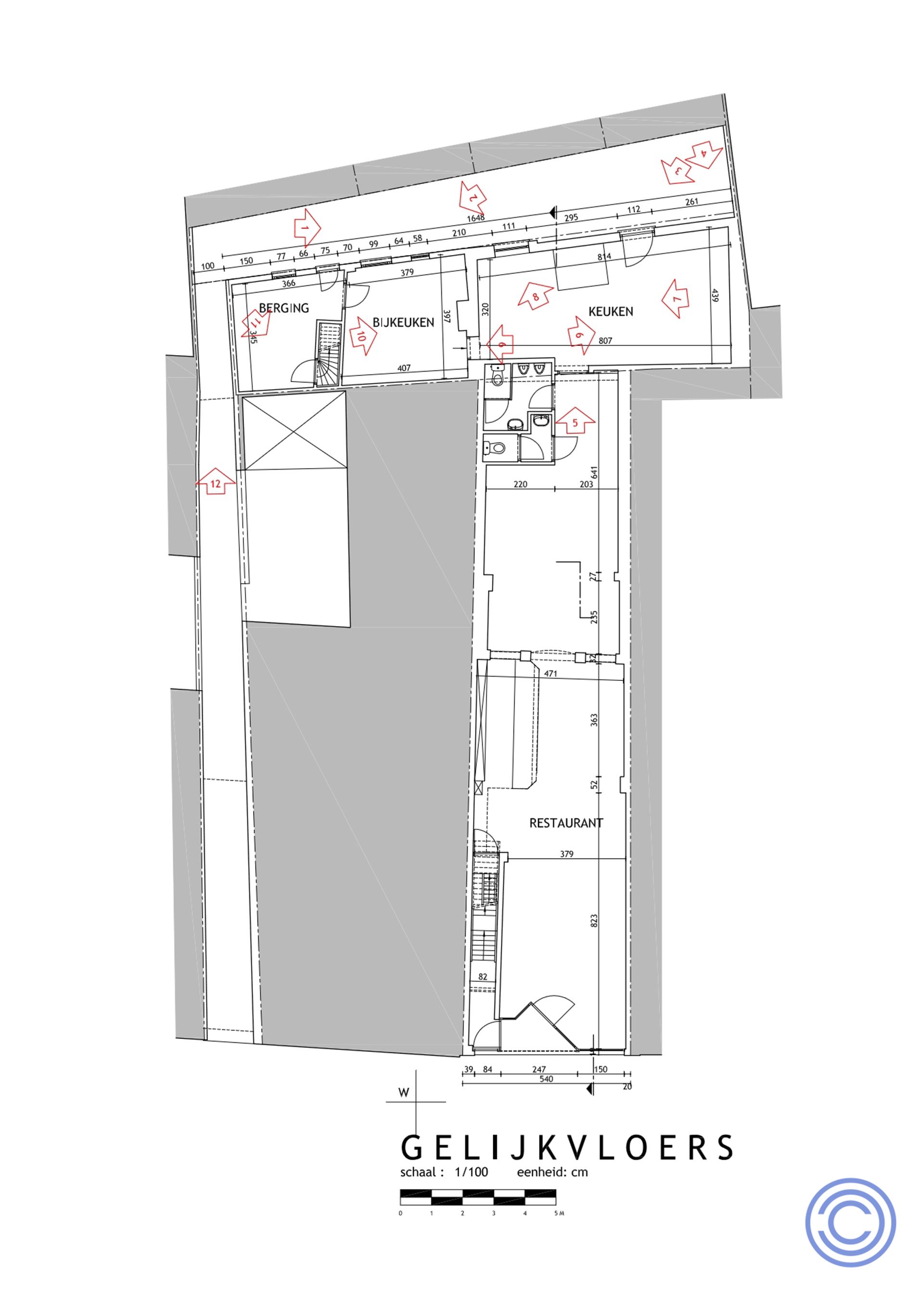
Indeling
- Kelder ca. 40m².
- Het gelijkvloers is een handelsruimte van ca. 100m²
- De 1ste, 2de en dakverdieping vormen een woning van ca. 215m².
- Via de "Salmgang", een Middeleeuwse steeg, zijn er 3 kleine achterhuizen bereikbaar.
Algemene informatie
- Klapdorp 80 EPC: label F
- Klapdorp 84, 84 en 84C EPC: label F
- Klapdorp 80 Elektrische keuring: niet conform AREI
- Klapdorp 84, 84A en 84C: niet aanwezig
- Asbestattest Klapdorp 84, 84A en 84C: Asbestveilig maar niet asbestvrij
- Asbestattest Klapdorp 80: In aanvraag
Gebouw
- Af te breken handelshuis bestaande uit een kelder, gelijkvloers en 3 verdiepingen.
- 3 volledig te renoveren achterhuizen.
Ligging
- Rustige, centrale ligging in Antwerpen!
- Supermarkten, scholen en horeca in de directe omgeving.
- Naast zijn nabijheid van in- en uitvalswegen naar de ring is het Centraal Station op wandelafstand.
- MOBISCORE: 9,3/10!
*De informatie in deze prospect is ter informatieve titel: de kandidaat-kopers moeten hun eigen zaak maken van het verkrijgen, controleren en interpreteren van deze informatie.
Financieel
Gebouw
Terrein
Indeling
Comfort
Energie
Ruimtelijke ordening
Locatie
Klapdorp 80, 2000 Antwerpen775.000 EUR
Locatie
Klapdorp 80
2000 Antwerpen
Is dit haalbaar voor jou?
Liever een voorstel op maat?
Vertel meer over je project en je persoonlijke situatie en KBC berekent je persoonlijke rentevoet. Je ontvangt onmiddellijk feedback of je lening haalbaar is en je kunt je aanvraag volledig digitaal afronden. Zelfs als je geen KBC-klant bent.
















