Omschrijving
Winkelruimte op topligging in Antwerpen
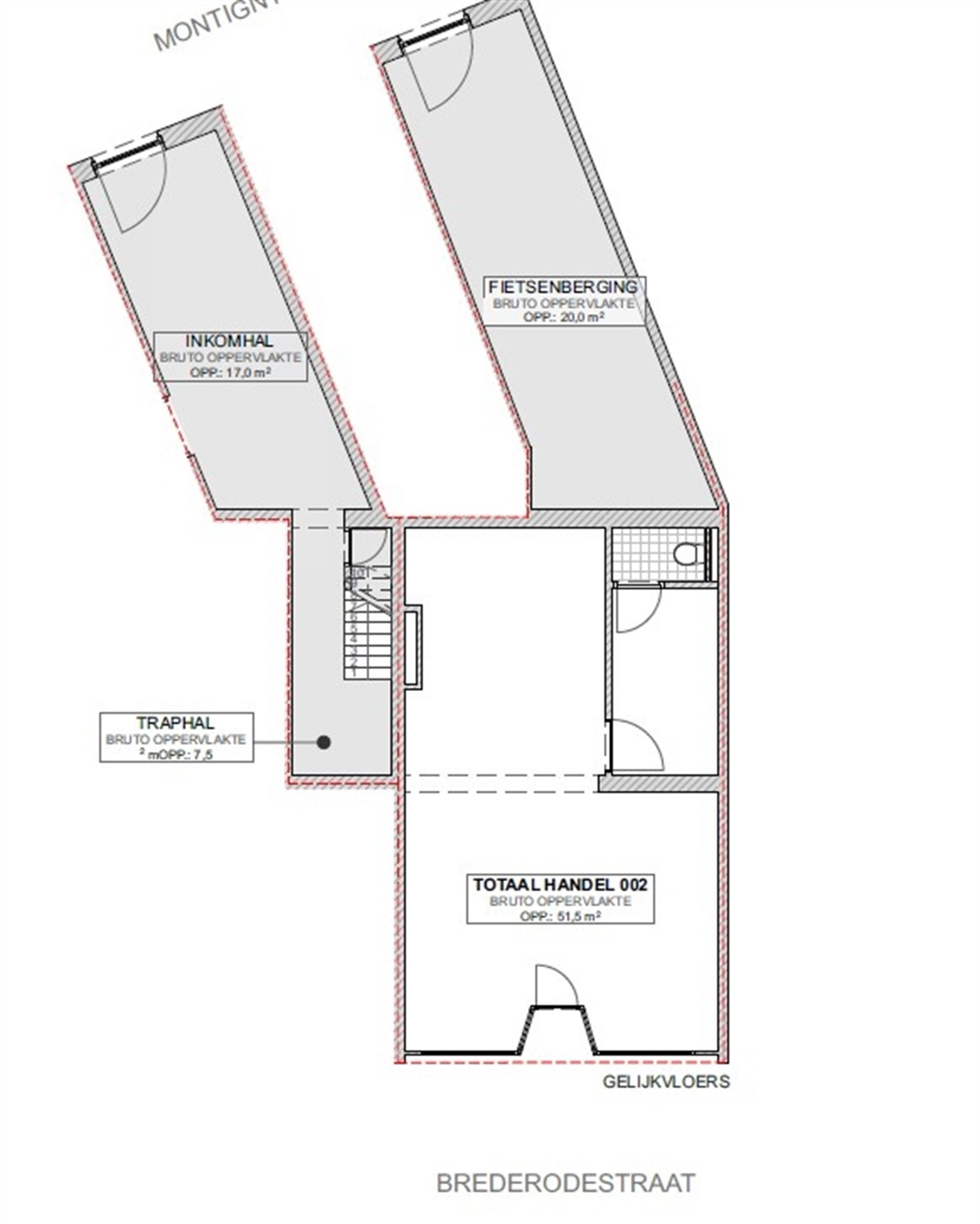
Bent u op zoek naar een locatie voor uw nieuw kantoor of handelszaak? Dan is dit gelijkvloers gelegen op een topligging in Antwerpen precies wat u zoekt. Ook als investering is dit een uitzonderlijk pand waar u een hoge opbrengst kan genereren.
Bijzonderheden:
EPC Energielabel D
Geen renovatieplicht
CV op gas
P-score: C
G-score: C
Financieel
Kadastrale info
3842/00X000
Gebouw
Type pand
Commercieel
Subtype
Handelszaak
Bewoonbare oppervlakte
65 m²
Energie
EPC-label
D
Unieke code EPC
20211025-0002483603-KNR-1
Keuringsattest elektriciteit
Nee
Ruimtelijke ordening
Kadastraal plan
Ja
Dagvaarding
In aanvraag
Verkavelingsvergunning
In aanvraag












