Appartement te koop in Berendrecht met 3 slaapkamers
€ 397.800
Is dit haalbaar voor jou?Omschrijving
Ruim appartement met 3 slpks en terras
Met 32 exclusieve appartementen biedt Residentie Hagelberg een ideale thuisbasis voor zowel bewoners als investeerders.
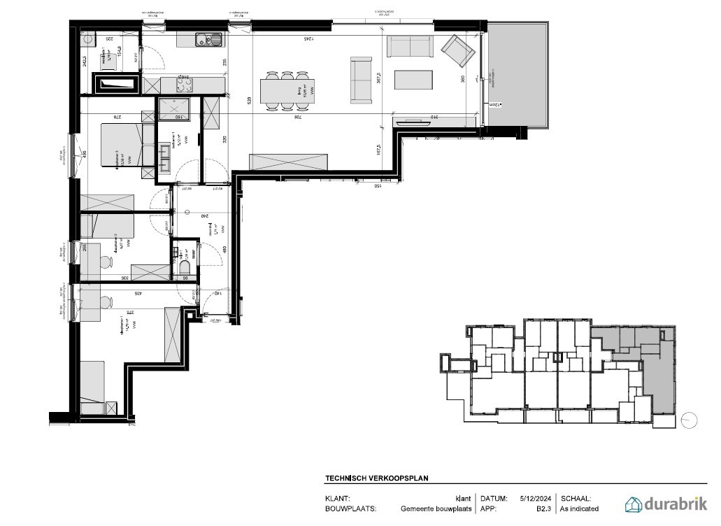
Mooi energiezuinig ruim appartement B 2.3 ( = 129m²) gelegen op de 2de verdieping met zuidwest gericht terras.
Inkomhal, apart wc, ruime living met open keuken voorzien van ingebouwde toestellen, aanpalende berging, 3 slpks, badkamer met dubbele wastafel en douche.
Volledige en nog vrij te kiezen binnenafwerking tot en met de laminaat in de slpks.
Uiterst energiezuinig ( E10 = A-Label ) dankzij zonnepanelen ( energiedelen) , warmtepomp met vloerverwarming(+koeling) en ventilatiesysteem D.
Ondergrondse staanplaatsen en kelderbergingen welke mee dienen aangekocht te worden.
Gelijkvloerse afsluitbare fietsenstalling en lift zijn voorzien. De werken zijn gestart.
Gelegen in een rustige omgeving met een centraal park en gelegen bij alle voorzieningen in handbereik en vlotte verbinding A12 combineert Residentie Hagelberg het beste van twee werelden.
Prijs excl. btw en kosten. Download de brochure op https://durabrik.immo/berendrecht
Heb je vragen of wil je een bezoek brengen aan de site? Contacteer dan je bouwadviseur via 09 280 60 60 of mail naar info@durabrik.be.
De beelden en oppervlaktes zijn indicatief.
Mooi energiezuinig ruim appartement B 2.3 ( = 129m²) gelegen op de 2de verdieping met zuidwest gericht terras.
Inkomhal, apart wc, ruime living met open keuken voorzien van ingebouwde toestellen, aanpalende berging, 3 slpks, badkamer met dubbele wastafel en douche.
Volledige en nog vrij te kiezen binnenafwerking tot en met de laminaat in de slpks.
Uiterst energiezuinig ( E10 = A-Label ) dankzij zonnepanelen ( energiedelen) , warmtepomp met vloerverwarming(+koeling) en ventilatiesysteem D.
Ondergrondse staanplaatsen en kelderbergingen welke mee dienen aangekocht te worden.
Gelijkvloerse afsluitbare fietsenstalling en lift zijn voorzien. De werken zijn gestart.
Gelegen in een rustige omgeving met een centraal park en gelegen bij alle voorzieningen in handbereik en vlotte verbinding A12 combineert Residentie Hagelberg het beste van twee werelden.
Prijs excl. btw en kosten. Download de brochure op https://durabrik.immo/berendrecht
Heb je vragen of wil je een bezoek brengen aan de site? Contacteer dan je bouwadviseur via 09 280 60 60 of mail naar info@durabrik.be.
De beelden en oppervlaktes zijn indicatief.
Financieel
Verkoop onder btw-stelsel
Ja
Gebouw
Type pand
Appartement
Subtype
Appartement
Bewoonbare oppervlakte
129 m²
Terrein
Perceeloppervlakte
138 m²
Meest recente bestemming terrein
Woongebied
Indeling
Aantal slaapkamers
3
Aantal badkamers
1
Aantal toiletten
0
Comfort
Lift
Nee
Aansluiting elektriciteit
Ja
Aansluiting riolering
Ja
Energie
EPC-label
A
E-peil
10
Zonnepanelen
Ja
Ruimtelijke ordening
Verkavelingsvergunning
Ja
Locatie
Bosstraat, 2040 BerendrechtIs dit haalbaar voor jou?
Minimale eigen inbreng
-EUR
Maandlast
-EUR/maand
Liever een voorstel op maat?
Vertel meer over je project en je persoonlijke situatie en KBC berekent je persoonlijke rentevoet. Je ontvangt onmiddellijk feedback of je lening haalbaar is en je kunt je aanvraag volledig digitaal afronden. Zelfs als je geen KBC-klant bent.











