Huis te koop in Antwerpen met 2 slaapkamers
Omschrijving
Charmante woning met 2 slaapkamers in bruisende buurt!
Deze charmante ééngezinswoning bevindt zich in de opkomende buurt nabij Park Spoor Noord en de Stuivenbergsite die nog een make-over krijgt. Omwille van de centrale ligging ben je op wandelafstand van het hippe Eilandje, alsook het groene Park Spoor Noord. In de nabijheid van winkels, scholen en openbaar vervoer.
Ideaal om er zelf in te wonen of als investering (mogelijke huurprijs van 1000/mnd)!
Grootste troeven:
-Centrale locatie
-Gunstig EPC (B)!
-Geïsoleerd dak + dubbel glas
-Verschillende mogelijkheden
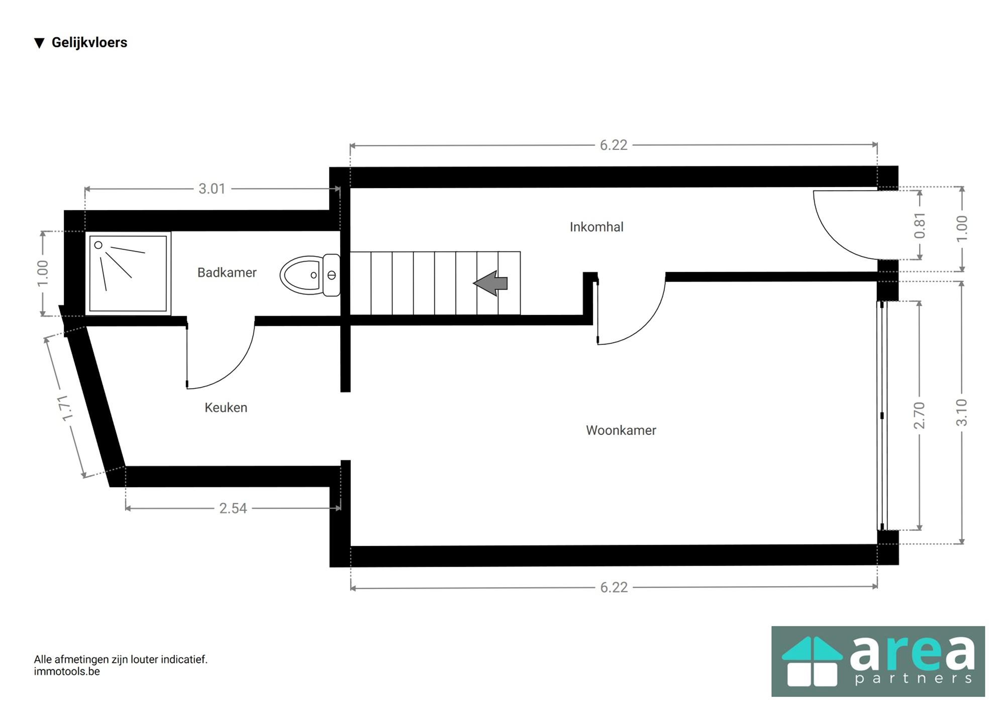
Indeling:
-Kelder: ideaal voor stockage
-GLVL: Inkomhal met aansluitend de gastenliving (20m²). Hierachter bevind zich een
-V1: Vooraan de 2de living met aansluitend de geïnstalleerde keuken (7m²).
-V2: Hier bevindt zich de grootste slaapkamer (20m²) alsook de 2de badkamer (2,5m²) met douche en WC.
Voor meer informatie kan u terecht bij Area Partners. INFO@area.be of 03/284.60.60
Financieel
Gebouw
Terrein
Indeling
Comfort
Energie
Ruimtelijke ordening
Locatie
Onderwijsstraat 22, 2060 Antwerpen219.900 EUR
Locatie
Onderwijsstraat 22
2060 Antwerpen
Is dit haalbaar voor jou?
Liever een voorstel op maat?
Vertel meer over je project en je persoonlijke situatie en KBC berekent je persoonlijke rentevoet. Je ontvangt onmiddellijk feedback of je lening haalbaar is en je kunt je aanvraag volledig digitaal afronden. Zelfs als je geen KBC-klant bent.















