Commercieel te koop in Antwerpen met 3 slaapkamers
Omschrijving
Opbrengsteigendom bestaande uit 3 units!
Deze interessante opbrengsteigendom werd recent vernieuwd met aandacht voor kwaliteit en energiezuinigheid. Het betreft een opbrengsteigendom bestaande uit drie 1-slpk appartementen (telkens 50m²) zonder lift. Het gebouw is goed gelegen in een bruisende buurt in Antwerpen. Omwille van de centrale ligging is alles op wandel- en fietsafstand: ’t Stadscentrum, Centraal Station & tal van hippe eet- en drinkplekken.
Een ideale & veilige investering (klassieke verhuur of Airbnb)!
Mogelijk rendement van 4,32% (aankoopkost incl. registratie!) bij verhuur aan €2250/mnd.
Grootste troeven:
-Centrale locatie
-1ste ingebruikname na renovatie
-Keukens uitgerust met Bosch-toestellen
-Gunstig EPC’s = B!
-Conforme EK’s + asbestveilig attesten
-Dak, zij- & achtergevel geïsoleerd (14cm PUR)!
-Aparte meters nutsvoorzieningen!
-Gezellige zuidgerichte stadskoer (35m²) met privacy!
Indeling:
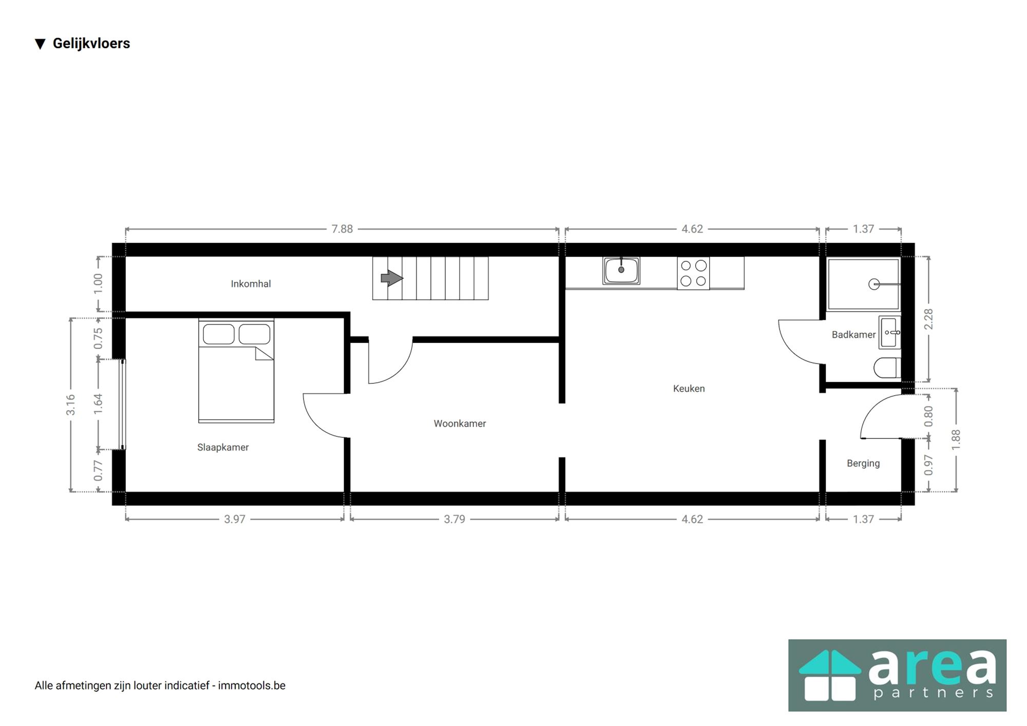
-GLVL (EPC ‘B’ 197 kWh/m²): Living met aansluitend de keuken (samen 32m²). Verder treffen we de badkamer (3m²) met douche & WC, daarnaast de berging (2m²). De keuken biedt toegang tot de stadskoer (35m²). Aan de voorzijde bevindt zich de slaapkamer (13m²).
-V1 (EPC ‘B’ 103 kWh/m²): Ruime living met aansluitend de keuken (samen 34m²). Verder treffen we de badkamer (2m²) met douche & WC. Achteraan bevindt zich de slaapkamer (9m²).
-V2 (EPC ‘B’ 127 kWh/m²): Ruime living met aansluitend de keuken (samen 30m²). Verder treffen we de badkamer (2m²) met douche & WC. Achteraan bevindt zich de slaapkamer (9m²).
Voor meer informatie kan u terecht bij Area Partners: Info@area.be of 03/284.60.60















