Huis te koop in Antwerpen met 2 slaapkamers
Omschrijving
Charmante woning met 2 slaapkamers in bruisende buurt!
Deze charmante ééngezinswoning bevindt zich in een opkomende en bruisende buurt in Antwerpen Noord, dichtbij het Park Spoor Noord alsook verschillende commerciële straten. Omwille van de centrale ligging en het openbaar vervoer, ben je zo in het centrum van Antwerpen!
Ideaal om er zelf in te wonen of als investering (Mogelijk rendement van 5,71% bij verhuur aan €1000/mnd)!
Grootste troeven:
-Centrale locatie
-Gunstig EPC (B)!
-Geïsoleerd dak + dubbel glas
-Verschillende mogelijkheden
Indeling:
-Kelder: ruime staankelder (25m²), ideaal voor stockage
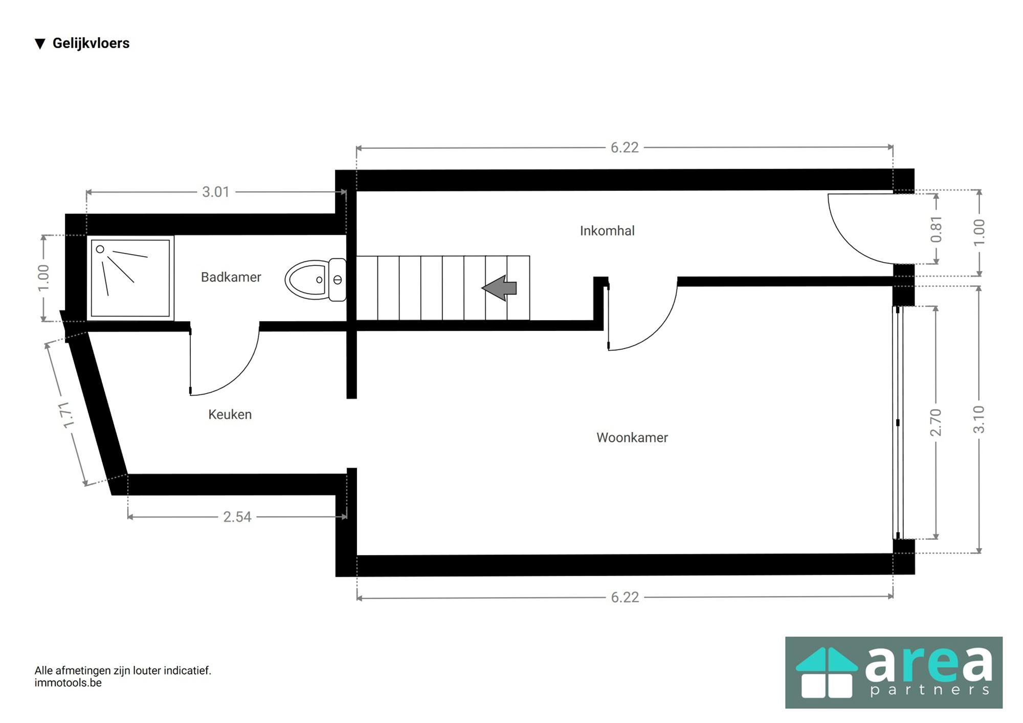
-GLVL: Inkomhal met aansluitend de living (20m²). Hiernaast bevindt zich de wasplaats (5m²), vroeger de keuken, met doorgang naar de eerste badkamer (3m²).
-V1: Vooraan treffen we de 1ste ruime slaapkamer (14m²) met daarnaast de keuken (7m²)
-V2: Hier bevindt zich de grootste slaapkamer (20m²) met ensuite een douchekamer (2m²) met douche en WC.
Voor meer informatie kan u terecht bij Area Partners. INFO@area.be of 03/284.60.60
Financieel
Gebouw
Terrein
Indeling
Comfort
Energie
Ruimtelijke ordening
Locatie
Onderwijsstraat 22, 2060 AntwerpenIs dit haalbaar voor jou?
Liever een voorstel op maat?
Vertel meer over je project en je persoonlijke situatie en KBC berekent je persoonlijke rentevoet. Je ontvangt onmiddellijk feedback of je lening haalbaar is en je kunt je aanvraag volledig digitaal afronden. Zelfs als je geen KBC-klant bent.















