Huis te koop in Antwerpen met 3 slaapkamers
Omschrijving
Unieke, energiezuinige woning met dakterras
In deze her-opgewaardeerde buurt ontdek je deze kwaliteitsvolle woning die werd gerenoveerd volgens de regels van de kunst met oog voor detail en smaak. Alles is tot in de puntjes vernieuwd. Je woont hier bovendien op een toplocatie met winkels, openbaar vervoer en het bruisende stadsleven op wandelafstand.
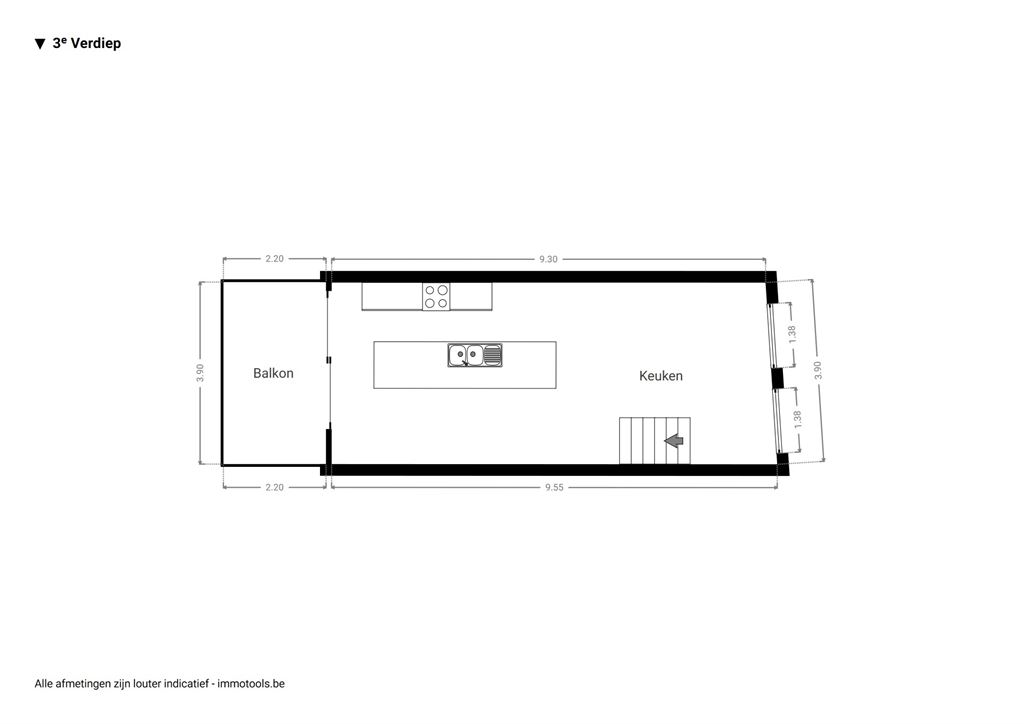
Leefkeuken met terras with a view
Bovenaan, op de derde verdieping, bevindt zich de volledig uitgeruste leefkeuken met kookeiland, nieuwe Siemens-toestellen (topkwaliteit gegarandeerd) en veel opbergruimte. Hier leef je letterlijk op het ritme van de zon: via het schuifraam stap je meteen op het zuidgerichte terras met lichte buitentegels. Een heerlijke plek om te ontbijten of ’s avonds de zon te zien ondergaan.
Masterbedroom én ensuite badkamer
Op de tweede verdieping ligt de ruime master bedroom (18 m²) en aansluitende badkamer met walk in regendouche en wastafel. Ook hier trekken de beige wandtegels en de donkere vloer de moderne lijn door. Daarnaast vind je op deze verdieping nog een gezellige, lichtrijke leefruimte aan de voorzijde van het huis.
De eerste verdieping is praktisch ingedeeld met twee slaapkamers, een stijlvolle badkamer en technische ruimte. De badkamer is afgewerkt met XL wandtegels, een inloopdouche met regendouchekop en een groot, dubbel lavabomeubel. De slaapkamers hebben allebei een onderhoudsvriendelijke parkettegel en grote raampartijen. Verder is er nog een apart toilet met handenwasser en een technische ruimte met de recente Vaillant-ketel en het ventilatiesysteem.
Multifunctionele garage
Op het gelijkvloers van de woning vind je een ruime inpandige garage van 42 m² met nieuwe automatische poort, betegelde vloer en extra bergruimte onder de trap. Je kan hier makkelijk je auto kwijt en dan nog heb je meer dan plaats genoeg voor fietsen, gereedschap of andere spullen. Evengoed geef je het een andere invulling als atelier, speelkamer of work out room.
Groen, stad & mobiliteit binnen handbereik
Met een Mobiscore van 9,3 woon je hier uitzonderlijk centraal. Tram, bus, metro, fietspaden en Velo-stations liggen vlakbij, net als de Singel en de Ring.
Op amper twee minuten wandelen ligt Park Spoor Noord: dé plek om te joggen, te ontspannen, kinderen te laten spelen of een terrasje te doen. In de omliggende straten vind je supermarkten, buurtwinkels en een fijne mix van authentieke cafés en eetadresjes.
Ringpark Lobroekdok & Slachthuissite: de toekomst voor je deur
Deze buurt staat bovendien aan de vooravond van een indrukwekkende vergroening. Met het Ringpark Lobroekdok wordt de Ring hier deels overkapt en omgevormd tot een groot, publiek parklandschap. Denk aan groene wandel- en fietspaden, pleinen, sport- en speelzones en een sterke verbinding tussen Park Spoor Noord, het Lobroekdok en de Slachthuissite.
Ook de Slachthuissite zelf wordt herontwikkeld tot een levendige stadswijk met ruimte voor wonen, werken, ontspanning en veel groen. Dit alles maakt dat je hier niet alleen vandaag fantastisch woont, maar ook investeert in een buurt met enorm toekomstpotentieel.
Financieel
Gebouw
Terrein
Indeling
Energie
Ruimtelijke ordening
Locatie
Lange Slachterijstraat 25, 2060 AntwerpenIs dit haalbaar voor jou?
Liever een voorstel op maat?
Vertel meer over je project en je persoonlijke situatie en KBC berekent je persoonlijke rentevoet. Je ontvangt onmiddellijk feedback of je lening haalbaar is en je kunt je aanvraag volledig digitaal afronden. Zelfs als je geen KBC-klant bent.














