Huis te koop in Antwerpen met 4 slaapkamers
Omschrijving
Ruime gerenoveerde woning met tuin!
Bent u op zoek naar een ruime en energiezuinige woning? Dan is deze woning zeker iets voor u! De woning werd volledig gerenoveerd in 2020 en is gelegen in een rustige straat te Deurne-Noord. Het betreft een gezinswoning met mogelijk 4 slaapkamers, ruime tuin en oprit voor de wagen. Omwille van de centrale ligging heb je alles binnen handbereik: winkels, scholen en het openbaar vervoer, in de nabijheid van verschillende invalswegen zoals de Ring van Antwerpen.
Grootste troeven:
- Gevel-en dakisolatie
- Vloerverwarming
- Conforme elektriciteit
- EPC B
- Zonnige westgerichte tuin (84m²)
- 4 slaapkamers mogelijk (op heden als 3 slpk ingedeeld)
- Ruime leefkeuken met veel lichtinval
Indeling:
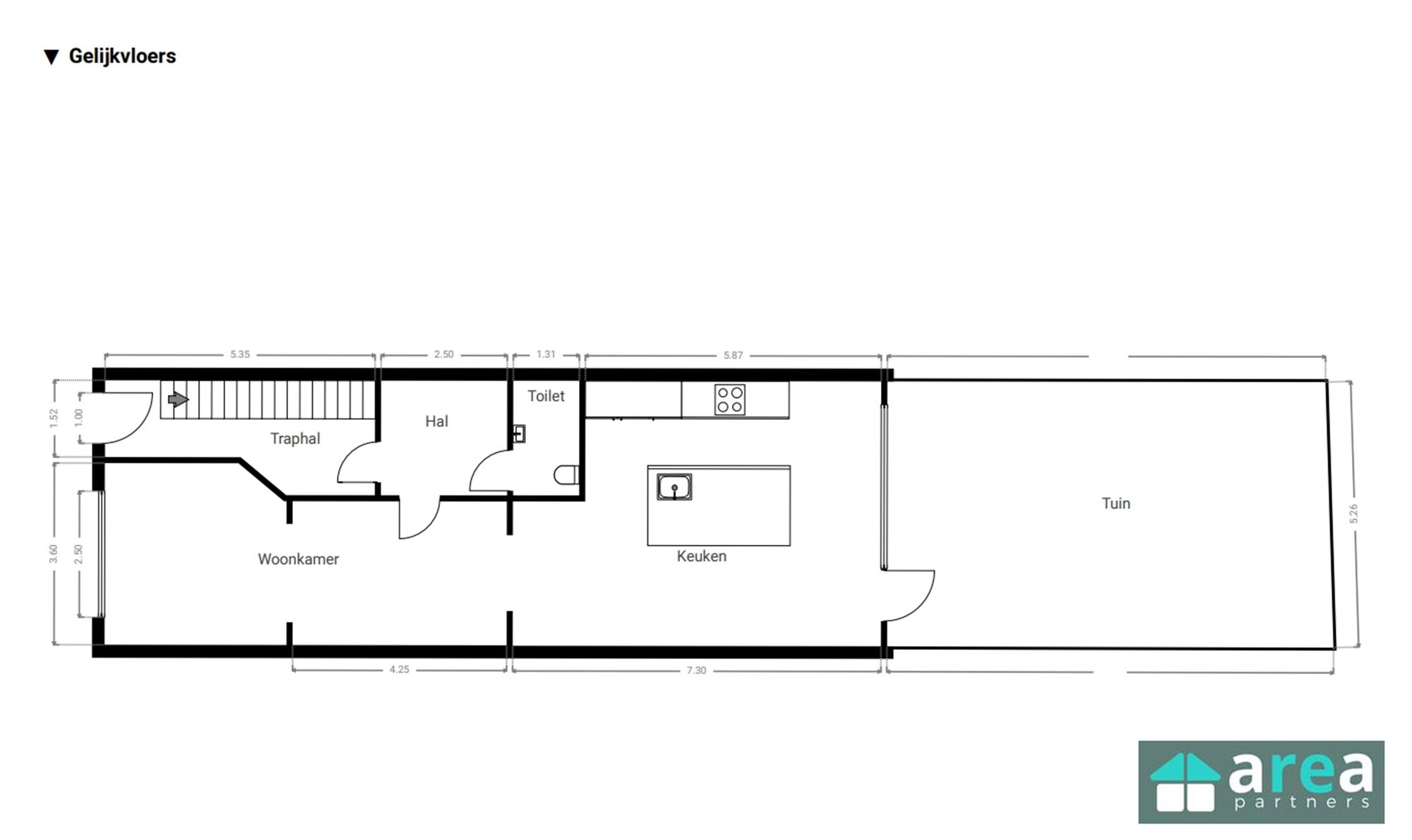
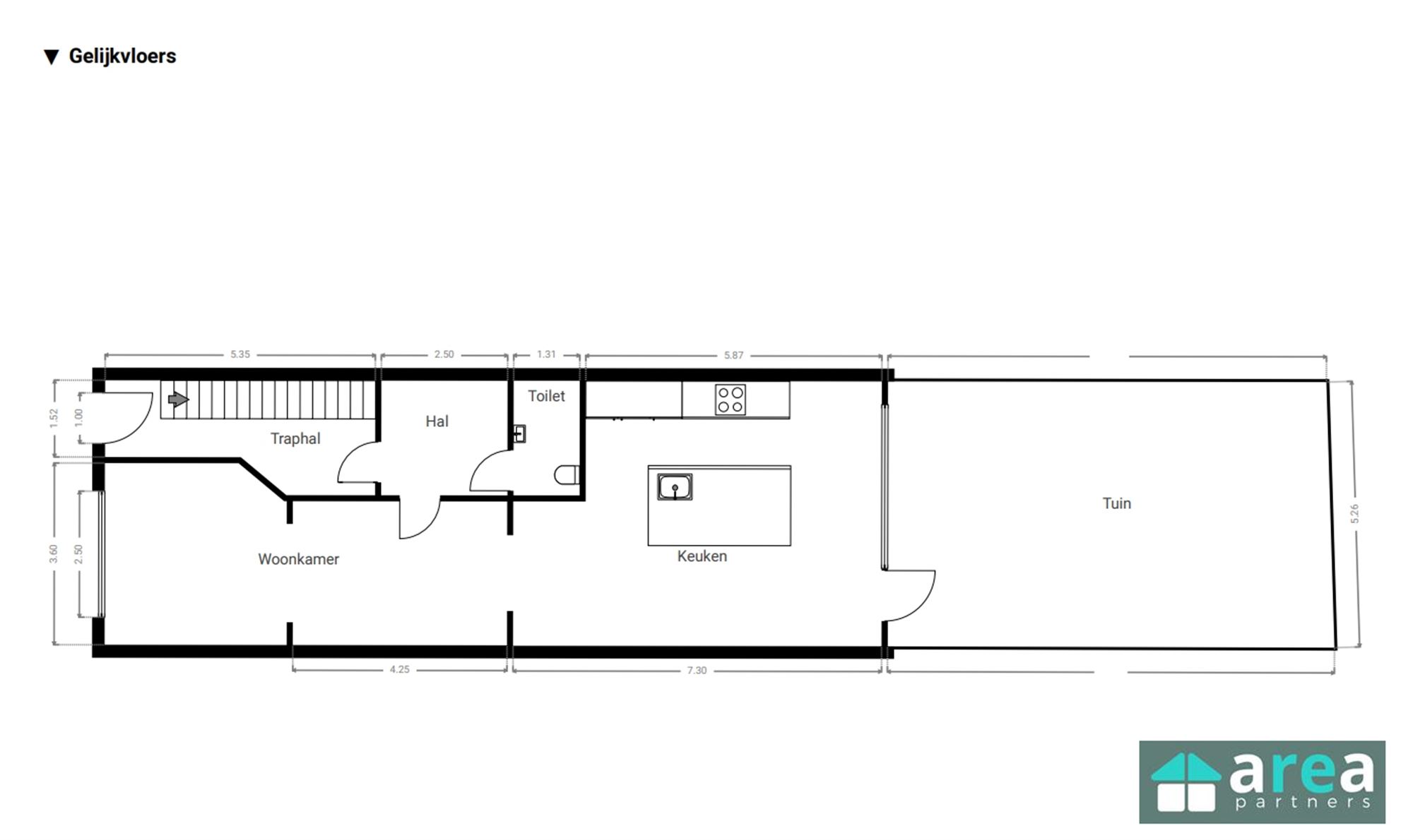
- GVL: Via de inkomhal betreden we de living en de grote volledig geïnstalleerde keuken (36m²). Vanuit deze ruimte hebben we toegang tot de ruime westgerichte tuin (84m²). Tevens is er een apart toilet aanwezig (3m²).
- V1: 2 slaapkamers van respectievelijk 14m² en 9m² en moderne badkamer (10m²) met inloopdouche, wc en dubbele lavabo.
- V2: Slaapkamer 3 en 4 (12m² en 13m²)
Voor meer informatie kan u terecht bij Area Partners: Info@area.be of 03/284.60.60
Financieel
Gebouw
Terrein
Indeling
Comfort
Energie
Ruimtelijke ordening
Media & downloads
Locatie
Jozef Nellenslei 17, 2100 AntwerpenIs dit haalbaar voor jou?
Liever een voorstel op maat?
Vertel meer over je project en je persoonlijke situatie en KBC berekent je persoonlijke rentevoet. Je ontvangt onmiddellijk feedback of je lening haalbaar is en je kunt je aanvraag volledig digitaal afronden. Zelfs als je geen KBC-klant bent.











